Don't lose your saved plans! 
Create an account to access your saves whenever you want. See our Terms & Conditions and Privacy Policy.
OR

Traditional House Plan 1061-9 1616 Sq Ft, 3 Bed, 2 Bath, 0 Floor, 2 Garage

Key Specs
  • 3
    Beds
  • 2
    Baths
  • 0
    Floors
  • 2
    Garages
  • 1616
    Square Feet
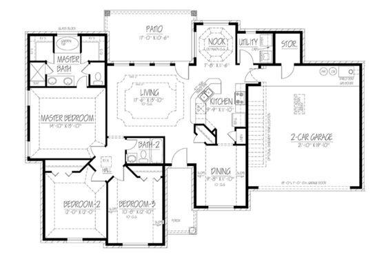
You’d be surprised at the luxurious touches waiting inside this 1,616-square-foot, classic brick home. A radius window and striking quoins add to the traditional curb appeal. Inside, though, the layout is quite modern with an open kitchen that boasts a snack bar. Beautiful ceiling treatments top almost every room, including the breakfast nook. Double walk-in closets add practical luxury to the master suite’s bathroom, which also holds a garden tub, separate shower, and two sinks. Two more bedrooms share a hall bath.

Questions on this plan?

New to the process and looking for some help to kick things off? Let us know a bit about your plans and we’ll be happy to help.

Budget & Customization Tools

Modify icon
Customize this Plan
Tell us about your desired changes and we can prepare an estimate.
Cost to Build icon
Cost to Build Report
A personalized estimate based on your location, plan, & materials.
Cost to Build icon
Residential Construction Guide
This downloadable, 26-page guide is full of diagrams and details about plumbing, electrical, and more.

Full specs & Features

Basic Features

Bedrooms: 3
Baths: 2
Stories: 0
Garages: 2

Dimension

Depth: 42' 6"
Height: 19' 11"
Width: 66' 6"

Area

Total: 1616 sq/ft
First Floor: 1616 sq/ft
Garage: 608 sq/ft
* Total Square Footage typically only includes conditioned space and does not include garages, porches, bonus rooms, or decks.

Roof

Primary Pitch: 8:12
Roof Framing: Conventional
Roof Type: Shingle

Exterior Wall Framing

Exterior Wall Finish: Brick
Framing: Wood - 2x6

Bedroom Features

Formal Dining Room
Formal Living Room / Parlor
Main Floor Master Bedroom
Walk In Closet

Kitchen Features

Breakfast Nook
Kitchenette Wet Bar

Additional Room Features

Main Floor Laundry
Storage Area

Garage Features

Front Entry Garage

Outdoor Spaces

Courtyard
Covered Front Porch

Rooms

Bedroom 2:

144 sq/ft width 12' x depth 12'

Bedroom 3:

137 sq/ft width 10' 8" x depth 12' 10"

Covered Front Porch:

68 sq/ft

Covered Rear Patio:

168 sq/ft width 17' x depth 10' 6"

Dining Room:

114 sq/ft width 9' 8" x depth 11' 10"

Garage:

608 sq/ft width 21' 10" x depth 19' 10"

Kitchen:

115 sq/ft width 9' 9" x depth 11' 10"

Living Room:

242 sq/ft width 17' 6" x depth 13' 10"

Master Bedroom:

205 sq/ft width 14' 10" x depth 13' 10"

Nook:

88 sq/ft width 7' 8" x depth 11' 6"

What's Included

  • Foundation Plan(s): This page shows all necessary notations and dimensions including footings, support columns, walls, and excavated/unexcavated areas.
  • Floor Plan(s): Detailed plans for each level showing room dimensions, wall partitions, windows and doors, fixture locations, and ceiling treatments.
  • Exterior Elevations: Views of the home from all four sides showing exterior materials, roof slope, ridge heights, siding and trim notes.
  • Overhead Roof Plan(s): May not be available for all plans. A view of the home from above showing roof pitch, peaks, valleys, and other details.
  • Cross Section(s): A slice of the home from roof to foundation, showing relationships between floors, roof, and foundation.
  • Construction Notes / Detail(s): Shows basic parts and assemblies recommended for the home so the builder can see how things come together.

FAQs

Are designs on Houseplans ready to submit to my building department for permitting?

It depends on where you're building. Our plans contain enough information for a professional builder to construct your home, but your local government may require additional information before permitting. We strongly advise that you talk with your builder before you get started. If you are building for yourself, we recommend visiting your local building department to start your diligence. Read more here.

Can I make changes to a plan?

Absolutely! Our modification service allows you to customize almost anything - whether it's adding an extra garage bay, adjusting square footage, changing the roof pitch, or more, the plan modification service is a great value and can be completed quickly. Additionally, if you purchase an electronic plan set (PDF or CAD), you may have the option to make changes locally. CAD files offer the most flexibility for custom edits. Just let us know what you're thinking, and we’ll provide an estimate and timeframe to get started. Learn more here.

How much does a house cost to build?

Find out! Build costs vary based on the size of the home, materials used, and local rates for goods and labor. Our Cost to Build report is a great way to get some basic costs dialed in before you order your plans. Just plug in your postal code, select your desired construction quality, and we'll calculate for you.

Learn more about Cost to Build reports here.

Can I trust Houseplans?

Founded in 2004, Houseplans works with hundreds of architects and designers to offer their plans at a fraction of the price of custom design. Houseplans has an "Excellent" rating on TrustPilot.

Read more about us here.

Does Houseplans offer live support?

Yes, Houseplans has a dedicated team of house plan advisors with decades of experience between them. You can reach them by calling, emailing, filling out a form on the page of a plan that you like, or going to the Contact Us page. We're available to talk every day, even on weekends.

Builder Advantage Home

Builder Advantage Program

Are you a Pro Builder? Join the club, save 5% on your first order, get exclusive discounts, and more.

Learn More

You may also like

Save Plan
Traditional

Plan 20-2346

$1305.00

beds4

bd

baths2.5

ba

stories2

stories

square feet2257

sq ft

Save Plan
European

Plan 453-56

$1550.00

beds3

bd

baths4

ba

stories2

stories

square feet3359

sq ft

Save Plan
Ranch

Plan 44-274

$1120.00

beds3

bd

baths2

ba

stories1

story

square feet1500

sq ft

Recently viewed plans

Traditional Exterior - Front Elevation Plan #1061-9
Save Plan

Plan 1061-9

$1375.00

beds3

bd

baths2

ba

stories0

stories

square feet1616

sq ft