Don't lose your saved plans! 
Create an account to access your saves whenever you want. See our Terms & Conditions and Privacy Policy.
OR

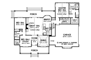
Country House Plan 929-885 1617 Sq Ft, 3 Bed, 2 Bath, 1 Floor, 2 Garage

Key Specs
  • 3
    Beds
  • 2
    Baths
  • 1
    Floors
  • 2
    Garages
  • 1617
    Square Feet
Quaint and charming, this farmhouse features all the necessities of modern living in modest square footage. The trio of dormers above the graceful columned front porch create a stylish exterior. A storage closet inside the garage creates the perfect place for lawnmowers, bikes and toys, while inside, closet space abounds in the bedrooms and hallways. The bayed breakfast room flows into the kitchen and great room, creating a seamless transition from one room to another. Accessing a spacious rear porch through French doors, the great room includes a fireplace and a cathedral ceiling that adds volume. Columns distinguish the formal dining room. The master suite is designed to pamper with two closets, twin vanities, a separate shower, and a garden tub.

Questions on this plan?

New to the process and looking for some help to kick things off? Let us know a bit about your plans and we’ll be happy to help.

Budget & Customization Tools

Modify icon
Customize this Plan
Tell us about your desired changes and we can prepare an estimate.
Cost to Build icon
Cost to Build Report
A personalized estimate based on your location, plan, & materials.
Cost to Build icon
Residential Construction Guide
This downloadable, 26-page guide is full of diagrams and details about plumbing, electrical, and more.

Full specs & Features

Basic Features

Bedrooms: 3
Baths: 2
Stories: 1
Garages: 2

Dimension

Depth: 50' 8"
Height: 26' 6"
Width: 63' 4"

Area

Total: 1617 sq/ft
Bonus: 429 sq/ft height 9'
First Floor: 1617 sq/ft height 9'
Garage: 579 sq/ft height 9'
Porch: 479 sq/ft
* Total Square Footage typically only includes conditioned space and does not include garages, porches, bonus rooms, or decks.

Roof

Primary Pitch: 10:12
Roof Framing: Conventional
Roof Type: Shingle
Secondary Pitch: 12:12

Exterior Wall Framing

Exterior Wall Finish: Brick/Siding
Framing: Wood - 2x4

Bedroom Features

Fireplace
Formal Dining Room
Walk In Closet

Kitchen Features

Breakfast Nook
Kitchen Island
Kitchenette Wet Bar

Additional Room Features

Den Office Study Computer
Great Room Living Room
Storage Area
Unfinished Future Space
Vaulted / Cathedral Ceilings

Garage Features

Side Entry Garage

Outdoor Spaces

Covered Front Porch
Covered Rear Porch

Rooms

Bedroom 2:

132 sq/ft width 11' x depth 12'

Bedroom 3:

132 sq/ft width 11' x depth 12'

Bonus Room - Unfinished:

368 sq/ft width 13' x depth 28' 4"

Breakfast:

105 sq/ft width 9' 4" x depth 11' 4"

Dining Room:

147 sq/ft width 11' 4" x depth 13'

Foyer:

55 sq/ft width 6' x depth 9' 2"

Garage:

468 sq/ft width 22' 4" x depth 21'

Great Room:

341 sq/ft width 17' 8" x depth 19' 4"

Kitchen:

132 sq/ft width 11' x depth 12'

Master Bedroom:

234 sq/ft width 13' x depth 18'

Utility Room:

34 sq/ft width 6' x depth 5' 8"

What's Included

Purchasing a CAD set gives you an unlimited build license. All other plan sets, excluding the Single Set for bidding purposes, allow you to build the home one time.
  • Cover Sheet: A rendering of the front exterior of the house.
  • Foundation Plan(s): This plan gives the foundation layout, including support walls, excavated and unexcavated areas, if any, foundation notes and details, and floor framing.
  • Floor Plan(s): These plans show the layout of each floor of the house. Rooms and interior spaces are carefully dimensioned and keys are given for cross-section details provided later in the plans, as well as window and door schedules. These plans may also show the location of kitchen appliances and plumbing fixtures, and may suggest locations for electrical fixtures, switches and outlets.
  • Exterior Elevations: Included are front, rear, left and right sides of the house. Exterior materials, details and measurements are also given.
  • Interior Elevations: The interior elevation drawings show a suggested layout design of cabinets, utility rooms, fireplaces, bookcases, built-in units and other special interior features depending on the nature and complexity of the item.
  • Overhead Roof Plan(s): The roof plan shows a bird's eye view of the overall layout of the roof, ridges, valleys, and slopes.
  • Cross Section(s): Important changes in floor, ceiling and roof heights or the relationship of one level to another are called out. Also shown, when applicable, are exterior details such as railing and banding.
  • Construction Notes / Detail(s): Shows basic parts and assemblies recommended for the home so the builder can see how things come together.
  • Door / Window Schedule(s): Sizes, quantities and descriptions of all doors and windows shown on the plan.
  • Structural Information: Overall layout and necessary details for the ceiling, second-floor framing (if applicable) and roof construction. If trusses are used, it's suggested that you use a local truss manufacturer to design your trusses to comply with your local codes and regulations. Important: design loads and weather conditions vary by region. As a result the size, spacing, and layout of all structural elements in this home design may need approval by a structural engineer or code official based on your specific site location.
  • Code Drawn To: Each plan is designed to be consistent with CABO One and Two Family Dwelling Code or the International Residential Code in effect at the time the plan was created. Modifications may be necessary to meet applicable building codes, ordinances, local climatic, and geographical design criteria. Consult a builder, architect or other construction professional as necessary. Manufacturer instructions should be followed for all materials, appliances, and systems. Heating/air conditioning layouts, plumbing pipe layouts, and electrical wiring layouts are not included. Consult a local mechanical contractor for systems suitable for local climate conditions.

FAQs

Are designs on Houseplans ready to submit to my building department for permitting?

It depends on where you're building. Our plans contain enough information for a professional builder to construct your home, but your local government may require additional information before permitting. We strongly advise that you talk with your builder before you get started. If you are building for yourself, we recommend visiting your local building department to start your diligence. Read more here.

Can I make changes to a plan?

Absolutely! Our modification service allows you to customize almost anything - whether it's adding an extra garage bay, adjusting square footage, changing the roof pitch, or more, the plan modification service is a great value and can be completed quickly. Additionally, if you purchase an electronic plan set (PDF or CAD), you may have the option to make changes locally. CAD files offer the most flexibility for custom edits. Just let us know what you're thinking, and we’ll provide an estimate and timeframe to get started. Learn more here.

How much does a house cost to build?

Find out! Build costs vary based on the size of the home, materials used, and local rates for goods and labor. Our Cost to Build report is a great way to get some basic costs dialed in before you order your plans. Just plug in your postal code, select your desired construction quality, and we'll calculate for you.

Learn more about Cost to Build reports here.

Can I trust Houseplans?

Founded in 2004, Houseplans works with hundreds of architects and designers to offer their plans at a fraction of the price of custom design. Houseplans has an "Excellent" rating on TrustPilot.

Read more about us here.

Does Houseplans offer live support?

Yes, Houseplans has a dedicated team of house plan advisors with decades of experience between them. You can reach them by calling, emailing, filling out a form on the page of a plan that you like, or going to the Contact Us page. We're available to talk every day, even on weekends.

Builder Advantage Home

Builder Advantage Program

Are you a Pro Builder? Join the club, save 5% on your first order, get exclusive discounts, and more.

Learn More

You may also like

Save Plan
Country

Plan 427-1

$897.60

beds3

bd

baths2.5

ba

stories2

stories

square feet1908

sq ft

Save Plan
Colonial

Plan 20-1220

$1255.00

beds3

bd

baths2.5

ba

stories2

stories

square feet1699

sq ft

Save Plan
Ranch

Plan 44-274

$1120.00

beds3

bd

baths2

ba

stories1

story

square feet1500

sq ft

Recently viewed plans

Exterior - Front Elevation for Farmhouse House Plan #117-967 - 3 bed, 3.5 bath
Save Plan

Plan 117-967

$1425.00

beds3

bd

baths3.5

ba

stories2

stories

square feet2384

sq ft

Photo for Bungalow House Plan #932-625, 1 bath
Save Plan

Plan 932-625

$1188.00

beds0

bd

baths1

ba

stories2

stories

square feet280

sq ft

Exterior - Front Elevation for Log House Plan #942-51 - 4 bed, 2 bath
Save Plan

Plan 942-51

$1375.00

beds4

bd

baths2

ba

stories2

stories

square feet1280

sq ft

Signature
Exterior - Front Elevation for Traditional House Plan #18-1050 - 1 bed, 1 bath
Save Plan

Plan 18-1050

$729.30

beds1

bd

baths1

ba

stories1

story

square feet768

sq ft

Exterior - Front Elevation for Victorian House Plan #410-406 - 4 bed, 3 bath
Save Plan

Plan 410-406

$1266.00

beds4

bd

baths3

ba

stories2

stories

square feet3324

sq ft

Exterior - Front Elevation for Modern House Plan #1096-118 - 2 bed, 2 bath
Save Plan

Plan 1096-118

$1050.00

beds2

bd

baths2

ba

stories1

story

square feet1395

sq ft

Signature
Exterior - Front Elevation for Country House Plan #929-885 - 3 bed, 2 bath
Save Plan

Plan 929-885

$1525.00

beds3

bd

baths2

ba

stories1

story

square feet1617

sq ft

Exterior - Front Elevation for Craftsman House Plan #1084-3 - 3 bed, 3.5 bath
Save Plan

Plan 1084-3

$1649.00

beds3

bd

baths3.5

ba

stories2

stories

square feet4842

sq ft

Exterior - Front Elevation for Colonial House Plan #489-8 - 3 bed, 3.5 bath
Save Plan

Plan 489-8

$1695.00

beds3

bd

baths3.5

ba

stories2

stories

square feet2013

sq ft