Don't lose your saved plans! 
Create an account to access your saves whenever you want. See our Terms & Conditions and Privacy Policy.
OR

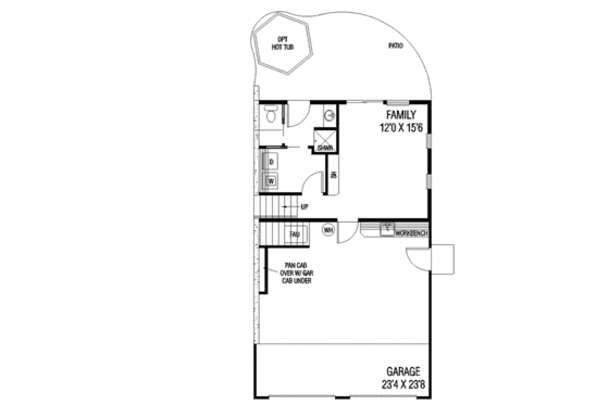
Traditional House Plan 60-103 1662 Sq Ft, 3 Bed, 3 Bath, 3 Floor, 2 Garage

Key Specs
  • 3
    Beds
  • 3
    Baths
  • 3
    Floors
  • 2
    Garages
  • 1662
    Square Feet
This traditional design floor plan is 1662 sq ft and has 3 bedrooms and 3 bathrooms.

Questions on this plan?

New to the process and looking for some help to kick things off? Let us know a bit about your plans and we’ll be happy to help.

Budget & Customization Tools

Modify icon
Customize this Plan
Tell us about your desired changes and we can prepare an estimate.
Cost to Build icon
Cost to Build Report
A personalized estimate based on your location, plan, & materials.
Cost to Build icon
Residential Construction Guide
This downloadable, 26-page guide is full of diagrams and details about plumbing, electrical, and more.

Full specs & Features

Basic Features

Bedrooms: 3
Baths: 3
Stories: 3
Garages: 2

Dimension

Depth: 40' 6"
Height: 25' 9"
Width: 48'

Area

Total: 1662 sq/ft
First Floor: 504 sq/ft
Second Floor: 792 sq/ft
* Total Square Footage typically only includes conditioned space and does not include garages, porches, bonus rooms, or decks.

Roof

Roof Framing: Combination Truss/Conventional
Roof Type: Asphalt

Exterior Wall Framing

Exterior Wall Finish: Siding
Framing: 2"x6"

Bedroom Features

Upstairs Master Bedrooms
Walk In Closet

Kitchen Features

Eating Bar

Additional Room Features

Great Room Living Room

Garage Features

Garage Under

Lot Characteristics

Suited For Sloping Lot

Outdoor Spaces

Covered Front Porch

What's Included

  • Exterior Elevations are scaled (1/4" and 1/8" = 1'-0") drawings of the front, rear, left, and right sides of the home.
  • Detailed Floor plans of the home accurately dimensioning the positioning of the walls, doors, windows, stairs, and permanent fixtures.
  • Foundation plan details the foot print of the home. Location and size of load points, stem walls, footings, pony walls, and floor joist.
  • Roof plans are typically truss planing, truss manufacturer will provide detail diagrams of truss's. In some cases the roof plans may be drawn as stick framed or have stick framing which will call out lumber sizes and spacing.
  • Cross Sections offer a cut away through the home showing your builder the correlation of building components.
  • Details indicate minimum CABO/IRC standards for construction of the home.
  • Electrical plan shows the schematic of the electrical layout. Most electricians want to discuss the options the home owner desires prior to bidding.
  • Mechanical and Detailed Plumbing plans are not included. These are site specific and are accomplished by those professionals.
  • All plans are prepared in compliance with the Uniform Building Code (ICBO) or the International Residential Code, a National Standard for residential construction at the time of completion.

FAQs

Are designs on Houseplans ready to submit to my building department for permitting?

It depends on where you're building. Our plans contain enough information for a professional builder to construct your home, but your local government may require additional information before permitting. We strongly advise that you talk with your builder before you get started. If you are building for yourself, we recommend visiting your local building department to start your diligence. Read more here.

Can I make changes to a plan?

Absolutely! Our modification service allows you to customize almost anything - whether it's adding an extra garage bay, adjusting square footage, changing the roof pitch, or more, the plan modification service is a great value and can be completed quickly. Additionally, if you purchase an electronic plan set (PDF or CAD), you may have the option to make changes locally. CAD files offer the most flexibility for custom edits. Just let us know what you're thinking, and we’ll provide an estimate and timeframe to get started. Learn more here.

How much does a house cost to build?

Find out! Build costs vary based on the size of the home, materials used, and local rates for goods and labor. Our Cost to Build report is a great way to get some basic costs dialed in before you order your plans. Just plug in your postal code, select your desired construction quality, and we'll calculate for you.

Learn more about Cost to Build reports here.

Can I trust Houseplans?

Founded in 2004, Houseplans works with hundreds of architects and designers to offer their plans at a fraction of the price of custom design. Houseplans has an "Excellent" rating on TrustPilot.

Read more about us here.

Does Houseplans offer live support?

Yes, Houseplans has a dedicated team of house plan advisors with decades of experience between them. You can reach them by calling, emailing, filling out a form on the page of a plan that you like, or going to the Contact Us page. We're available to talk every day, even on weekends.

Builder Advantage Home

Builder Advantage Program

Are you a Pro Builder? Join the club, save 5% on your first order, get exclusive discounts, and more.

Learn More

You may also like

Save Plan
Traditional

Plan 20-2346

$1305.00

beds4

bd

baths2.5

ba

stories2

stories

square feet2257

sq ft

Save Plan
Country

Plan 427-1

$897.60

beds3

bd

baths2.5

ba

stories2

stories

square feet1908

sq ft

Save Plan
Farmhouse

Plan 430-422

$1445.00

beds3

bd

baths2.5

ba

stories1

story

square feet2494

sq ft

Recently viewed plans

Exterior - Front Elevation for Traditional House Plan #60-103 - 3 bed, 3 bath
Save Plan

Plan 60-103

$900.00

beds3

bd

baths3

ba

stories3

stories

square feet1662

sq ft