Don't lose your saved plans! 
Create an account to access your saves whenever you want. See our Terms & Conditions and Privacy Policy.
OR

Farmhouse House Plan 21-513 1800 Sq Ft, 3 Bed, 2 Bath, 1 Floor, 2 Garage

Key Specs
  • 3
    Beds
  • 2
    Baths
  • 1
    Floors
  • 2
    Garages
  • 1800
    Square Feet
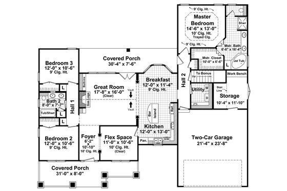
This is a refined Modern Farmhouse with Craftsman accents, offering a perfect blend of timeless design and modern convenience. Featuring 3 bedrooms, 2 full baths, and a flexible bonus space, this home is ideal for couples or growing families seeking elevated Southern living. The wide front porch and tapered columns welcome guests with classic curb appeal, while the open-concept interior showcases a vaulted great room with built-ins and gas fireplace, flowing into a gourmet kitchen with oversized island, walk-in pantry, and sunny breakfast bay. The main suite is a true retreat with tray ceiling, a spa-style bath with jet tub and separate shower, and a spacious walk-in closet. Two secondary bedrooms and a shared bath are thoughtfully placed for privacy. The rear covered porch is perfect for relaxed outdoor living, and the two-car garage includes extra storage and a built-in workbench. This home brings luxury and charm home. For the Basement version of this plan please see 21-303.

Questions on this plan?

New to the process and looking for some help to kick things off? Let us know a bit about your plans and we’ll be happy to help.

Budget & Customization Tools

Modify icon
Customize this Plan
Tell us about your desired changes and we can prepare an estimate.
Cost to Build icon
Cost to Build Report
A personalized estimate based on your location, plan, & materials.
Cost to Build icon
Residential Construction Guide
This downloadable, 26-page guide is full of diagrams and details about plumbing, electrical, and more.

Full specs & Features

Basic Features

Bedrooms: 3
Baths: 2
Stories: 1
Garages: 2

Dimension

Depth: 56' 8"
Height: 23' 7"
Width: 65'

Area

Total: 1800 sq/ft
Bonus: 326 sq/ft
Garage: 680 sq/ft
Main Floor: 3235 sq/ft
Porch: 429 sq/ft
* Total Square Footage typically only includes conditioned space and does not include garages, porches, bonus rooms, or decks.

Ceiling

Main Ceiling: 9'

Roof

Primary Pitch: 8 in 12
Roof Framing: 2x4
Roof Load: Live Load: 30 # / p.s.f. Dead Load: 10 # / p.s.f. Total Load: 40 # / p.s.f.
Roof Type: Stick
Secondary Pitch: 12 in 12

Exterior Wall Framing

Exterior Wall Finish: Stone / Siding
Framing: 2x4
Insulation: Exterior Walls: 15 Ceilings/Roof: 38 Floors < one story on Crawlspace: 19 Floor areas between first and second floors (over garages, etc.): R-19

Bedroom Features

Main Floor Master Bedroom
Split Bedrooms
Walk In Closet

Kitchen Features

Breakfast Nook
Eating Bar
Kitchen Island
Walk In Pantry Cabinet Pantry

Additional Room Features

Den Office Study Computer
Exercise Room
Great Room Living Room
Hobby Rec Room Game Room
Main Floor Laundry
Play Flex Room
Storage Area
Unfinished Future Space

Garage Features

Front Entry Garage
Oversized Garage

Outdoor Spaces

Covered Front Porch
Covered Rear Porch

More

Economical To Build
Empty Nester

What's Included

Plans are typically drawn to ¼” scale or larger and include:
  • Cover Sheet: Color rendering or black and white image of the exterior
  • Foundation Plan(s): Drawn to 1/4" scale, this page shows all necessary notations and dimensions including support columns, walls and excavated and unexcavated areas.
  • Floor Plan(s): Detailed plans, drawn to 1/4" scale for each level showing room dimensions, wall partitions, windows, etc. as well as the location of electrical outlets and switches.
  • Exterior Elevations: A blueprint picture of all four sides showing exterior materials and measurements.
  • Interior Elevations: Where applicable, each house plan set includes relevant interior elevations, including cabinets, cabinet details, columns and walls with unique conditions.
  • Overhead Roof Plan(s): Overhead view of roof.
  • Cross Section(s): A vertical cutaway view of the house from roof to foundation showing details of framing, construction, flooring and roofing.
  • Electrical Plan(s): Lighting, outlets, switches, detectors, etc.
  • Kitchen Cabinet Elevation(s): Scaled drawings of interior cabinets.
  • Construction Notes and Detail(s): Shows basic parts and assemblies recommended for the home so the builder can see how things come together.
  • Framing Detail(s): Ceiling joist size and spacing and layouts. If included, the framing layout is intended to be a suggested layout only. Design loads and weather conditions vary by region. As a result the size, spacing, and layout of all structural elements in this home design may need approval by a structural engineer or code official based on your specific site location.
  • Wall Section(s): Exterior wall and roof sections and specialty details.

FAQs

Are designs on Houseplans ready to submit to my building department for permitting?

It depends on where you're building. Our plans contain enough information for a professional builder to construct your home, but your local government may require additional information before permitting. We strongly advise that you talk with your builder before you get started. If you are building for yourself, we recommend visiting your local building department to start your diligence. Read more here.

Can I make changes to a plan?

Absolutely! Our modification service allows you to customize almost anything - whether it's adding an extra garage bay, adjusting square footage, changing the roof pitch, or more, the plan modification service is a great value and can be completed quickly. Additionally, if you purchase an electronic plan set (PDF or CAD), you may have the option to make changes locally. CAD files offer the most flexibility for custom edits. Just let us know what you're thinking, and we’ll provide an estimate and timeframe to get started. Learn more here.

How much does a house cost to build?

Find out! Build costs vary based on the size of the home, materials used, and local rates for goods and labor. Our Cost to Build report is a great way to get some basic costs dialed in before you order your plans. Just plug in your postal code, select your desired construction quality, and we'll calculate for you.

Learn more about Cost to Build reports here.

Can I trust Houseplans?

Founded in 2004, Houseplans works with hundreds of architects and designers to offer their plans at a fraction of the price of custom design. Houseplans has an "Excellent" rating on TrustPilot.

Read more about us here.

Does Houseplans offer live support?

Yes, Houseplans has a dedicated team of house plan advisors with decades of experience between them. You can reach them by calling, emailing, filling out a form on the page of a plan that you like, or going to the Contact Us page. We're available to talk every day, even on weekends.

Builder Advantage Home

Builder Advantage Program

Are you a Pro Builder? Join the club, save 5% on your first order, get exclusive discounts, and more.

Learn More

You may also like

Save Plan
Farmhouse

Plan 430-422

$1445.00

beds3

bd

baths2.5

ba

stories1

story

square feet2494

sq ft

Save Plan
Country

Plan 427-1

$897.60

beds3

bd

baths2.5

ba

stories2

stories

square feet1908

sq ft

Save Plan
Craftsman

Plan 126-236

$1195.00

beds2

bd

baths2

ba

stories1

story

square feet988

sq ft

Recently viewed plans

Exterior - Front Elevation for Farmhouse House Plan #21-513 - 3 bed, 2 bath
Save Plan

Plan 21-513

$1300.00

beds3

bd

baths2

ba

stories1

story

square feet1800

sq ft