Cottage Style House Plan - 3 Beds 2.5 Baths 1997 Sq/Ft Plan #72-126 - Houseplans.com
Search
REGISTER LOGIN SAVED No Saved Plans CART  Cart Empty
Don't lose your saved plans! Create an account to access your saves whenever you want. See our Terms & Conditions and Privacy Policy.
OR
15% OFF THIS PLAN TODAY
Photographs may show modified designs.
Home  >  Style  >  Cottage

Cottage House Plan 72-126

Key Specs


Plan Sq Ft

1997
sq ft

Plan Bedrooms

3
Beds

Plan Bathrooms

2.5
Baths

Plan Floors

2
Floors

Plan Garages

0
Garages

Questions? Get Personalized Help
Select Plan Set Options
What's included?
$175.50
Additional Construction Sets$54.00/each

Additional hard copies of the plan (can be ordered at the time of purchase and within 90 days of the purchase date).

$445.50
$135.00
$265.50
$35.10
$135.00
$76.50
Mirror Reversed Sets$0.00

Printed sets showing plan in reverse, text and dimensions will be backwards.

$895.50
Subtotal
NOW $997.92
You save $110.88
(10% savings)
Sale ends soon!
Best Price Guaranteed

Or order by phone: 1-800-913-2350
Questions? Get Personalized Help
 

 
Hours:
Ready for Your Call 7 Days a Week
Every Day 7 am - 8:30 pm Eastern

See Terms & Conditions and Privacy Policy.

Thanks for your question.

We will be in touch shortly.

Wow!
Cost to Build Reports
$1.99 with Code
CTB2026 (Limit 1)
Our Cost to Build Report gives you a personalized estimate for building your home, based on your location, plan, and materials.

Residential Construction Guide

Learn Building Basics

This downloadable, 26-page guide is full of diagrams and details about plumbing, electrical, and more.

Key Specs


Plan Sq Ft

1997
sq ft

Plan Bedrooms

3
Beds

Plan Bathrooms

2.5
Baths

Plan Floors

2
Floors

Plan Garages

0
Garages

Plan Description


This cottage design floor plan is 1997 sq ft and has 3 bedrooms and 2.5 bathrooms.

This plan can be customized!

Tell us about your desired changes so we can prepare an estimate for the design service. Click the button to submit your request for pricing, or call 1-800-913-2350.

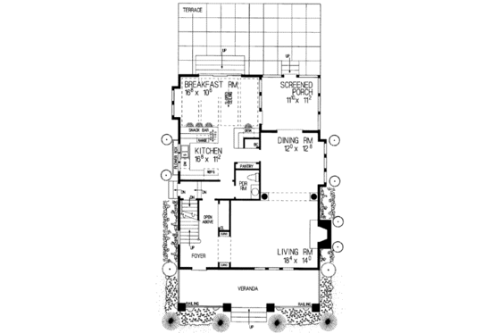
Floor Plans


Floor Plan - Main Floor

Reverse
houseplans LOGO

BUILDER Advantage Program

PRO BUILDERS

Join the club and save 5% on your first order.
PLUS download exclusive discounts and more.

LEARN MORE

Floor Plan - Upper Floor

Reverse

Full Specs & Features


Basic Features

Bedrooms : 3
Baths : 2.5
Stories: 2
Garages: 0

Dimension

Depth : 50'
Height : 27'
Width : 32' 8"

Area

Total : 1997 sq/ft
First Floor: 1111 sq/ft height 8'
Second Floor: 886 sq/ft
* Total Square Footage typically only includes conditioned space and does not include garages, porches, bonus rooms, or decks.

Roof

Primary Pitch : 6:12
Roof Framing : Conventional
Roof Type : Shingle

Exterior Wall Framing

Exterior Wall Finish : Siding
Framing : Wood - 2x6

Bedroom Features

Upstairs Master Bedrooms
Walk In Closet

Kitchen Features

Breakfast Nook
Eating Bar

Additional Room Features

Sunroom

Lot Characteristics

Suited For Narrow Lot

Outdoor Spaces

Covered Front Porch
Screened Porch

Rooms

3rd BR Closet:

12 sq/ft width 2' 1" x depth 6'

Basement Foundation:

1239 sq/ft width 30' x depth 41' 4"

Bathroom 2:

56 sq/ft width 7' 4" x depth 7' 8"

Bedroom 2:

128 sq/ft width 11' 4" x depth 11' 4"

Bedroom 2 Closet:

20 sq/ft width 5' 2" x depth 4'

Bedroom 3:

134 sq/ft width 11' 10" x depth 11' 4"

Bedroom 3 Closet:

20 sq/ft width 5' 2" x depth 4'

Breakfast Room:

175 sq/ft width 16' 8" x depth 10' 6"

Dining Room:

152 sq/ft width 12' x depth 12' 8"

Foyer:

109 sq/ft width 8' x depth 13' 8"

Hall Closet:

13 sq/ft width 2' 1" x depth 6' 3"

Kitchen:

186 sq/ft width 16' 8" x depth 11' 2"

Living Room:

256 sq/ft width 18' 4" x depth 14'

Master Bathroom:

103 sq/ft width 7' 10" x depth 13' 2"

Master Bedroom:

197 sq/ft width 12' 4" x depth 16'

Master Closet:

48 sq/ft width 8' x depth 6' 1"

Porch - Front:

202 sq/ft width 6' 8" x depth 30' 4"

Porch - Rear:

132 sq/ft width 11' 10" x depth 11' 2"

Powder Room:

30 sq/ft width 5' x depth 6'

What's included in this plan set


See a sample plan set

All plans are drawn at ¼” scale or larger and include :

  • Foundation Plan: This page shows all necessary notations and dimensions including support columns, walls, and excavated/unexcavated areas.
  • Exterior Elevations: Views of the home from all four sides showing exterior materials and measurements.
  • Floor Plan(s): Detailed plans for each level showing room dimensions, wall partitions, windows and doors, etc.
  • Cross Section: A slice of the home from roof to foundation, showing important details like stairs and wall construction.
  • Overhead Roof Plan(s): A view of the home from above showing roof pitch, peaks, valleys, and other details.
  • Construction Notes and Details: Shows the builder how things come together, like walls, the chimney, insulation, and more.
* See important information before purchasing

Pricing


Plan Options

PDF Set

Best Value!
$997.92
PDF plan sets are best for fast electronic delivery and inexpensive local printing.

5 Copy Set

$1122.66
5 printed plan sets mailed to you.

8 Copy Set

$1247.40
8 printed plan sets mailed to you.

Single Set

$873.18
One printed set for bidding purposes only. Not a legal building set for construction.

Foundation Options

Basement

$0.00
Ideal for level lot, lower level of home partially or fully underground.

*Options with a fee may take time to prepare. Please call to confirm.

Additional Options

Right-Reading Reverse

$175.50
Choose this option to reverse your plans and to have the text and dimensions readable.

Additional Construction Sets

$54.00
Additional hard copies of the plan (can be ordered at the time of purchase and within 90 days of the purchase date).

Additional Use License

$445.50
Allows you to build one more home for each additional license purchased.

Audio Video Design

$135.00
Receive an overlay sheet with suggested placement of audio and video components.

Comprehensive Material List

$265.50
A complete list of building supplies needed to construct the infrastructure of your new house, plus an overlay of materials shown directly on your PDF (foundation to rooftop with interior and exterior materials), and a detailed, itemized door and window schedule showing all sizes and types. Please allow 5-7 Business Days for completion. Note, the Comprehensive list is only available with a PDF purchase. The Comprehensive list can be ordered no matter what additional plan options you have selected.

Construction Guide

$35.10
Educate yourself about basic building ideas with these four detailed diagrams that discuss electrical, plumbing, mechanical, and structural topics.

Lighting Design

$135.00
Receive an overlay sheet with suggested placement of lighting fixtures.

Material List

$76.50
A spreadsheet of building supplies needed to construct the infrastructure of your new house. Please note materials lists will not reflect add-ons such as alternate foundation and framing options.

Mirror Reversed Sets

$0.00
A mirror-reversed set is a printed copy of your house, resulting in the same image you would see if you held the drawing up to a mirror. Everything, including the text, is backward in relation to the original design. These kinds of drawing are typically used to reorient an original plan more advantageously on a site, either because the homeowner prefers it that way or because of limitations of the site itself. Note: Mirror reverse sets are only available with a 5 copy or 8 copy set. With a Reproducible, PDF, or CAD set, you can print mirrored copies locally. In addition: 5 Copy set selected, should only allow 4 mirrored sets to be selected. 8 Copy set selected, should only allow 7 mirrored sets to be selected.

Unlimited Use License

$895.50
Allows you to build this home as many times as you want.

*Options with a fee may take time to prepare. Please call to confirm.

Unless you buy an “unlimited” plan set or a multi-use license you may only build one home from a set of plans. Please call to verify if you intend to build more than once. Plan licenses are non-transferable and cannot be resold.

We offer a 90% credit when you upgrade from a set, that is not for construction, to a 5-Copy set (or greater).

Meet the Designer

Homeplanners, L.L.C.

Homeplanners, L.L.C. - Houseplans.com

Other Plans By This Designer

See all plans by
Homeplanners, L.L.C.

Need help? Let our friendly experts help you find the perfect plan!

Contact us now for a free consultation.

Coupon Codes