Don't lose your saved plans! 
Create an account to access your saves whenever you want. See our Terms & Conditions and Privacy Policy.
OR

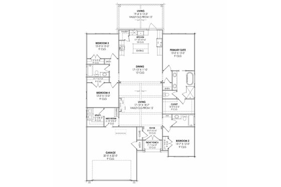
Cottage House Plan 1096-138 2000 Sq Ft, 4 Bed, 3 Bath, 1 Floor, 2 Garage

Key Specs
  • 4
    Beds
  • 3
    Baths
  • 1
    Floors
  • 2
    Garages
  • 2000
    Square Feet
This cottage design floor plan is 2000 sq ft and has 4 bedrooms and 3 bathrooms.

Questions on this plan?

New to the process and looking for some help to kick things off? Let us know a bit about your plans and we’ll be happy to help.

Budget & Customization Tools

Modify icon
Customize this Plan
Tell us about your desired changes and we can prepare an estimate.
Cost to Build icon
Cost to Build Report
A personalized estimate based on your location, plan, & materials.
Cost to Build icon
Residential Construction Guide
This downloadable, 26-page guide is full of diagrams and details about plumbing, electrical, and more.

Full specs & Features

Basic Features

Bedrooms: 4
Baths: 3
Stories: 1
Garages: 2

Dimension

Depth: 73' 4"
Height: 26'
Width: 45'

Area

Total: 2000 sq/ft
Garage: 478 sq/ft
Main Floor: 2000 sq/ft
Porch: 227 sq/ft
* Total Square Footage typically only includes conditioned space and does not include garages, porches, bonus rooms, or decks.

Ceiling

Main Ceiling: 9'

Roof

Primary Pitch: 8:12
Secondary Pitch: 14:12

Bedroom Features

Main Floor Bedrooms
Main Floor Master Bedroom
Split Bedrooms
Walk In Closet

Kitchen Features

Kitchen Island
Walk In Pantry Cabinet Pantry

Additional Room Features

Family Room Keeping Room
Main Floor Laundry
Mud Room

Garage Features

Front Entry Garage

Lot Characteristics

Suited For Corner Lot
Suited For Narrow Lot
Suited For Sloping Lot
Suited For View Lot

Outdoor Spaces

Covered Front Porch
Covered Rear Porch

More

Economical To Build

Energy Efficient Features

Energy Efficient Design

What's Included

  • Modeling: A 3D perspective view of the home design
  • Main / Upper-Level Floor Plans: Typically drawn to 1/4" scale with all dimensions and notes, plus a Window and Door Schedule showing all door and window types, quantities, and descriptions.
  • Electrical Details and Sections: Illustrated on a separate page for clarity, the electrical plan shows suggested electrical layout for the main and upper-level floor plans.
  • Exterior Elevations: All elevations are noted, and an aerial view of the roof is provided, showing all hips, valleys, and ridges.
  • Siding Notes and Details: Siding installation page and wall sheathing / portal wall framing page.
  • General Notes and Area Details: Shows square footage details for foundation, porches, patios, garage, and floor plans, plus general contractor notes.
  • Foundation Plan: Dimensioned foundation plan with notes and generic beam details. Basic plumbing plan that shows distances from the edge of the slab on grade to each fixture. Slab foundations are standard for most plans, Alternate foundations are available for a fee.
  • Typical floor joist and roof truss diagram: Shows placement and directions of floor joists, suggested placement and direction of roof trusses.
  • Wall Section(s): Detail of wall materials and assembly, plate heights, fireplace detail
  • Note: Interior elevations are not typically included but can be added for a fee. Please call for details.

FAQs

Are designs on Houseplans ready to submit to my building department for permitting?

It depends on where you're building. Our plans contain enough information for a professional builder to construct your home, but your local government may require additional information before permitting. We strongly advise that you talk with your builder before you get started. If you are building for yourself, we recommend visiting your local building department to start your diligence. Read more here.

Can I make changes to a plan?

Absolutely! Our modification service allows you to customize almost anything - whether it's adding an extra garage bay, adjusting square footage, changing the roof pitch, or more, the plan modification service is a great value and can be completed quickly. Additionally, if you purchase an electronic plan set (PDF or CAD), you may have the option to make changes locally. CAD files offer the most flexibility for custom edits. Just let us know what you're thinking, and we’ll provide an estimate and timeframe to get started. Learn more here.

How much does a house cost to build?

Find out! Build costs vary based on the size of the home, materials used, and local rates for goods and labor. Our Cost to Build report is a great way to get some basic costs dialed in before you order your plans. Just plug in your postal code, select your desired construction quality, and we'll calculate for you.

Learn more about Cost to Build reports here.

Can I trust Houseplans?

Founded in 2004, Houseplans works with hundreds of architects and designers to offer their plans at a fraction of the price of custom design. Houseplans has an "Excellent" rating on TrustPilot.

Read more about us here.

Does Houseplans offer live support?

Yes, Houseplans has a dedicated team of house plan advisors with decades of experience between them. You can reach them by calling, emailing, filling out a form on the page of a plan that you like, or going to the Contact Us page. We're available to talk every day, even on weekends.

Builder Advantage Home

Builder Advantage Program

Are you a Pro Builder? Join the club, save 5% on your first order, get exclusive discounts, and more.

Learn More

You may also like

Save Plan
Cottage

Plan 515-56

$650.00

beds2

bd

baths2

ba

stories1

story

square feet838

sq ft

Save Plan
European

Plan 453-56

$1550.00

beds3

bd

baths4

ba

stories2

stories

square feet3359

sq ft

Save Plan
Tudor

Plan 901-99

$2600.00

beds4

bd

baths3.5

ba

stories2

stories

square feet3498

sq ft

Recently viewed plans

Cottage Exterior - Front Elevation Plan #1096-138
Save Plan

Plan 1096-138

$1480.00

beds4

bd

baths3

ba

stories1

story

square feet2000

sq ft