Modern Style House Plan - 4 Beds 4.5 Baths 4557 Sq/Ft Plan #1096-161 - Houseplans.com
Search
REGISTER LOGIN SAVED No Saved Plans CART  Cart Empty
Don't lose your saved plans! Create an account to access your saves whenever you want. See our Terms & Conditions and Privacy Policy.
OR
Plan 1096-161
Photographs may show modified designs.
Home  >  Style  >  Modern

Modern House Plan 1096-161

Key Specs


Plan Sq Ft

4557
sq ft

Plan Bedrooms

4
Beds

Plan Bathrooms

4.5
Baths

Plan Floors

2
Floors

Plan Garages

3
Garages

Questions? Get Personalized Help
Select Plan Set Options
What's included?
$245.00
$165.00
$395.00
$39.00
$165.00
Mirror Reversed Sets$0.00

Printed sets showing plan in reverse, text and dimensions will be backwards.

Subtotal
$2275.00
Best Price Guaranteed

Or order by phone: 1-800-913-2350
Questions? Get Personalized Help
 

 
Hours:
Ready for Your Call 7 Days a Week
Every Day 7 am - 8:30 pm Eastern

See Terms & Conditions and Privacy Policy.

Thanks for your question.

We will be in touch shortly.

Wow!
Cost to Build Reports
$1.99 with Code
CTBFALL (Limit 1)
Our Cost to Build Report gives you a personalized estimate for building your home, based on your location, plan, and materials.

Residential Construction Guide

Learn Building Basics

This downloadable, 26-page guide is full of diagrams and details about plumbing, electrical, and more.

Key Specs


Plan Sq Ft

4557
sq ft

Plan Bedrooms

4
Beds

Plan Bathrooms

4.5
Baths

Plan Floors

2
Floors

Plan Garages

3
Garages

Plan Description


This modern design floor plan is 4557 sq ft and has 4 bedrooms and 4.5 bathrooms. Optional Bonus Room : 440 sq/ft

This plan can be customized!

Tell us about your desired changes so we can prepare an estimate for the design service. Click the button to submit your request for pricing, or call 1-800-913-2350.

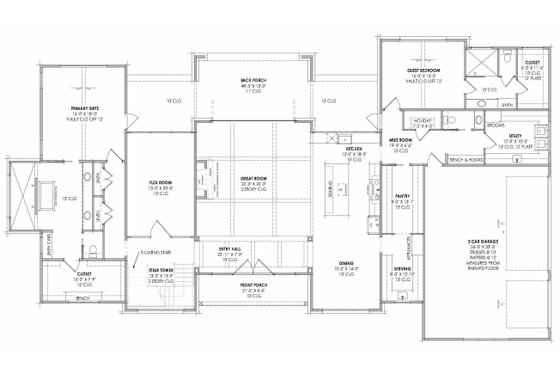
Floor Plans


Floor Plan - Main Floor

Reverse
houseplans LOGO

BUILDER Advantage Program

PRO BUILDERS

Join the club and save 5% on your first order.
PLUS download exclusive discounts and more.

LEARN MORE

Floor Plan - Upper Floor

Reverse

Full Specs & Features


Basic Features

Bedrooms : 4
Baths : 4.5
Stories: 2
Garages: 3

Dimension

Depth : 58' 10"
Height : 33' 8"
Width : 105' 6"

Area

Total : 4557 sq/ft
Garage : 828 sq/ft
Lower Floor : 0 sq/ft
Main Floor : 3487 sq/ft
Optional Bonus Room : 440 sq/ft
Porch : 710 sq/ft
Upper Floor : 1070 sq/ft
* Total Square Footage typically only includes conditioned space and does not include garages, porches, bonus rooms, or decks.

Ceiling

Main Ceiling : 10'
Upper Ceiling Ft : 10'

Roof

Primary Pitch : 10:12
Secondary Pitch : 12:12

Bedroom Features

2 Master Suites
Main Floor Bedrooms
Main Floor Master Bedroom
Split Bedrooms
Upstairs Bedrooms
Walk In Closet

Kitchen Features

Butler's Pantry
Kitchen Island
Walk In Pantry Cabinet Pantry

Additional Room Features

Den Office Study Computer
Exercise Room
Great Room Living Room
Hobby Rec Room Game Room
Loft
Main Floor Laundry
Media Room
Mud Room
Play Flex Room
Unfinished Future Space
Wet Bar

Garage Features

Side Entry Garage

Lot Characteristics

Suited For Corner Lot
Suited For Sloping Lot
Suited For View Lot

Outdoor Spaces

Covered Front Porch
Covered Rear Porch

What's included in this plan set


See a sample plan set
  • Modeling: A 3D perspective view of the home design
  • Main / Upper-Level Floor Plans: Typically drawn to 1/4" scale with all dimensions and notes, plus a Window and Door Schedule showing all door and window types, quantities, and descriptions.
  • Electrical Details and Sections: Illustrated on a separate page for clarity, the electrical plan shows suggested electrical layout for the main and upper-level floor plans.
  • Exterior Elevations: All elevations are noted, and an aerial view of the roof is provided, showing all hips, valleys, and ridges.
  • Siding Notes and Details: Siding installation page and wall sheathing / portal wall framing page.
  • General Notes and Area Details: Shows square footage details for foundation, porches, patios, garage, and floor plans, plus general contractor notes.
  • Foundation Plan: Dimensioned foundation plan with notes and generic beam details. Basic plumbing plan that shows distances from the edge of the slab on grade to each fixture. Slab foundations are standard for most plans, Alternate foundations are available for a fee.
  • Typical floor joist and roof truss diagram: Shows placement and directions of floor joists, suggested placement and direction of roof trusses.
  • Wall Section(s): Detail of wall materials and assembly, plate heights, fireplace detail
  • Note: Interior elevations are not typically included but can be added for a fee. Please call for details.
* See important information before purchasing

Pricing


Plan Options

PDF Set

Best Value!
$2275.00
PDF plan sets are best for fast electronic delivery and inexpensive local printing.

PDF Unlimited Build

$2895.00
PDF plan sets are best for fast electronic delivery and inexpensive local printing.

CAD and PDF Set Unlimited Build

$3305.00
For use by design professionals to make substantial changes to your house plan and inexpensive local printing plus PDF plan sets are best for fast electronic delivery and inexpensive local printing.

Foundation Options

Monolithic Slab

$0.00
A single concrete pour with thicker portions that replace footers under load bearing walls and all perimeter edges.

Crawlspace

$540.00
Ideal for semi-sloped or level lot, home can be built off of grade, typically 18” - 48”.

Basement

$590.00
Ideal for level lot, lower level of home partially or fully underground.

Walk Out Basement

$750.00
Ideal for a sloping lot, lower level with outdoor access.

*Options with a fee may take time to prepare. Please call to confirm.

Framing Options

Wood 2x6

$0.00
Wood 2x6 Exterior Walls

*Options with a fee may take time to prepare. Please call to confirm.

Additional Options

Right-Reading Reverse

$245.00
Choose this option to reverse your plans and to have the text and dimensions readable.

Audio Video Design

$165.00
Receive an overlay sheet with suggested placement of audio and video components.

Comprehensive Material List

$395.00
A complete list of building supplies needed to construct the infrastructure of your new house, plus an overlay of materials shown directly on your PDF (foundation to rooftop with interior and exterior materials), and a detailed, itemized door and window schedule showing all sizes and types. Please allow 5-7 Business Days for completion. Note, the Comprehensive list is only available with a PDF purchase. The Comprehensive list can be ordered no matter what additional plan options you have selected.

Construction Guide

$39.00
Educate yourself about basic building ideas with these four detailed diagrams that discuss electrical, plumbing, mechanical, and structural topics.

Lighting Design

$165.00
Receive an overlay sheet with suggested placement of lighting fixtures.

Mirror Reversed Sets

$0.00
A mirror-reversed set is a printed copy of your house, resulting in the same image you would see if you held the drawing up to a mirror. Everything, including the text, is backward in relation to the original design. These kinds of drawing are typically used to reorient an original plan more advantageously on a site, either because the homeowner prefers it that way or because of limitations of the site itself. Note: Mirror reverse sets are only available with a 5 copy or 8 copy set. With a Reproducible, PDF, or CAD set, you can print mirrored copies locally. In addition: 5 Copy set selected, should only allow 4 mirrored sets to be selected. 8 Copy set selected, should only allow 7 mirrored sets to be selected.

*Options with a fee may take time to prepare. Please call to confirm.

Unless you buy an “unlimited” plan set or a multi-use license you may only build one home from a set of plans. Please call to verify if you intend to build more than once. Plan licenses are non-transferable and cannot be resold.

Other Plans By This Designer

See all plans by
this designer

Need help? Let our friendly experts help you find the perfect plan!

Contact us now for a free consultation.