2056
sq ft
4
Beds
2.5
Baths
3
Floors
2
Garages
See Terms & Conditions and Privacy Policy.
Thanks for your question.
We will be in touch shortly.
Residential Construction Guide
Learn Building Basics
This downloadable, 26-page guide is full of diagrams and details about plumbing, electrical, and more.
2056
sq ft
4
Beds
2.5
Baths
3
Floors
2
Garages
BUILDER Advantage Program
PRO BUILDERS
Join the club and save 5% on your first order.
PLUS download exclusive discounts and more.
LEARN MORE
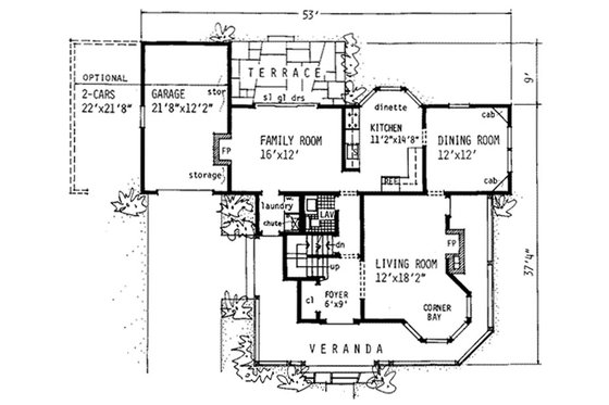
Bedroom 2:
180 sq/ft width 15' x depth 12'
Bedroom 3:
180 sq/ft width 15' x depth 12'
Dining Room:
144 sq/ft width 12' x depth 12'
Family Room:
192 sq/ft width 16' x depth 12'
Foyer:
54 sq/ft width 6' x depth 9'
Kitchen:
163 sq/ft width 11' 2" x depth 14' 8"
Living Room:
218 sq/ft width 12' x depth 18' 2"
Master Suite:
192 sq/ft width 12' x depth 16'
*Options with a fee may take time to prepare. Please call to confirm.
*Options with a fee may take time to prepare. Please call to confirm.
Unless you buy an “unlimited” plan set or a multi-use license you may only build one home from a set of plans. Please call to verify if you intend to build more than once. Plan licenses are non-transferable and cannot be resold.
We offer a 90% credit when you upgrade from a set, that is not for construction, to a 5-Copy set (or greater).
Need help? Let our friendly experts help you find the perfect plan!
Contact us now for a free consultation.
 
             
             
             
             
             
             
             
             
             
             
             
             
             
             
             
             
            