Craftsman Style House Plan - 4 Beds 3 Baths 2099 Sq/Ft Plan #53-582 - Houseplans.com
Search
REGISTER LOGIN SAVED No Saved Plans CART  Cart Empty
Don't lose your saved plans! Create an account to access your saves whenever you want. See our Terms & Conditions and Privacy Policy.
OR
15% OFF THIS PLAN TODAY
Plan 53-582
Photographs may show modified designs.
Home  >  Style  >  Craftsman

Craftsman House Plan 53-582

Key Specs


Plan Sq Ft

2099
sq ft

Plan Bedrooms

4
Beds

Plan Bathrooms

3
Baths

Plan Floors

3
Floors

Plan Garages

2
Garages

Questions? Get Personalized Help
Select Plan Set Options
What's included?
$170.00
$807.50
$140.25
$250.75
$33.15
$140.25
Subtotal
NOW $1440.75
You save $254.25
(15% savings)
Sale ends soon!
Best Price Guaranteed

Or order by phone: 1-800-913-2350
Questions? Get Personalized Help
 

 
Hours:
Ready for Your Call 7 Days a Week
Every Day 7 am - 8:30 pm Eastern

See Terms & Conditions and Privacy Policy.

Thanks for your question.

We will be in touch shortly.

Wow!
Cost to Build Reports
$1.99 with Code
CTB2026 (Limit 1)
Our Cost to Build Report gives you a personalized estimate for building your home, based on your location, plan, and materials.

Residential Construction Guide

Learn Building Basics

This downloadable, 26-page guide is full of diagrams and details about plumbing, electrical, and more.

Key Specs


Plan Sq Ft

2099
sq ft

Plan Bedrooms

4
Beds

Plan Bathrooms

3
Baths

Plan Floors

3
Floors

Plan Garages

2
Garages

Plan Description


This craftsman design floor plan is 2099 sq ft and has 4 bedrooms and 3 bathrooms.

This plan can be customized!

Tell us about your desired changes so we can prepare an estimate for the design service. Click the button to submit your request for pricing, or call 1-800-913-2350.

Floor Plans


Floor Plan - Main Floor

Reverse
houseplans LOGO

BUILDER Advantage Program

PRO BUILDERS

Join the club and save 5% on your first order.
PLUS download exclusive discounts and more.

LEARN MORE

Floor Plan - Upper Floor

Reverse

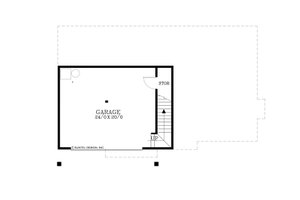
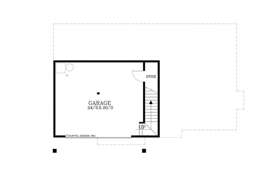
Floor Plan - Lower Floor

Reverse

Full Specs & Features


Basic Features

Bedrooms : 4
Baths : 3
Stories: 3
Garages: 2

Dimension

Depth : 31'
Height : 37' 9"
Width : 50'

Area

Total : 2099 sq/ft
Bonus : 232 sq/ft
Garage : 480 sq/ft
Lower Floor : 609 sq/ft
Main Floor : 1546 sq/ft
Upper Floor : 553 sq/ft
* Total Square Footage typically only includes conditioned space and does not include garages, porches, bonus rooms, or decks.

Ceiling

Ceiling Details : VAULTED
Main Ceiling : 9'
Upper Ceiling Ft : 8'

Roof

Primary Pitch : 10:12
Roof Framing : TRUSS
Roof Load : 30LB
Roof Type : COMPOSITION

Exterior Wall Framing

Exterior Wall Finish : LAP, SHINGLE, STONE
Framing : 2X6
Insulation : R-21

Bedroom Features

Main Floor Master Bedroom
Upstairs Bedrooms
Walk In Closet

Kitchen Features

Kitchen Island
Walk In Pantry Cabinet Pantry

Additional Room Features

Great Room Living Room
Main Floor Laundry
Play Flex Room

Garage Features

Front Entry Garage

More

Economical To Build
Empty Nester

What's included in this plan set


See a sample plan set
All plans are drawn at ¼” scale or larger and include :
  • Foundation Plan: Drawn to 1/4" scale, this page shows all necessary notations and dimensions including support columns, walls and excavated and unexcavated areas.
  • Exterior Elevations: A blueprint picture of all four sides showing exterior materials and measurements.
  • Floor Plan(s): Detailed plans, drawn to 1/4" scale for each level showing room dimensions, wall partitions, windows, etc.
  • Cross Section: A vertical cutaway view of the house from roof to foundation showing details of framing, construction, flooring and roofing.
* See important information before purchasing

Pricing


Plan Options

PDF Set

Best Value!
$1440.75
PDF plan sets are best for fast electronic delivery and inexpensive local printing.

CAD and PDF Set

$2120.75
For use by design professionals to make substantial changes to your house plan and inexpensive local printing plus PDF plan sets are best for fast electronic delivery and inexpensive local printing.

Foundation Options

Crawlspace

$0.00
Ideal for semi-sloped or level lot, home can be built off of grade, typically 18” - 48”.

Slab

$233.75
Ideal for level lot, single layer concrete poured directly on grade.

*Options with a fee may take time to prepare. Please call to confirm.

Framing Options

Wood 2x6

$0.00
Wood 2x6 Exterior Walls

Wood 2x4

$297.50
Wood 2x4 Exterior Walls

*Options with a fee may take time to prepare. Please call to confirm.

Additional Options

Right-Reading Reverse

$170.00
Choose this option to reverse your plans and to have the text and dimensions readable.

Additional Use License

$807.50
Allows you to build one more home for each additional license purchased.

Audio Video Design

$140.25
Receive an overlay sheet with suggested placement of audio and video components.

Comprehensive Material List

$250.75
A complete list of building supplies needed to construct the infrastructure of your new house, plus an overlay of materials shown directly on your PDF (foundation to rooftop with interior and exterior materials), and a detailed, itemized door and window schedule showing all sizes and types. Please allow 5-7 Business Days for completion. Note, the Comprehensive list is only available with a PDF purchase. The Comprehensive list can be ordered no matter what additional plan options you have selected.

Construction Guide

$33.15
Educate yourself about basic building ideas with these four detailed diagrams that discuss electrical, plumbing, mechanical, and structural topics.

Lighting Design

$140.25
Receive an overlay sheet with suggested placement of lighting fixtures.

*Options with a fee may take time to prepare. Please call to confirm.

Unless you buy an “unlimited” plan set or a multi-use license you may only build one home from a set of plans. Please call to verify if you intend to build more than once. Plan licenses are non-transferable and cannot be resold.

Other Plans By This Designer

See all plans by
this designer

Need help? Let our friendly experts help you find the perfect plan!

Contact us now for a free consultation.