Traditional Style House Plan - 4 Beds 2.5 Baths 2100 Sq/Ft Plan #21-290 - Houseplans.com
Search
REGISTER LOGIN SAVED No Saved Plans CART  Cart Empty
Don't lose your saved plans! Create an account to access your saves whenever you want. See our Terms & Conditions and Privacy Policy.
OR
15% OFF FOR THE FIRST 25 CUSTOMERS
Plan 21-290
Photographs may show modified designs.
Home  >  Style  >  Traditional

Traditional House Plan 21-290

Key Specs


Plan Sq Ft

2100
sq ft

Plan Bedrooms

4
Beds

Plan Bathrooms

2.5
Baths

Plan Floors

1
Floors

Plan Garages

2
Garages

Questions? Get Personalized Help
Select Plan Set Options
What's included?
$127.50
Additional Construction Sets$55.25/each

Additional hard copies of the plan (can be ordered at the time of purchase and within 90 days of the purchase date).

$140.25
$33.15
$140.25
$127.50
Mirror Reversed Sets$42.50

Printed sets showing plan in reverse, text and dimensions will be backwards.

Subtotal
NOW $1190.00
You save $210.00
(15% savings)
Sale ends soon!
Best Price Guaranteed

Or order by phone: 1-800-913-2350
Questions? Get Personalized Help
 

 
Hours:
Ready for Your Call 7 Days a Week
Every Day 7 am - 8:30 pm Eastern

See Terms & Conditions and Privacy Policy.

Thanks for your question.

We will be in touch shortly.

Wow!
Cost to Build Reports
$1.99 with Code
CTB2026 (Limit 1)
Our Cost to Build Report gives you a personalized estimate for building your home, based on your location, plan, and materials.

Residential Construction Guide

Learn Building Basics

This downloadable, 26-page guide is full of diagrams and details about plumbing, electrical, and more.

Key Specs


Plan Sq Ft

2100
sq ft

Plan Bedrooms

4
Beds

Plan Bathrooms

2.5
Baths

Plan Floors

1
Floors

Plan Garages

2
Garages

Plan Description


This home is packed with all the features that you've always wanted, all within 2100 s.f. A foyer, formal dining room, fourth bedroom, and half bath are all extras that you would expect to find in a much larger home. The great room includes vaulted ceilings, built-in cabinets and a gas log fireplace. The kitchen is well-equipped and is located within close proximity to the breakfast area, dining room, and garage entrance. The master suite includes a trayed ceiling, dual lavatories, compartmented toilet, whirlpool tub, separate shower, and his and hers closets. Each of the other bedrooms also feature individual walk-in closets and share a bath with separate tub and toilet room. The front and rear porches provide perfect outdoor living space. The bonus room is also a great place for a playroom / game room and even has space for a future bath.

This plan can be customized!

Tell us about your desired changes so we can prepare an estimate for the design service. Click the button to submit your request for pricing, or call 1-800-913-2350.

Floor Plans


Floor Plan - Main Floor

Reverse
houseplans LOGO

BUILDER Advantage Program

PRO BUILDERS

Join the club and save 5% on your first order.
PLUS download exclusive discounts and more.

LEARN MORE

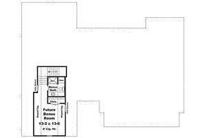
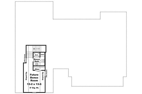
Floor Plan - Upper Floor

Reverse

Full Specs & Features


Basic Features

Bedrooms : 4
Baths : 2.5
Stories: 1
Garages: 2

Dimension

Depth : 57'
Height : 24' 2"
Width : 69'

Area

Total : 2100 sq/ft
Bonus: 348 sq/ft
First Floor: 2100 sq/ft height 9'
Garage: 670 sq/ft
* Total Square Footage typically only includes conditioned space and does not include garages, porches, bonus rooms, or decks.

Ceiling

Main Ceiling : 9'
Upper Ceiling Ft : 8'

Roof

Primary Pitch : 10:12
Roof Framing : Conventional
Roof Type : Hip / Gable
Secondary Pitch : 12:12

Exterior Wall Framing

Exterior Wall Finish : Siding/Stone
Framing : 2"x4"

Bedroom Features

Split Bedrooms
Walk In Closet

Kitchen Features

Breakfast Nook
Eating Bar

Additional Room Features

Den Office Study Computer
Great Room Living Room
Play Flex Room
Storage Area

Garage Features

Side Entry Garage

Lot Characteristics

Suited For Corner Lot

Outdoor Spaces

Covered Front Porch
Covered Rear Porch

Rooms

Bedroom 2:

124 sq/ft width 11' 6" x depth 10' 10"

Bedroom 3:

133 sq/ft width 11' x depth 12' 2"

Bedroom 4:

133 sq/ft width 11' x depth 12' 2"

Bonus Room - Finished:

177 sq/ft width 13' 2" x depth 13' 6"

Breakfast:

95 sq/ft width 11' 6" x depth 8' 4"

Dining Room:

124 sq/ft width 11' 6" x depth 10' 10"

Foyer:

61 sq/ft width 5' 8" x depth 10' 10"

Garage:

506 sq/ft width 22' 10" x depth 22' 2"

Great Room:

282 sq/ft width 17' 6" x depth 16' 2"

Kitchen:

161 sq/ft width 11' 6" x depth 14'

Laundry Room:

55 sq/ft width 9' 2" x depth 6'

Master Bathroom:

146 sq/ft width 9' x depth 16' 4"

Master Bedroom:

200 sq/ft width 13' 6" x depth 14' 10"

Master Closet:

49 sq/ft width 9' x depth 5' 6"

Master Closet Two:

38 sq/ft width 9' x depth 4' 4"

Porch - Front:

192 sq/ft width 32' x depth 6'

Porch - Rear:

234 sq/ft width 29' 4" x depth 8'

What's included in this plan set


See a sample plan set
Plans are typically drawn to ¼” scale or larger and include:
  • Cover Sheet: Color rendering or black and white image of the exterior
  • Foundation Plan(s): Drawn to 1/4" scale, this page shows all necessary notations and dimensions including support columns, walls and excavated and unexcavated areas.
  • Floor Plan(s): Detailed plans, drawn to 1/4" scale for each level showing room dimensions, wall partitions, windows, etc. as well as the location of electrical outlets and switches.
  • Exterior Elevations: A blueprint picture of all four sides showing exterior materials and measurements.
  • Interior Elevations: Where applicable, each house plan set includes relevant interior elevations, including cabinets, cabinet details, columns and walls with unique conditions.
  • Overhead Roof Plan(s): Overhead view of roof.
  • Cross Section(s): A vertical cutaway view of the house from roof to foundation showing details of framing, construction, flooring and roofing.
  • Electrical Plan(s): Lighting, outlets, switches, detectors, etc.
  • Kitchen Cabinet Elevation(s): Scaled drawings of interior cabinets.
  • Construction Notes and Detail(s): Shows basic parts and assemblies recommended for the home so the builder can see how things come together.
  • Framing Detail(s): Ceiling joist size and spacing and layouts. If included, the framing layout is intended to be a suggested layout only. Design loads and weather conditions vary by region. As a result the size, spacing, and layout of all structural elements in this home design may need approval by a structural engineer or code official based on your specific site location.
  • Wall Section(s): Exterior wall and roof sections and specialty details.
* See important information before purchasing

Pricing


Plan Options

PDF Set

Best Value!
$1190.00
PDF plan sets are best for fast electronic delivery and inexpensive local printing.

5 Copy Set

$1275.00
5 printed plan sets mailed to you.

5 Copy and PDF Set

$1445.00
5 printed plan sets mailed to you plus PDF plan sets are best for fast electronic delivery and inexpensive local printing.

CAD Set

$1785.00
For use by design professionals to make substantial changes to your house plan and inexpensive local printing.

Single Set

$1062.50
One printed set for bidding purposes only. Not a legal building set for construction.

Foundation Options

Crawlspace

$0.00
Ideal for semi-sloped or level lot, home can be built off of grade, typically 18” - 48”.

Slab

$0.00
Ideal for level lot, single layer concrete poured directly on grade.

*Options with a fee may take time to prepare. Please call to confirm.

Additional Options

Right-Reading Reverse

$127.50
Choose this option to reverse your plans and to have the text and dimensions readable.

Additional Construction Sets

$55.25
Additional hard copies of the plan (can be ordered at the time of purchase and within 90 days of the purchase date).

Audio Video Design

$140.25
Receive an overlay sheet with suggested placement of audio and video components.

Construction Guide

$33.15
Educate yourself about basic building ideas with these four detailed diagrams that discuss electrical, plumbing, mechanical, and structural topics.

Lighting Design

$140.25
Receive an overlay sheet with suggested placement of lighting fixtures.

Material List

$127.50
A spreadsheet of building supplies needed to construct the infrastructure of your new house. Please note materials lists will not reflect add-ons such as alternate foundation and framing options.

Mirror Reversed Sets

$42.50
A mirror-reversed set is a printed copy of your house, resulting in the same image you would see if you held the drawing up to a mirror. Everything, including the text, is backward in relation to the original design. These kinds of drawing are typically used to reorient an original plan more advantageously on a site, either because the homeowner prefers it that way or because of limitations of the site itself. Note: Mirror reverse sets are only available with a 5 copy or 8 copy set. With a Reproducible, PDF, or CAD set, you can print mirrored copies locally. In addition: 5 Copy set selected, should only allow 4 mirrored sets to be selected. 8 Copy set selected, should only allow 7 mirrored sets to be selected.

*Options with a fee may take time to prepare. Please call to confirm.

Unless you buy an “unlimited” plan set or a multi-use license you may only build one home from a set of plans. Please call to verify if you intend to build more than once. Plan licenses are non-transferable and cannot be resold.

We offer a 90% credit when you upgrade from a set, that is not for construction, to a 5-Copy set (or greater).

Other Plans By This Designer

See all plans by
this designer

Browse Similar Plans

Need help? Let our friendly experts help you find the perfect plan!

Contact us now for a free consultation.