Don't lose your saved plans! 
Create an account to access your saves whenever you want. See our Terms & Conditions and Privacy Policy.
OR

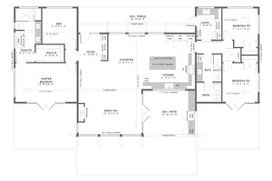
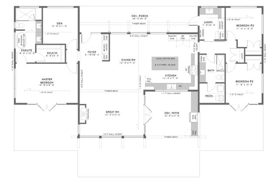
Contemporary House Plan 1086-6 2133 Sq Ft, 3 Bed, 2 Bath, 1 Floor, 0 Garage

Key Specs
  • 3
    Beds
  • 2
    Baths
  • 1
    Floors
  • 0
    Garages
  • 2133
    Square Feet
This Contemporary Cabin plan is the perfect layout for your lakeside recreational property. It features three bedrooms all on one level plus a Den and vaulted ceilings throughout, as well as a huge outdoor kitchen space to enjoy the view while you cook or grill.

Questions on this plan?

New to the process and looking for some help to kick things off? Let us know a bit about your plans and we’ll be happy to help.

Budget & Customization Tools

Modify icon
Customize this Plan
Tell us about your desired changes and we can prepare an estimate.
Cost to Build icon
Cost to Build Report
A personalized estimate based on your location, plan, & materials.
Cost to Build icon
Residential Construction Guide
This downloadable, 26-page guide is full of diagrams and details about plumbing, electrical, and more.

Full specs & Features

Basic Features

Bedrooms: 3
Baths: 2
Stories: 1
Garages: 0

Dimension

Depth: 40' 2"
Height: 15' 10"
Width: 76'

Area

Total: 2133 sq/ft
Main Floor: 2133 sq/ft
Patios: 233 sq/ft
Porch: 108 sq/ft
* Total Square Footage typically only includes conditioned space and does not include garages, porches, bonus rooms, or decks.

Ceiling

Ceiling Details: Vaulted ceilings throughout
Main Ceiling: 9'

Roof

Roof Framing: I-Joist

Exterior Wall Framing

Framing: 2x6

Bedroom Features

Main Floor Master Bedroom
Split Bedrooms
Walk In Closet

Kitchen Features

Eating Bar
Kitchen Island

Additional Room Features

Den Office Study Computer
Great Room Living Room

Entryway

Friend S Entry

Lot Characteristics

Suited For View Lot
Zero Lot Lines

Outdoor Spaces

Covered Front Porch
Covered Rear Porch
Outdoor Kitchen Grill

More

Economical To Build
Suited For Vacation Home

What's Included

All plans are drawn at ¼” scale or larger and include : • Cover Sheet showing a Rendering of the planned residence . • Foundation Plan: Drawn to 1/4" scale, this page shows all necessary notations and dimensions including support columns, walls and excavated and unexcavated areas. • Exterior Elevations: A blueprint picture of all four sides showing exterior materials and measurements. • Floor Plan(s): Detailed plans, drawn to 1/4" scale for each level showing room dimensions, wall partitions, windows, etc. • Floor Joist Layout: General flooring schematic showing direction and spacing of floor joists. • Cross Section: A vertical cutaway view of the house from roof to foundation showing details of framing, construction, flooring and roofing. • Roof Plan: Overhead Roof Diagram showing peaks, valleys and Roof Pitch. • Building Details and General Construction Notes: Specific details for this structure and general construction assemblies and elements. Note: This plan does not come with an Electrical layout.Plans are typically drawn to ¼” scale and include:
  • Cover Sheet: Drawing index, designer contact info, plan name/number, legal disclaimers. Cover Sheet showing a Rendering of the planned residence .
  • Foundation Plan(s): This page shows all necessary notations and dimensions including footings, support columns, walls, and excavated/unexcavated areas.
  • Floor Plan(s): Detailed plans for each level showing room dimensions, wall partitions, windows and doors, fixture locations, and ceiling treatments.
  • Exterior Elevations: Views of the home from all four sides showing exterior materials, roof slope, ridge heights, siding and trim notes.
  • Overhead Roof Plan(s): A view of the home from above showing roof pitch, peaks, valleys, and other details.
  • Cross Section(s): A vertical cutaway view of the house from roof to foundation showing details of framing, construction, flooring and roofing.
  • Construction Notes / Detail(s): Shows basic parts and assemblies recommended for the home so the builder can see how things come together.
  • Framing Detail(s): Floor Joist Layout: General flooring schematic showing direction and spacing of floor joists. If included, the framing layout is intended to be a suggested layout only. Design loads and weather conditions vary by region. As a result the size, spacing, and layout of all structural elements in this home design may need approval by a structural engineer or code official based on your specific site location.
  • Other Note(s): Building Details and General Construction Notes: Specific details for this structure and general construction assemblies and elements.
Note: This plan does not come with an Electrical layout.

FAQs

Are designs on Houseplans ready to submit to my building department for permitting?

It depends on where you're building. Our plans contain enough information for a professional builder to construct your home, but your local government may require additional information before permitting. We strongly advise that you talk with your builder before you get started. If you are building for yourself, we recommend visiting your local building department to start your diligence. Read more here.

Can I make changes to a plan?

Absolutely! Our modification service allows you to customize almost anything - whether it's adding an extra garage bay, adjusting square footage, changing the roof pitch, or more, the plan modification service is a great value and can be completed quickly. Additionally, if you purchase an electronic plan set (PDF or CAD), you may have the option to make changes locally. CAD files offer the most flexibility for custom edits. Just let us know what you're thinking, and we’ll provide an estimate and timeframe to get started. Learn more here.

How much does a house cost to build?

Find out! Build costs vary based on the size of the home, materials used, and local rates for goods and labor. Our Cost to Build report is a great way to get some basic costs dialed in before you order your plans. Just plug in your postal code, select your desired construction quality, and we'll calculate for you.

Learn more about Cost to Build reports here.

Can I trust Houseplans?

Founded in 2004, Houseplans works with hundreds of architects and designers to offer their plans at a fraction of the price of custom design. Houseplans has an "Excellent" rating on TrustPilot.

Read more about us here.

Does Houseplans offer live support?

Yes, Houseplans has a dedicated team of house plan advisors with decades of experience between them. You can reach them by calling, emailing, filling out a form on the page of a plan that you like, or going to the Contact Us page. We're available to talk every day, even on weekends.

Builder Advantage Home

Builder Advantage Program

Are you a Pro Builder? Join the club, save 5% on your first order, get exclusive discounts, and more.

Learn More

You may also like

Save Plan
Contemporary

Plan 938-119

$2195.00

beds3

bd

baths3.5

ba

stories1

story

square feet3083

sq ft

Save Plan
Cabin

Plan 1108-9

$1300.00

beds3

bd

baths2.5

ba

stories3

stories

square feet1815

sq ft

Save Plan
Ranch

Plan 44-274

$1120.00

beds3

bd

baths2

ba

stories1

story

square feet1500

sq ft

Recently viewed plans

Exterior - Front Elevation for Contemporary House Plan #1086-6 - 3 bed, 2 bath
Save Plan

Plan 1086-6

$1395.00

beds3

bd

baths2

ba

stories1

story

square feet2133

sq ft

Exterior - Front Elevation for Farmhouse House Plan #1088-16 - 3 bed, 2.5 bath
Save Plan

Plan 1088-16

$1865.00

beds3

bd

baths2.5

ba

stories1

story

square feet2412

sq ft

Exterior - Front Elevation for Traditional House Plan #895-115 - 1 bed, 2 bath
Save Plan

Plan 895-115

$1400.00

beds1

bd

baths2

ba

stories2

stories

square feet797

sq ft

Exterior - Front Elevation for European House Plan #1064-125 - 4 bed, 3.5 bath
Save Plan

Plan 1064-125

$1450.00

beds4

bd

baths3.5

ba

stories2

stories

square feet4754

sq ft

Exterior - Front Elevation for Farmhouse House Plan #901-146 - 3 bed, 2.5 bath
Save Plan

Plan 901-146

$2600.00

beds3

bd

baths2.5

ba

stories2

stories

square feet2369

sq ft

Exterior - Front Elevation for Craftsman House Plan #126-221 - 3 bed, 2 bath
Save Plan

Plan 126-221

$1395.00

beds3

bd

baths2

ba

stories1

story

square feet1597

sq ft

Exterior - Front Elevation for Craftsman House Plan #51-575 - 4 bed, 2.5 bath
Save Plan

Plan 51-575

$2050.00

beds4

bd

baths2.5

ba

stories1

story

square feet4289

sq ft

Exterior - Front Elevation for Modern House Plan #932-1293 - 1 bed, 1 bath
Save Plan

Plan 932-1293

$1188.00

beds1

bd

baths1

ba

stories2

stories

square feet847

sq ft

Exterior - Front Elevation for Traditional House Plan #932-356 - 1 bed, 1 bath
Save Plan

Plan 932-356

$1770.00

beds1

bd

baths1

ba

stories2

stories

square feet2193

sq ft

Signature
Exterior - Front Elevation for Farmhouse House Plan #928-369 - 5 bed, 3.5 bath
Save Plan

Plan 928-369

$1995.00

beds5

bd

baths3.5

ba

stories2

stories

square feet4745

sq ft

Exterior - Front Elevation for Traditional House Plan #927-1024 - 5 bed, 5.5 bath
Save Plan

Plan 927-1024

$3355.00

beds5

bd

baths5.5

ba

stories2

stories

square feet4639

sq ft