Country Style House Plan - 4 Beds 2.5 Baths 2192 Sq/Ft Plan #929-224 - Houseplans.com
Search
REGISTER LOGIN SAVED No Saved Plans CART  Cart Empty
Don't lose your saved plans! Create an account to access your saves whenever you want. See our Terms & Conditions and Privacy Policy.
OR
FINAL HOURS: 15% OFF ENDS TONIGHT
Plan 929-224
Photographs may show modified designs.
Home  >  Style  >  Country

Country House Plan 929-224

Key Specs


Plan Sq Ft

2192
sq ft

Plan Bedrooms

4
Beds

Plan Bathrooms

2.5
Baths

Plan Floors

1
Floors

Plan Garages

2
Garages

Questions? Get Personalized Help
Select Plan Set Options
What's included?
$225.25
$140.25
$33.15
$140.25
$289.00
Subtotal
NOW $1381.25
You save $243.75
(15% savings)
Sale ends soon!
Best Price Guaranteed

Or order by phone: 1-800-913-2350
Questions? Get Personalized Help
 

 
Hours:
Ready for Your Call 7 Days a Week
Every Day 7 am - 8:30 pm Eastern

See Terms & Conditions and Privacy Policy.

Thanks for your question.

We will be in touch shortly.

Wow!
Cost to Build Reports
$1.99 with Code
CTBFALL (Limit 1)
Our Cost to Build Report gives you a personalized estimate for building your home, based on your location, plan, and materials.

Residential Construction Guide

Learn Building Basics

This downloadable, 26-page guide is full of diagrams and details about plumbing, electrical, and more.

Key Specs


Plan Sq Ft

2192
sq ft

Plan Bedrooms

4
Beds

Plan Bathrooms

2.5
Baths

Plan Floors

1
Floors

Plan Garages

2
Garages

Plan Description


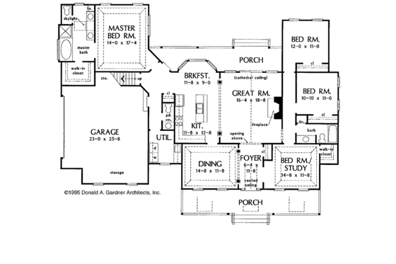
Exciting volumes and nine-foot ceilings add elegance to this comfortable, open plan. Hosts whose guests always end up in the kitchen will enjoy entertaining here, with only columns separating it from the great room. Children's bedrooms share a full bath that's complete with a linen closet. The master suite, located in a quiet wing, is highlighted by a tray ceiling and includes a skylit bath with a garden tub, private toilet, double-bowl vanity, and spacious walk-in closet.

This plan can be customized!

Tell us about your desired changes so we can prepare an estimate for the design service. Click the button to submit your request for pricing, or call 1-800-913-2350.

Floor Plans


Floor Plan - Main Floor

Reverse
houseplans LOGO

BUILDER Advantage Program

PRO BUILDERS

Join the club and save 5% on your first order.
PLUS download exclusive discounts and more.

LEARN MORE

Floor Plan - Other Floor

Reverse

Full Specs & Features


Basic Features

Bedrooms : 4
Baths : 2.5
Stories: 1
Garages: 2

Dimension

Depth : 55' 8"
Height : 26'
Width : 74' 10"

Area

Total : 2192 sq/ft
Bonus: 390 sq/ft
First Floor: 2192 sq/ft height 9'
Garage: 582 sq/ft
Porch: 439 sq/ft
* Total Square Footage typically only includes conditioned space and does not include garages, porches, bonus rooms, or decks.

Roof

Primary Pitch : 12:12
Roof Framing : Conventional

Exterior Wall Framing

Exterior Wall Finish : Siding
Framing : 2 x 4

Bedroom Features

Fireplace
Formal Dining Room

Additional Room Features

Great Room Living Room

Outdoor Spaces

Covered Front Porch
Covered Rear Porch

Rooms

3rd BR Closet:

16 sq/ft width 8' 4" x depth 2'

Bathroom 2:

54 sq/ft width 10' 10" x depth 5'

Bedroom 2:

119 sq/ft width 10' 10" x depth 11'

Bedroom 2 Closet:

15 sq/ft width 7' 10" x depth 2'

Bedroom 3:

132 sq/ft width 12' x depth 11'

Bedroom 3 Closet:

15 sq/ft width 7' 10" x depth 2'

Bonus Room - Finished:

310 sq/ft width 14' 4" x depth 21' 8"

Breakfast Room:

105 sq/ft width 11' 8" x depth 9'

Dining Room:

171 sq/ft width 14' 8" x depth 11' 8"

Foyer:

73 sq/ft width 6' 4" x depth 11' 8"

Garage:

590 sq/ft width 23' x depth 25' 8"

Gathering Room:

304 sq/ft width 16' 4" x depth 18' 8"

Hall Closet:

6 sq/ft width 3' x depth 2'

Kitchen:

147 sq/ft width 11' 8" x depth 12' 8"

Master Bathroom:

127 sq/ft width 8' 8" x depth 14' 8"

Master Bedroom:

242 sq/ft width 14' x depth 17' 4"

Master Closet:

52 sq/ft width 8' 8" x depth 6'

Porch - Front:

246 sq/ft width 37' x depth 6' 8"

Porch - Rear:

235 sq/ft width 35' 4" x depth 6' 8"

Powder Room:

21 sq/ft width 3' x depth 7'

Storage:

23 sq/ft width 7' 2" x depth 3' 4"

Study:

171 sq/ft width 14' 8" x depth 11' 8"

Utility Room:

43 sq/ft width 8' 8" x depth 5'

Walk-In Closet:

22 sq/ft width 4' 6" x depth 5'

What's included in this plan set


See a sample plan set
Purchasing a CAD set gives you an unlimited build license. All other plan sets, excluding the Single Set for bidding purposes, allow you to build the home one time.
  • Cover Sheet: A rendering of the front exterior of the house.
  • Foundation Plan(s): This plan gives the foundation layout, including support walls, excavated and unexcavated areas, if any, foundation notes and details, and floor framing.
  • Floor Plan(s): These plans show the layout of each floor of the house. Rooms and interior spaces are carefully dimensioned and keys are given for cross-section details provided later in the plans, as well as window and door schedules. These plans may also show the location of kitchen appliances and plumbing fixtures, and may suggest locations for electrical fixtures, switches and outlets.
  • Exterior Elevations: Included are front, rear, left and right sides of the house. Exterior materials, details and measurements are also given.
  • Interior Elevations: The interior elevation drawings show a suggested layout design of cabinets, utility rooms, fireplaces, bookcases, built-in units and other special interior features depending on the nature and complexity of the item.
  • Overhead Roof Plan(s): The roof plan shows a bird's eye view of the overall layout of the roof, ridges, valleys, and slopes.
  • Cross Section(s): Important changes in floor, ceiling and roof heights or the relationship of one level to another are called out. Also shown, when applicable, are exterior details such as railing and banding.
  • Construction Notes / Detail(s): Shows basic parts and assemblies recommended for the home so the builder can see how things come together.
  • Door / Window Schedule(s): Sizes, quantities and descriptions of all doors and windows shown on the plan.
  • Structural Information: Overall layout and necessary details for the ceiling, second-floor framing (if applicable) and roof construction. If trusses are used, it's suggested that you use a local truss manufacturer to design your trusses to comply with your local codes and regulations. Important: design loads and weather conditions vary by region. As a result the size, spacing, and layout of all structural elements in this home design may need approval by a structural engineer or code official based on your specific site location.
  • Code Drawn To: Each plan is designed to be consistent with CABO One and Two Family Dwelling Code or the International Residential Code in effect at the time the plan was created. Modifications may be necessary to meet applicable building codes, ordinances, local climatic, and geographical design criteria. Consult a builder, architect or other construction professional as necessary. Manufacturer instructions should be followed for all materials, appliances, and systems. Heating/air conditioning layouts, plumbing pipe layouts, and electrical wiring layouts are not included. Consult a local mechanical contractor for systems suitable for local climate conditions.
* See important information before purchasing

Pricing


Plan Options

PDF Set

Best Value!
$1381.25
PDF plan sets are best for fast electronic delivery and inexpensive local printing.

CAD Unlimited Build

$2401.25
For use by design professionals to make substantial changes to your house plan and inexpensive local printing.

Study Set

$1211.25
One electronic set for bidding purposes only. Not a legal building set for construction.

Foundation Options

Crawlspace

$0.00
Ideal for semi-sloped or level lot, home can be built off of grade, typically 18” - 48”.

Basement

$365.50
Ideal for level lot, lower level of home partially or fully underground.

Slab

$365.50
Ideal for level lot, single layer concrete poured directly on grade.

*Options with a fee may take time to prepare. Please call to confirm.

Framing Options

Wood 2x4

$0.00
Wood 2x4 Exterior Walls

Wood 2x6

$365.50
Wood 2x6 Exterior Walls

*Options with a fee may take time to prepare. Please call to confirm.

Additional Options

Right-Reading Reverse

$225.25
Choose this option to reverse your plans and to have the text and dimensions readable.

Audio Video Design

$140.25
Receive an overlay sheet with suggested placement of audio and video components.

Construction Guide

$33.15
Educate yourself about basic building ideas with these four detailed diagrams that discuss electrical, plumbing, mechanical, and structural topics.

Lighting Design

$140.25
Receive an overlay sheet with suggested placement of lighting fixtures.

Material List

$289.00
A spreadsheet of building supplies needed to construct the infrastructure of your new house. Please note materials lists will not reflect add-ons such as alternate foundation and framing options.

*Options with a fee may take time to prepare. Please call to confirm.

Unless you buy an “unlimited” plan set or a multi-use license you may only build one home from a set of plans. Please call to verify if you intend to build more than once. Plan licenses are non-transferable and cannot be resold.

We offer a 90% credit when you upgrade from a set, that is not for construction, to a 5-Copy set (or greater).

Other Plans By This Designer

See all plans by
this designer

Need help? Let our friendly experts help you find the perfect plan!

Contact us now for a free consultation.