Country Style House Plan - 6 Beds 4 Baths 2321 Sq/Ft Plan #5-181 - Houseplans.com
Search
REGISTER LOGIN SAVED No Saved Plans CART  Cart Empty
Don't lose your saved plans! Create an account to access your saves whenever you want. See our Terms & Conditions and Privacy Policy.
OR
Plan 5-181
Photographs may show modified designs.
Home  >  Style  >  Country

Country House Plan 5-181

Key Specs


Plan Sq Ft

2321
sq ft

Plan Bedrooms

6
Beds

Plan Bathrooms

4
Baths

Plan Floors

2
Floors

Plan Garages

3
Garages

Questions? Get Personalized Help
Select Plan Set Options
What's included?
$500.00
$100.00
$39.00
$100.00
Subtotal
$2500.00
Best Price Guaranteed

Or order by phone: 1-800-913-2350
Questions? Get Personalized Help
 

 
Hours:
Ready for Your Call 7 Days a Week
Every Day 7 am - 8:30 pm Eastern

See Terms & Conditions and Privacy Policy.

Thanks for your question.

We will be in touch shortly.

Wow!
Cost to Build Reports
$1.99 with Code
CTBFALL (Limit 1)
Our Cost to Build Report gives you a personalized estimate for building your home, based on your location, plan, and materials.

Residential Construction Guide

Learn Building Basics

This downloadable, 26-page guide is full of diagrams and details about plumbing, electrical, and more.

Key Specs


Plan Sq Ft

2321
sq ft

Plan Bedrooms

6
Beds

Plan Bathrooms

4
Baths

Plan Floors

2
Floors

Plan Garages

3
Garages

Plan Description


This country design floor plan is 2321 sq ft and has 6 bedrooms and 4 bathrooms.

This plan can be customized!

Tell us about your desired changes so we can prepare an estimate for the design service. Click the button to submit your request for pricing, or call 1-800-913-2350.

Floor Plans


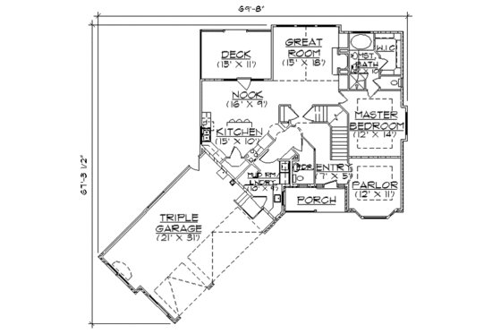
Floor Plan - Main Floor

Reverse
houseplans LOGO

BUILDER Advantage Program

PRO BUILDERS

Join the club and save 5% on your first order.
PLUS download exclusive discounts and more.

LEARN MORE

Floor Plan - Upper Floor

Reverse

Full Specs & Features


Basic Features

Bedrooms : 6
Baths : 4
Stories: 2
Garages: 3

Dimension

Depth : 68'
Height : 31'
Width : 69'

Area

Total : 2321 sq/ft
Basement : 1539 sq/ft
Main Floor : 1539 sq/ft
Upper Floor : 782 sq/ft
* Total Square Footage typically only includes conditioned space and does not include garages, porches, bonus rooms, or decks.

Ceiling

Main Ceiling : 9'
Upper Ceiling Ft : 9'

Roof

Primary Pitch : 10:12

Exterior Wall Framing

Framing : 2"x6"

Bedroom Features

Main Floor Master Bedroom
Walk In Closet

Kitchen Features

Breakfast Nook
Kitchen Island
Walk In Pantry Cabinet Pantry

Additional Room Features

Great Room Living Room
Loft
Play Flex Room

Garage Features

Oversized Garage
Side Entry Garage

Lot Characteristics

Suited For Corner Lot

Outdoor Spaces

Balcony
Covered Front Porch

What's included in this plan set


See a sample plan set
All plans are drawn at ¼" scale or larger and include the below. IMPORTANT NOTE: Study Set Includes: floor plans (main / upper / basement (if available) ) - exterior elevations.
  • Foundation Plan(s): This page shows all necessary notations and dimensions including footings, support columns, walls, and excavated/unexcavated areas.
  • Floor Plan(s): Detailed plans, drawn to 1/4" scale for each level showing room dimensions, wall partitions, windows, etc. as well as the location of electrical outlets and switches.
  • Exterior Elevations: A blueprint picture of all four sides showing exterior materials and measurements.
  • Overhead Roof Plan(s): A view of the home from above showing roof pitch, peaks, valleys, and other details.
  • Cross Section(s): A slice of the home from roof to foundation, showing relationships between floors, roof, and foundation.
  • Construction Notes / Detail(s): Shows basic parts and assemblies recommended for the home so the builder can see how things come together.
* See important information before purchasing

Pricing


Plan Options

PDF Set

Best Value!
$2500.00
PDF plan sets are best for fast electronic delivery and inexpensive local printing.

Reproducible Set

$2500.00
For inexpensive local printing / making minor adjustments by hand. 1 printed set, typically on Bond paper.

Study Set

$400.00
One electronic set for bidding purposes only. Not a legal building set for construction.

Foundation Options

Basement

$0.00
Ideal for level lot, lower level of home partially or fully underground.

*Options with a fee may take time to prepare. Please call to confirm.

Additional Options

Right-Reading Reverse

$500.00
Choose this option to reverse your plans and to have the text and dimensions readable.

Audio Video Design

$100.00
Receive an overlay sheet with suggested placement of audio and video components.

Construction Guide

$39.00
Educate yourself about basic building ideas with these four detailed diagrams that discuss electrical, plumbing, mechanical, and structural topics.

Lighting Design

$100.00
Receive an overlay sheet with suggested placement of lighting fixtures.

*Options with a fee may take time to prepare. Please call to confirm.

Unless you buy an “unlimited” plan set or a multi-use license you may only build one home from a set of plans. Please call to verify if you intend to build more than once. Plan licenses are non-transferable and cannot be resold.

We offer a 90% credit when you upgrade from a set, that is not for construction, to a 5-Copy set (or greater).

Need help? Let our friendly experts help you find the perfect plan!

Contact us now for a free consultation.

Coupon Codes