Mediterranean Style House Plan - 3 Beds 3.5 Baths 2375 Sq/Ft Plan #449-19 - Houseplans.com
Search
REGISTER LOGIN SAVED No Saved Plans CART  Cart Empty
Don't lose your saved plans! Create an account to access your saves whenever you want. See our Terms & Conditions and Privacy Policy.
OR
15% OFF FOR THE FIRST 25 CUSTOMERS
Photographs may show modified designs.
Home  >  Style  >  Mediterranean

Mediterranean House Plan 449-19

Key Specs


Plan Sq Ft

2375
sq ft

Plan Bedrooms

3
Beds

Plan Bathrooms

3.5
Baths

Plan Floors

3
Floors

Plan Garages

2
Garages

Questions? Get Personalized Help
Select Plan Set Options
What's included?
$212.50
$85.00
$33.15
$85.00
Subtotal
NOW $765.00
You save $135.00
(15% savings)
Sale ends soon!
Best Price Guaranteed

Or order by phone: 1-800-913-2350
Questions? Get Personalized Help
 

 
Hours:
Ready for Your Call 7 Days a Week
Every Day 7 am - 8:30 pm Eastern

See Terms & Conditions and Privacy Policy.

Thanks for your question.

We will be in touch shortly.

Wow!
Cost to Build Reports
$1.99 with Code
CTB2026 (Limit 1)
Our Cost to Build Report gives you a personalized estimate for building your home, based on your location, plan, and materials.

Residential Construction Guide

Learn Building Basics

This downloadable, 26-page guide is full of diagrams and details about plumbing, electrical, and more.

Key Specs


Plan Sq Ft

2375
sq ft

Plan Bedrooms

3
Beds

Plan Bathrooms

3.5
Baths

Plan Floors

3
Floors

Plan Garages

2
Garages

Plan Description


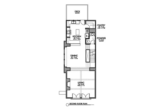
This 2375 square foot, 3-story patio home (freestanding townhome) is designed with a clean line, Spanish inspired exterior. The first floor bedroom can also serve as a great home office. The second floor contains the living spaces and is open from end to end for casual living and entertaining.

This plan can be customized!

Tell us about your desired changes so we can prepare an estimate for the design service. Click the button to submit your request for pricing, or call 1-800-913-2350.

Floor Plans


Floor Plan - Lower Floor

Reverse
houseplans LOGO

BUILDER Advantage Program

PRO BUILDERS

Join the club and save 5% on your first order.
PLUS download exclusive discounts and more.

LEARN MORE

Floor Plan - Main Floor

Reverse

Floor Plan - Upper Floor

Reverse

Full Specs & Features


Basic Features

Bedrooms : 3
Baths : 3.5
Stories: 3
Garages: 2

Dimension

Depth : 60'
Height : 40'
Width : 24'

Area

Total : 2375 sq/ft
Lower Floor : 491 sq/ft
Main Floor : 977 sq/ft
Upper Floor : 907 sq/ft
* Total Square Footage typically only includes conditioned space and does not include garages, porches, bonus rooms, or decks.

Ceiling

Ceiling Details : Living room ceiling is 11'-6". Master Bedroom ceiling is sloped to 10'-0". Master bath ceiling is vaulted in tub area.
Lower Ceiling : 9'
Main Ceiling : 10'
Upper Ceiling Ft : 9'

Roof

Primary Pitch : 8:12
Roof Framing : Conventional
Roof Type : Composition (tile over second floor Juliet balcony)

Exterior Wall Framing

Exterior Wall Finish : Stucco / Siding
Framing : 2X4
Insulation : R-13

Bedroom Features

Main Floor Bedrooms
Split Bedrooms
Upstairs Bedrooms
Upstairs Master Bedrooms
Walk In Closet

Kitchen Features

Eating Bar
Kitchen Island
Walk In Pantry Cabinet Pantry

Additional Room Features

Master Sitting Area
Upstairs Laundry

Garage Features

Front Entry Garage
Garage Under

Lot Characteristics

Suited For Narrow Lot
Zero Lot Lines

Outdoor Spaces

Grill Deck Sundeck

More

Suited For Vacation Home

What's included in this plan set


See a sample plan set

All plans are drawn at ¼” scale or larger and include :

  • Foundation Plan: This page shows all necessary notations and dimensions including support columns, walls, and excavated/unexcavated areas.
  • Exterior Elevations: Views of the home from all four sides showing exterior materials and measurements.
  • Floor Plan(s): Detailed plans for each level showing room dimensions, wall partitions, windows and doors, etc.
  • Cross Section: A slice of the home from roof to foundation, showing important details like stairs and wall construction.
  • Overhead Roof Plan(s): A view of the home from above showing roof pitch, peaks, valleys, and other details.
  • Construction Notes and Details: Shows the builder how things come together, like walls, the chimney, insulation, and more.
* See important information before purchasing

Pricing


Plan Options

PDF Set

Best Value!
$765.00
PDF plan sets are best for fast electronic delivery and inexpensive local printing.

5 Copy Set

$1020.00
5 printed plan sets mailed to you.

CAD Set

$1700.00
For use by design professionals to make substantial changes to your house plan and inexpensive local printing.

Foundation Options

Slab

$0.00
Ideal for level lot, single layer concrete poured directly on grade.

*Options with a fee may take time to prepare. Please call to confirm.

Additional Options

Right-Reading Reverse

$212.50
Choose this option to reverse your plans and to have the text and dimensions readable.

Audio Video Design

$85.00
Receive an overlay sheet with suggested placement of audio and video components.

Construction Guide

$33.15
Educate yourself about basic building ideas with these four detailed diagrams that discuss electrical, plumbing, mechanical, and structural topics.

Lighting Design

$85.00
Receive an overlay sheet with suggested placement of lighting fixtures.

*Options with a fee may take time to prepare. Please call to confirm.

Unless you buy an “unlimited” plan set or a multi-use license you may only build one home from a set of plans. Please call to verify if you intend to build more than once. Plan licenses are non-transferable and cannot be resold.

Meet the Designer

David Cox

David Cox - Houseplans.com
“A home is a major investment, and hopefully, a place that will be yours for years to come. It should not only suit your needs, but also fit your personal style and give you joy and pride every time you walk through the door.” David Cox founded Design DCA in 2006 after several years of leading the design department of a single-family builder and working for designers in Florida and Texas. David works in all styles, but modern design holds a special appeal for him. He is a fan of mid-century modern architecture and furniture and is heavily influenced by these wonderful designs. Having also spent some time in his career as a project manager for a large regional builder, David has a great deal of first-hand experience in common construction practices and techniques. He incorporates this knowledge into his modern designs, creating homes that are unique, but use common practices and materials to ensure ease of construction and reasonable cost. David has nearly 20 years of experience and is certified by the National Council of Building Designer Certification.

Other Plans By This Designer

See all plans by
David Cox

Need help? Let our friendly experts help you find the perfect plan!

Contact us now for a free consultation.