Colonial Style House Plan - 4 Beds 2.5 Baths 2481 Sq/Ft Plan #47-891 - Houseplans.com
Search
REGISTER LOGIN SAVED No Saved Plans CART  Cart Empty
Don't lose your saved plans! Create an account to access your saves whenever you want. See our Terms & Conditions and Privacy Policy.
OR
15% OFF THIS PLAN TODAY
Photographs may show modified designs.
Home  >  Style  >  Colonial

Colonial House Plan 47-891

Key Specs


Plan Sq Ft

2481
sq ft

Plan Bedrooms

4
Beds

Plan Bathrooms

2.5
Baths

Plan Floors

2
Floors

Plan Garages

2
Garages

Questions? Get Personalized Help
Select Plan Set Options
What's included?
$175.50
Additional Construction Sets$54.00/each

Additional hard copies of the plan (can be ordered at the time of purchase and within 90 days of the purchase date).

$445.50
$135.00
$265.50
$35.10
$135.00
$76.50
Mirror Reversed Sets$0.00

Printed sets showing plan in reverse, text and dimensions will be backwards.

$895.50
Subtotal
NOW $1072.76
You save $119.20
(10% savings)
Sale ends soon!
Best Price Guaranteed

Or order by phone: 1-800-913-2350
Questions? Get Personalized Help
 

 
Hours:
Ready for Your Call 7 Days a Week
Every Day 7 am - 8:30 pm Eastern

See Terms & Conditions and Privacy Policy.

Thanks for your question.

We will be in touch shortly.

Wow!
Cost to Build Reports
$1.99 with Code
CTB2026 (Limit 1)
Our Cost to Build Report gives you a personalized estimate for building your home, based on your location, plan, and materials.

Residential Construction Guide

Learn Building Basics

This downloadable, 26-page guide is full of diagrams and details about plumbing, electrical, and more.

Key Specs


Plan Sq Ft

2481
sq ft

Plan Bedrooms

4
Beds

Plan Bathrooms

2.5
Baths

Plan Floors

2
Floors

Plan Garages

2
Garages

Plan Description


This country home retains just enough classic details to make it traditional, yet still a country-style design. The covered front porch, with round columns, and the five dormer windows add touches of grace. The entry foyer is lit by a second-story dormer and leads to a living room with a fireplace on the left and a study on the right. If you choose, the study can become a formal dining room. The family room at the back is graced by a decorative beam ceiling and shares a fireplace with the hearth room, where a French door leads out to the deck. The kitchen features a center island. All four bedrooms are on the second floor, along with a bonus room. The master suite has a private bath, and family bedrooms share a full bath.

This plan can be customized!

Tell us about your desired changes so we can prepare an estimate for the design service. Click the button to submit your request for pricing, or call 1-800-913-2350.

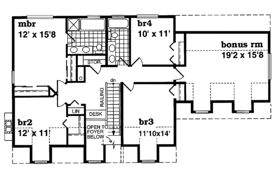
Floor Plans


Floor Plan - Main Floor

Reverse
houseplans LOGO

BUILDER Advantage Program

PRO BUILDERS

Join the club and save 5% on your first order.
PLUS download exclusive discounts and more.

LEARN MORE

Floor Plan - Upper Floor

Reverse

Floor Plan - Other Floor

Reverse

Full Specs & Features


Basic Features

Bedrooms : 4
Baths : 2.5
Stories: 2
Garages: 2

Dimension

Depth : 41' 6"
Height : 29'
Width : 60'

Area

Total : 2481 sq/ft
Bonus: 343 sq/ft
First Floor: 1292 sq/ft height 9'
Second Floor: 1189 sq/ft
* Total Square Footage typically only includes conditioned space and does not include garages, porches, bonus rooms, or decks.

Ceiling

Main Ceiling : 9'
Upper Ceiling Ft : 8'

Roof

Primary Pitch : 12:12
Roof Framing : Combination Truss/Conventional

Exterior Wall Framing

Exterior Wall Finish : Siding
Framing : Wood - 2x6

Bedroom Features

Fireplace
Formal Dining Room
Formal Living Room / Parlor

Additional Room Features

Den Office Study Computer
Family Room Keeping Room

Garage Features

Side Entry Garage

Outdoor Spaces

Covered Front Porch

Rooms

3rd BR Closet:

8 sq/ft width 2' x depth 4'

Basement Foundation:

1292 sq/ft width 38' x depth 34'

Bedroom 2:

132 sq/ft width 12' x depth 11'

Bedroom 2 Closet:

24 sq/ft width 3' 8" x depth 6' 8"

Bedroom 3:

165 sq/ft width 11' 10" x depth 14'

Bedroom 3 Closet:

24 sq/ft width 3' 8" x depth 6' 8"

Bedroom 4:

110 sq/ft width 10' x depth 11'

Bedroom 4 Closet:

14 sq/ft width 2' x depth 7' 4"

Bonus Room - Finished:

300 sq/ft width 19' 2" x depth 15' 8"

Crawlspace Foundation:

1292 sq/ft width 38' x depth 34'

Deck:

288 sq/ft width 24' x depth 12'

Dining Room:

190 sq/ft width 12' 8" x depth 15'

Foyer:

113 sq/ft width 12' 2" x depth 9' 4"

Game Room:

141 sq/ft width 11' 10" x depth 12'

Garage:

494 sq/ft width 21' 6" x depth 23'

Gathering Room:

200 sq/ft width 12' x depth 16' 8"

Hall Bathroom:

55 sq/ft width 5' x depth 11'

Hall Closet:

9 sq/ft width 4' 10" x depth 2'

Kitchen:

152 sq/ft width 12' 4" x depth 12' 4"

Living Room:

192 sq/ft width 12' x depth 16'

Master Bathroom:

75 sq/ft width 8' 10" x depth 8' 6"

Master Bedroom:

188 sq/ft width 12' x depth 15' 8"

Master Closet:

16 sq/ft width 8' x depth 2'

Porch - Front:

213 sq/ft width 35' 6" x depth 6'

Powder Room:

27 sq/ft width 4' 10" x depth 5' 8"

Utility Room:

96 sq/ft width 12' x depth 8'

What's included in this plan set


See a sample plan set
  • Foundation Plan(s): This page shows all necessary notations and dimensions including footings, support columns, walls, and excavated/unexcavated areas.
  • Floor Plan(s): Detailed plans for each level showing room dimensions, wall partitions, windows and doors, fixture locations, and ceiling treatments.
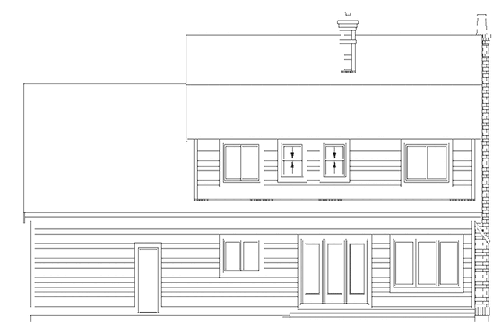
  • Exterior Elevations: Views of the home from all four sides showing exterior materials, roof slope, ridge heights, siding and trim notes.
  • Overhead Roof Plan(s): A view of the home from above showing roof pitch, peaks, valleys, and other details.
  • Cross Section(s): A slice of the home from roof to foundation, showing relationships between floors, roof, and foundation.
  • Construction Notes and Detail(s): Shows basic parts and assemblies recommended for the home so the builder can see how things come together.
* See important information before purchasing

Pricing


Plan Options

PDF Set

Best Value!
$1072.76
PDF plan sets are best for fast electronic delivery and inexpensive local printing.

5 Copy Set

$1197.50
5 printed plan sets mailed to you.

8 Copy Set

$1322.24
8 printed plan sets mailed to you.

Reproducible Set

$1322.24
For inexpensive local printing / making minor adjustments by hand. 1 printed set, typically on Bond paper.

CAD Set

$2145.53
For use by design professionals to make substantial changes to your house plan and inexpensive local printing.

Foundation Options

Basement

$0.00
Ideal for level lot, lower level of home partially or fully underground.

Crawlspace

$0.00
Ideal for semi-sloped or level lot, home can be built off of grade, typically 18” - 48”.

Daylight Basement

$247.50
Ideal for sloping lot, lower level of home partially underground.

Slab

$247.50
Ideal for level lot, single layer concrete poured directly on grade.

*Options with a fee may take time to prepare. Please call to confirm.

Framing Options

Wood 2x6

$0.00
Wood 2x6 Exterior Walls

*Options with a fee may take time to prepare. Please call to confirm.

Additional Options

Right-Reading Reverse

$175.50
Choose this option to reverse your plans and to have the text and dimensions readable.

Additional Construction Sets

$54.00
Additional hard copies of the plan (can be ordered at the time of purchase and within 90 days of the purchase date).

Additional Use License

$445.50
Allows you to build one more home for each additional license purchased.

Audio Video Design

$135.00
Receive an overlay sheet with suggested placement of audio and video components.

Comprehensive Material List

$265.50
A complete list of building supplies needed to construct the infrastructure of your new house, plus an overlay of materials shown directly on your PDF (foundation to rooftop with interior and exterior materials), and a detailed, itemized door and window schedule showing all sizes and types. Please allow 5-7 Business Days for completion. Note, the Comprehensive list is only available with a PDF purchase. The Comprehensive list can be ordered no matter what additional plan options you have selected.

Construction Guide

$35.10
Educate yourself about basic building ideas with these four detailed diagrams that discuss electrical, plumbing, mechanical, and structural topics.

Lighting Design

$135.00
Receive an overlay sheet with suggested placement of lighting fixtures.

Material List

$76.50
A spreadsheet of building supplies needed to construct the infrastructure of your new house. Please note materials lists will not reflect add-ons such as alternate foundation and framing options.

Mirror Reversed Sets

$0.00
A mirror-reversed set is a printed copy of your house, resulting in the same image you would see if you held the drawing up to a mirror. Everything, including the text, is backward in relation to the original design. These kinds of drawing are typically used to reorient an original plan more advantageously on a site, either because the homeowner prefers it that way or because of limitations of the site itself. Note: Mirror reverse sets are only available with a 5 copy or 8 copy set. With a Reproducible, PDF, or CAD set, you can print mirrored copies locally. In addition: 5 Copy set selected, should only allow 4 mirrored sets to be selected. 8 Copy set selected, should only allow 7 mirrored sets to be selected.

Unlimited Use License

$895.50
Allows you to build this home as many times as you want.

*Options with a fee may take time to prepare. Please call to confirm.

Unless you buy an “unlimited” plan set or a multi-use license you may only build one home from a set of plans. Please call to verify if you intend to build more than once. Plan licenses are non-transferable and cannot be resold.

Meet the Designer

Select Home Designs

Select Home Designs - Houseplans.com

Other Plans By This Designer

See all plans by
Select Home Designs

Need help? Let our friendly experts help you find the perfect plan!

Contact us now for a free consultation.

Coupon Codes