Craftsman Style House Plan - 3 Beds 3.5 Baths 2499 Sq/Ft Plan #119-367 - Houseplans.com
Search
REGISTER LOGIN SAVED No Saved Plans CART  Cart Empty
Don't lose your saved plans! Create an account to access your saves whenever you want. See our Terms & Conditions and Privacy Policy.
OR
15% OFF FOR THE FIRST 25 CUSTOMERS
Home  >  Style  >  Craftsman

Craftsman House Plan 119-367

Key Specs


Plan Sq Ft

2499
sq ft

Plan Bedrooms

3
Beds

Plan Bathrooms

3.5
Baths

Plan Floors

1
Floors

Plan Garages

3
Garages

Questions? Get Personalized Help
Select Plan Set Options
What's included?
$170.00
$140.25
$250.75
$33.15
$140.25
Subtotal
NOW $1440.75
You save $254.25
(15% savings)
Sale ends soon!
Best Price Guaranteed

Or order by phone: 1-800-913-2350
Questions? Get Personalized Help
 

 
Hours:
Ready for Your Call 7 Days a Week
Every Day 7 am - 8:30 pm Eastern

See Terms & Conditions and Privacy Policy.

Thanks for your question.

We will be in touch shortly.

Wow!
Cost to Build Reports
$1.99 with Code
CTB2026 (Limit 1)
Our Cost to Build Report gives you a personalized estimate for building your home, based on your location, plan, and materials.

Residential Construction Guide

Learn Building Basics

This downloadable, 26-page guide is full of diagrams and details about plumbing, electrical, and more.

Key Specs


Plan Sq Ft

2499
sq ft

Plan Bedrooms

3
Beds

Plan Bathrooms

3.5
Baths

Plan Floors

1
Floors

Plan Garages

3
Garages

Plan Description


This craftsman ranch house plan is intertwined with the softness of a country home. Upon arrival you are struck by its amazing curb appeal. There are large and swooping roofs, adorned with elegant gables & shutters. Stone, siding and cedar shakes blend beautifully together to create a unique look for this rustic Home plan. The wide open floor plan of this house is a homebuyer's answer when looking for an affordable home with plenty of room.

This plan can be customized!

Tell us about your desired changes so we can prepare an estimate for the design service. Click the button to submit your request for pricing, or call 1-800-913-2350.

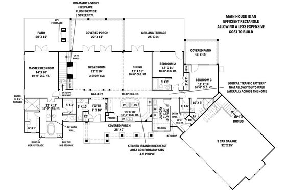
Floor Plans


Floor Plan - Main Floor

Reverse
houseplans LOGO

BUILDER Advantage Program

PRO BUILDERS

Join the club and save 5% on your first order.
PLUS download exclusive discounts and more.

LEARN MORE

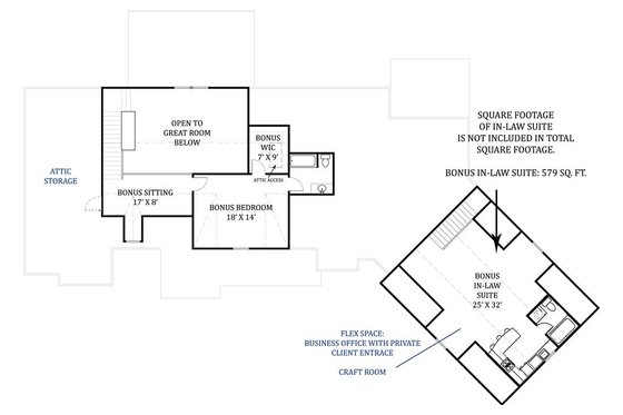
Floor Plan - Upper Floor

Reverse

Floor Plan - Lower Floor

Reverse

Full Specs & Features


Basic Features

Bedrooms : 3
Baths : 3.5
Stories: 1
Garages: 3

Dimension

Depth : 72'
Height : 29'
Width : 106'

Area

Total : 2499 sq/ft
Bonus: 1076 sq/ft
First Floor: 2498 sq/ft height 10'
Garage: 829 sq/ft height 10'
* Total Square Footage typically only includes conditioned space and does not include garages, porches, bonus rooms, or decks.

Ceiling

Bonus Ceiling : 9'
Lower Ceiling : 9'
Main Ceiling : 10'

Roof

Primary Pitch : 12:12
Roof Framing : Stick
Roof Type : Gable
Secondary Pitch : 14:12

Exterior Wall Framing

Exterior Wall Finish : Stone / siding
Framing : Wood - 2x4

Bedroom Features

Guest Suite
Split Bedrooms
Walk In Closet

Kitchen Features

Eating Bar
Kitchen Island
Walk In Pantry Cabinet Pantry

Additional Room Features

Great Room Living Room
Main Floor Laundry
Play Flex Room

Garage Features

Side Entry Garage

Lot Characteristics

Suited For Sloping Lot
Suited For View Lot

Outdoor Spaces

Covered Front Porch
Covered Rear Porch
Grill Deck Sundeck

Rooms

Bathroom 2:

width 8' x depth 5'

Bathroom 3:

width 10' x depth 9'

Bedroom 2:

width 13' x depth 11'

Bedroom 2 Closet:

width 2' x depth 7'

Bedroom 3:

width 12' x depth 14'

Bedroom 3 Closet:

width 4' x depth 6'

Bonus:

579 sq/ft width 25' x depth 32'

Bonus:

497 sq/ft

Dining:

width 12' x depth 16'

Foyer:

width 7' x depth 10'

Garage:

829 sq/ft width 32' x depth 25'

Great Room:

width 21' x depth 16'

Grilling Porch:

width 25' x depth 14'

Half Bath:

width 5' x depth 10'

Kitchen:

width 19' x depth 10'

Laundry:

width 7' x depth 14'

Master Bath:

width 22' x depth 17'

Master Bedroom:

width 14' x depth 20'

Master Walk In Closet:

width 6' x depth 9'

Master Walk In Closet:

width 5' x depth 7'

Patio:

width 20' x depth 14'

Patio:

width 14' x depth 10'

Porch Rear:

width 22' x depth 14'

What's included in this plan set


See a sample plan set
  • Cover Sheet: The cover sheet features an elevation of the home, sheet number index for the plan, and contact information.
  • Foundation: These drawings will detail and illustrate the foundation of the home, exterior and interior footings to support the floors and structure above. If a basement is purchased, it will show the stairs, bearing walls, and basement windows and doors.
  • First Floor Plan: This page is drawn to ¼”=1’-0” scale and includes exterior dimensions to build the home. The notes are precise directions for your builder. Important features such as built-ins, niches, and appliances are noted. Doors and windows are identified and specific sizing can be found on window and door schedules. *Framing is not included.
  • Second Floor Plan: The second floor includes stair details. Often the reflective roof detail is shown legibly over the second floor plan. This is helpful for the framing contractor. *Framing is not included.
  • Lighting and Electrical: On this sheet you have a schematic of the lights, electrical plugs, phone location, and code items such as smoke detectors. It is common place to build with your builder and/or electrician before the work starts to review this plan. Careful planning can make your home special and convenient for your family.
  • Second Floor Lighting: The same details as provided for the first floor.
  • Front and Rear Elevations: The front and rear elevations may be on separate pages depending on the size of the house. This page comes with exterior dimensions and notes required to complete construction. This is where the windows, doors, and interior trim details are illustrated, as well as wall heights, roof pitches and ridge heights.
  • Right and Left Elevations: The right and left elevations provide the same details as the front and rear elevations.
  • Roof Plan: This drawing, usually at ¼”=1’-0” scale, will be a bird’s eye view of the home. It will show the ridges, hips, and valleys. This page will show a beautifully designed roof.*Framing is not included.
  • Cross-Sections: Sections are used to further describe any architectural intent necessary for the builder or framer. This drawing will illustrate important changes in the floor, ceiling, and roof heights.
  • Cabinet Elevations*: Cabinet elevations are provided with your plans, and like the electrical plan, they are mainly a guide for estimating purposes. Cabinets are an area that is easy to customize and your builder or cabinet maker will work with you early on in the process to ensure that the correct cabinets are specified. Archival Designs believes cabinets should reflect your taste and budget. After framing and sheet rock installation sizes of walls may change slightly. The cabinet maker must take as built measurements to properly size your cabinets. **NOTE: The majority of house plans will include cabinet elevations in construction set; however, not all will include.
  • General Notes: Separate sheets that provide standard construction notes, in addition included are the details required to comply with International Residential Code (IRC) & Southern Building Code (SBC).
* See important information before purchasing

Pricing


Plan Options

PDF Set

Best Value!
$1440.75
PDF plan sets are best for fast electronic delivery and inexpensive local printing.

5 Copy Set

$1806.25
5 printed plan sets mailed to you.

5 Copy and PDF Set

$1891.25
5 printed plan sets mailed to you plus PDF plan sets are best for fast electronic delivery and inexpensive local printing.

CAD and PDF Set

$2120.75
For use by design professionals to make substantial changes to your house plan and inexpensive local printing plus PDF plan sets are best for fast electronic delivery and inexpensive local printing.

Foundation Options

Slab

$0.00
Ideal for level lot, single layer concrete poured directly on grade.

Basement

$255.00
Ideal for level lot, lower level of home partially or fully underground.

Crawlspace

$255.00
Ideal for semi-sloped or level lot, home can be built off of grade, typically 18” - 48”.

Daylight Basement

$255.00
Ideal for sloping lot, lower level of home partially underground.

Walk Out Basement

$255.00
Ideal for a sloping lot, lower level with outdoor access.

*Options with a fee may take time to prepare. Please call to confirm.

Additional Options

Right-Reading Reverse

$170.00
Choose this option to reverse your plans and to have the text and dimensions readable.

Audio Video Design

$140.25
Receive an overlay sheet with suggested placement of audio and video components.

Comprehensive Material List

$250.75
A complete list of building supplies needed to construct the infrastructure of your new house, plus an overlay of materials shown directly on your PDF (foundation to rooftop with interior and exterior materials), and a detailed, itemized door and window schedule showing all sizes and types. Please allow 5-7 Business Days for completion. Note, the Comprehensive list is only available with a PDF purchase. The Comprehensive list can be ordered no matter what additional plan options you have selected.

Construction Guide

$33.15
Educate yourself about basic building ideas with these four detailed diagrams that discuss electrical, plumbing, mechanical, and structural topics.

Lighting Design

$140.25
Receive an overlay sheet with suggested placement of lighting fixtures.

*Options with a fee may take time to prepare. Please call to confirm.

Unless you buy an “unlimited” plan set or a multi-use license you may only build one home from a set of plans. Please call to verify if you intend to build more than once. Plan licenses are non-transferable and cannot be resold.

Other Plans By This Designer

See all plans by
this designer

Browse Similar Plans

Need help? Let our friendly experts help you find the perfect plan!

Contact us now for a free consultation.