Don't lose your saved plans! 
Create an account to access your saves whenever you want. See our Terms & Conditions and Privacy Policy.
OR

Craftsman House Plan 119-426 2531 Sq Ft, 3 Bed, 3.5 Bath, 1 Floor, 3 Garage

Key Specs
  • 3
    Beds
  • 3.5
    Baths
  • 1
    Floors
  • 3
    Garages
  • 2531
    Square Feet
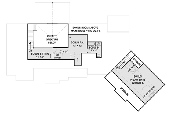
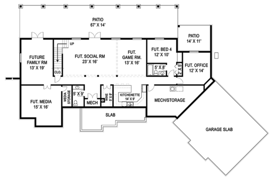
Here's a remarkably flexible floor plan, with room to expand both into the finished basement and upstairs (including an optional in-law apartment). For day-to-day living, the main floor offers a very open layout. Hang out at the kitchen's cooktop island, enjoy the ambiance by the fireplace in the nearby great room, or step out to one of the many porches. The master suite invites you to kick back in its ultra-luxurious bathroom.

Questions on this plan?

New to the process and looking for some help to kick things off? Let us know a bit about your plans and we’ll be happy to help.

Budget & Customization Tools

Modify icon
Customize this Plan
Tell us about your desired changes and we can prepare an estimate.
Cost to Build icon
Cost to Build Report
A personalized estimate based on your location, plan, & materials.
Cost to Build icon
Residential Construction Guide
This downloadable, 26-page guide is full of diagrams and details about plumbing, electrical, and more.

Full specs & Features

Basic Features

Bedrooms: 3
Baths: 3.5
Stories: 1
Garages: 3

Dimension

Depth: 73'
Height: 25'
Width: 107'

Area

Total: 2531 sq/ft
Basement Unfinished: 2332 sq/ft height 8'
Bonus: 1064 sq/ft
First Floor: 2531 sq/ft height 10'
Garage: 826 sq/ft
* Total Square Footage typically only includes conditioned space and does not include garages, porches, bonus rooms, or decks.

Ceiling

Lower Ceiling: 9'
Main Ceiling: 9'

Roof

Primary Pitch: 9:12
Roof Framing: Conventional
Roof Type: Shingle
Secondary Pitch: 14:12

Exterior Wall Framing

Exterior Wall Finish: Siding/Stone
Framing: Wood - 2x4

Bedroom Features

Fireplace
Formal Dining Room
Main Floor Master Bedroom
Split Bedrooms
Walk In Closet

Kitchen Features

Kitchen Island
Kitchenette Wet Bar
Walk In Pantry Cabinet Pantry

Additional Room Features

Great Room Living Room
Main Floor Laundry
Open Floor Plan
Unfinished Future Space

Outdoor Spaces

Courtyard
Covered Front Porch
Covered Rear Porch
Deck
Outdoor Fireplace

Rooms

Covered Front Porch:

243 sq/ft

Covered Rear Porches:

325 sq/ft

What's Included

  • Cover Sheet: The cover sheet features an elevation of the home, sheet number index for the plan, and contact information.
  • Foundation: These drawings will detail and illustrate the foundation of the home, exterior and interior footings to support the floors and structure above. If a basement is purchased, it will show the stairs, bearing walls, and basement windows and doors.
  • First Floor Plan: This page is drawn to ¼”=1’-0” scale and includes exterior dimensions to build the home. The notes are precise directions for your builder. Important features such as built-ins, niches, and appliances are noted. Doors and windows are identified and specific sizing can be found on window and door schedules. *Framing is not included.
  • Second Floor Plan: The second floor includes stair details. Often the reflective roof detail is shown legibly over the second floor plan. This is helpful for the framing contractor. *Framing is not included.
  • Lighting and Electrical: On this sheet you have a schematic of the lights, electrical plugs, phone location, and code items such as smoke detectors. It is common place to build with your builder and/or electrician before the work starts to review this plan. Careful planning can make your home special and convenient for your family.
  • Second Floor Lighting: The same details as provided for the first floor.
  • Front and Rear Elevations: The front and rear elevations may be on separate pages depending on the size of the house. This page comes with exterior dimensions and notes required to complete construction. This is where the windows, doors, and interior trim details are illustrated, as well as wall heights, roof pitches and ridge heights.
  • Right and Left Elevations: The right and left elevations provide the same details as the front and rear elevations.
  • Roof Plan: This drawing, usually at ¼”=1’-0” scale, will be a bird’s eye view of the home. It will show the ridges, hips, and valleys. This page will show a beautifully designed roof.*Framing is not included.
  • Cross-Sections: Sections are used to further describe any architectural intent necessary for the builder or framer. This drawing will illustrate important changes in the floor, ceiling, and roof heights.
  • Cabinet Elevations*: Cabinet elevations are provided with your plans, and like the electrical plan, they are mainly a guide for estimating purposes. Cabinets are an area that is easy to customize and your builder or cabinet maker will work with you early on in the process to ensure that the correct cabinets are specified. Archival Designs believes cabinets should reflect your taste and budget. After framing and sheet rock installation sizes of walls may change slightly. The cabinet maker must take as built measurements to properly size your cabinets. **NOTE: The majority of house plans will include cabinet elevations in construction set; however, not all will include.
  • General Notes: Separate sheets that provide standard construction notes, in addition included are the details required to comply with International Residential Code (IRC) & Southern Building Code (SBC).

FAQs

Are designs on Houseplans ready to submit to my building department for permitting?

It depends on where you're building. Our plans contain enough information for a professional builder to construct your home, but your local government may require additional information before permitting. We strongly advise that you talk with your builder before you get started. If you are building for yourself, we recommend visiting your local building department to start your diligence. Read more here.

Can I make changes to a plan?

Absolutely! Our modification service allows you to customize almost anything - whether it's adding an extra garage bay, adjusting square footage, changing the roof pitch, or more, the plan modification service is a great value and can be completed quickly. Additionally, if you purchase an electronic plan set (PDF or CAD), you may have the option to make changes locally. CAD files offer the most flexibility for custom edits. Just let us know what you're thinking, and we’ll provide an estimate and timeframe to get started. Learn more here.

How much does a house cost to build?

Find out! Build costs vary based on the size of the home, materials used, and local rates for goods and labor. Our Cost to Build report is a great way to get some basic costs dialed in before you order your plans. Just plug in your postal code, select your desired construction quality, and we'll calculate for you.

Learn more about Cost to Build reports here.

Can I trust Houseplans?

Founded in 2004, Houseplans works with hundreds of architects and designers to offer their plans at a fraction of the price of custom design. Houseplans has an "Excellent" rating on TrustPilot.

Read more about us here.

Does Houseplans offer live support?

Yes, Houseplans has a dedicated team of house plan advisors with decades of experience between them. You can reach them by calling, emailing, filling out a form on the page of a plan that you like, or going to the Contact Us page. We're available to talk every day, even on weekends.

Builder Advantage Home

Builder Advantage Program

Are you a Pro Builder? Join the club, save 5% on your first order, get exclusive discounts, and more.

Learn More

You may also like

Save Plan
Craftsman

Plan 1064-302

$1250.00

beds3

bd

baths2.5

ba

stories1

story

square feet2489

sq ft

Save Plan
Ranch

Plan 44-274

$1120.00

beds3

bd

baths2

ba

stories1

story

square feet1500

sq ft

Save Plan
Country

Plan 427-1

$897.60

beds3

bd

baths2.5

ba

stories2

stories

square feet1908

sq ft

Recently viewed plans

Exterior - Front Elevation for Country House Plan #430-135 - 4 bed, 3.5 bath
Save Plan

Plan 430-135

$1645.00

beds4

bd

baths3.5

ba

stories1

story

square feet3194

sq ft

Exterior - Front Elevation for Craftsman House Plan #119-426 - 3 bed, 3.5 bath
Save Plan

Plan 119-426

$1695.00

beds3

bd

baths3.5

ba

stories1

story

square feet2531

sq ft

Signature
Exterior - Front Elevation for Country House Plan #929-522 - 3 bed, 2.5 bath
Save Plan

Plan 929-522

$1625.00

beds3

bd

baths2.5

ba

stories2

stories

square feet2037

sq ft

Exterior - Front Elevation for Craftsman House Plan #23-2667 - 3 bed, 2 bath
Save Plan

Plan 23-2667

$1680.00

beds3

bd

baths2

ba

stories1

story

square feet1631

sq ft

Exterior - Front Elevation for Colonial House Plan #124-1230 - 5 bed, 5.5 bath
Save Plan

Plan 124-1230

$2435.00

beds5

bd

baths5.5

ba

stories2

stories

square feet4448

sq ft

Signature
Exterior - Front Elevation for Traditional House Plan #928-300 - 3 bed, 2.5 bath
Save Plan

Plan 928-300

$1495.00

beds3

bd

baths2.5

ba

stories2

stories

square feet3761

sq ft

Exterior - Rear Elevation for Beach House Plan #1064-26 - 1 bed, 1.5 bath
Save Plan

Plan 1064-26

$1050.00

beds1

bd

baths1.5

ba

stories2

stories

square feet1343

sq ft

Signature
Exterior - Front Elevation for Southern House Plan #928-316 - 3 bed, 4 bath
Save Plan

Plan 928-316

$1495.00

beds3

bd

baths4

ba

stories2

stories

square feet3360

sq ft

Exterior - Front Elevation for European House Plan #923-293 - 5 bed, 4 bath
Save Plan

Plan 923-293

$1850.00

beds5

bd

baths4

ba

stories2

stories

square feet4521

sq ft

Signature
Exterior - Front Elevation for Farmhouse House Plan #1067-3 - 3 bed, 2.5 bath
Save Plan

Plan 1067-3

$1445.00

beds3

bd

baths2.5

ba

stories1

story

square feet2468

sq ft

Signature
Exterior - Front Elevation for Craftsman House Plan #928-229 - 5 bed, 4.5 bath
Save Plan

Plan 928-229

$1995.00

beds5

bd

baths4.5

ba

stories2

stories

square feet5026

sq ft