Traditional Style House Plan - 3 Beds 3 Baths 2565 Sq/Ft Plan #75-132 - Houseplans.com
Search
REGISTER LOGIN SAVED No Saved Plans CART  Cart Empty
Don't lose your saved plans! Create an account to access your saves whenever you want. See our Terms & Conditions and Privacy Policy.
OR
15% OFF FOR THE FIRST 25 CUSTOMERS
Plan 75-132
Photographs may show modified designs.
Home  >  Style  >  Traditional

Traditional House Plan 75-132

Key Specs


Plan Sq Ft

2565
sq ft

Plan Bedrooms

3
Beds

Plan Bathrooms

3
Baths

Plan Floors

1
Floors

Plan Garages

2
Garages

Questions? Get Personalized Help
Select Plan Set Options
What's included?
$255.00
Additional Construction Sets$29.75/each

Additional hard copies of the plan (can be ordered at the time of purchase and within 90 days of the purchase date).

$140.25
$33.15
$140.25
Subtotal
NOW $1231.65
You save $217.35
(15% savings)
Sale ends soon!
Best Price Guaranteed

Or order by phone: 1-800-913-2350
Questions? Get Personalized Help
 

 
Hours:
Ready for Your Call 7 Days a Week
Every Day 7 am - 8:30 pm Eastern

See Terms & Conditions and Privacy Policy.

Thanks for your question.

We will be in touch shortly.

Wow!
Cost to Build Reports
$1.99 with Code
CTB2026 (Limit 1)
Our Cost to Build Report gives you a personalized estimate for building your home, based on your location, plan, and materials.

Residential Construction Guide

Learn Building Basics

This downloadable, 26-page guide is full of diagrams and details about plumbing, electrical, and more.

Key Specs


Plan Sq Ft

2565
sq ft

Plan Bedrooms

3
Beds

Plan Bathrooms

3
Baths

Plan Floors

1
Floors

Plan Garages

2
Garages

Plan Description


This traditional design floor plan is 2565 sq ft and has 3 bedrooms and 3 bathrooms.

This plan can be customized!

Tell us about your desired changes so we can prepare an estimate for the design service. Click the button to submit your request for pricing, or call 1-800-913-2350.

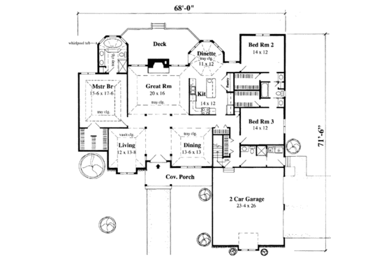
Floor Plans


Floor Plan - Main Floor

Reverse
houseplans LOGO

BUILDER Advantage Program

PRO BUILDERS

Join the club and save 5% on your first order.
PLUS download exclusive discounts and more.

LEARN MORE

Full Specs & Features


Basic Features

Bedrooms : 3
Baths : 3
Stories: 1
Garages: 2

Dimension

Depth : 72'
Height : 28'
Width : 68'

Area

Total : 2565 sq/ft
Basement : 2565 sq/ft
Main Floor : 2565 sq/ft
* Total Square Footage typically only includes conditioned space and does not include garages, porches, bonus rooms, or decks.

Ceiling

Main Ceiling : 8'

Roof

Primary Pitch : 8:12

Exterior Wall Framing

Framing : 2"x6"

Bedroom Features

Split Bedrooms
Walk In Closet

Kitchen Features

Breakfast Nook
Kitchen Island

Additional Room Features

Great Room Living Room

Garage Features

Side Entry Garage

Lot Characteristics

Suited For Corner Lot
Suited For View Lot

More

Jack & Jill Bath

What's included in this plan set


See a sample plan set
  • Foundation Plan: A full basement, walk-out, crawl-space, or a slab foundation. This varies depending upon the design.
  • Floor Plan(s): Each level of the design in detail. Dimensions for rooms, doors, windows, stairways and structural info are some of the details shown.
  • Cross Section and Details: Elements of the actual construction.
  • Electrical Floor Plan: A standard layout for outlets and lighting fixtures.
  • Exterior Elevation(s): The way each side of the house will look like when it is built.
* See important information before purchasing

Pricing


Plan Options

PDF Set

Best Value!
$1231.65
PDF plan sets are best for fast electronic delivery and inexpensive local printing.

5 Copy Set

$1359.15
5 printed plan sets mailed to you.

5 Copy and PDF Set

$1529.15
5 printed plan sets mailed to you plus PDF plan sets are best for fast electronic delivery and inexpensive local printing.

CAD and PDF Set

$1784.15
For use by design professionals to make substantial changes to your house plan and inexpensive local printing plus PDF plan sets are best for fast electronic delivery and inexpensive local printing.

Foundation Options

Basement

$0.00
Ideal for level lot, lower level of home partially or fully underground.

*Options with a fee may take time to prepare. Please call to confirm.

Additional Options

Right-Reading Reverse

$255.00
Choose this option to reverse your plans and to have the text and dimensions readable.

Additional Construction Sets

$29.75
Additional hard copies of the plan (can be ordered at the time of purchase and within 90 days of the purchase date).

Audio Video Design

$140.25
Receive an overlay sheet with suggested placement of audio and video components.

Construction Guide

$33.15
Educate yourself about basic building ideas with these four detailed diagrams that discuss electrical, plumbing, mechanical, and structural topics.

Lighting Design

$140.25
Receive an overlay sheet with suggested placement of lighting fixtures.

*Options with a fee may take time to prepare. Please call to confirm.

Unless you buy an “unlimited” plan set or a multi-use license you may only build one home from a set of plans. Please call to verify if you intend to build more than once. Plan licenses are non-transferable and cannot be resold.

Other Plans By This Designer

See all plans by
this designer

Browse Similar Plans

Need help? Let our friendly experts help you find the perfect plan!

Contact us now for a free consultation.