Farmhouse Style House Plan - 4 Beds 3.5 Baths 2626 Sq/Ft Plan #430-265 - Houseplans.com
Search
REGISTER LOGIN SAVED No Saved Plans CART  Cart Empty
Don't lose your saved plans! Create an account to access your saves whenever you want. See our Terms & Conditions and Privacy Policy.
OR
Plan 430-265
Photographs may show modified designs.
Home  >  Style  >  Farmhouse

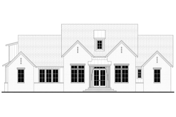
Farmhouse House Plan 430-265

Key Specs


Plan Sq Ft

2626
sq ft

Plan Bedrooms

4
Beds

Plan Bathrooms

3.5
Baths

Plan Floors

1
Floors

Plan Garages

2
Garages

Questions? Get Personalized Help
Select Plan Set Options
What's included?
$225.00
Additional Construction Sets$100.00/each

Additional hard copies of the plan (can be ordered at the time of purchase and within 90 days of the purchase date).

$495.00
$165.00
$39.00
$250.00
Subtotal
$1445.00
Best Price Guaranteed

Or order by phone: 1-800-913-2350
Questions? Get Personalized Help
 

 
Hours:
Ready for Your Call 7 Days a Week
Every Day 7 am - 8:30 pm Eastern

See Terms & Conditions and Privacy Policy.

Thanks for your question.

We will be in touch shortly.

Wow!
Cost to Build Reports
$1.99 with Code
CTBFALL (Limit 1)
Our Cost to Build Report gives you a personalized estimate for building your home, based on your location, plan, and materials.

Residential Construction Guide

Learn Building Basics

This downloadable, 26-page guide is full of diagrams and details about plumbing, electrical, and more.

Key Specs


Plan Sq Ft

2626
sq ft

Plan Bedrooms

4
Beds

Plan Bathrooms

3.5
Baths

Plan Floors

1
Floors

Plan Garages

2
Garages

Plan Description


This beautiful contemporary farmhouse prioritizes simplicity and function. With 4 bedrooms and 3.5 baths (including a home office and secure delivery room) it offers everything for which a modern family could ask. An inviting foyer leads you into a great room with 12' ceilings and is open to the kitchen. The kitchen has an eat at bar and spacious walk-in pantry with additional counter space and storage. In the main suite you'll find a large bedroom with lots of natural light and a bathroom equipped with separate vanities, custom shower and soaking tub.

This plan can be customized!

Tell us about your desired changes so we can prepare an estimate for the design service. Click the button to submit your request for pricing, or call 1-800-913-2350.

Floor Plans


Floor Plan - Main Floor

Reverse
houseplans LOGO

BUILDER Advantage Program

PRO BUILDERS

Join the club and save 5% on your first order.
PLUS download exclusive discounts and more.

LEARN MORE

Floor Plan - Upper Floor

Reverse

Floor Plan - Other Floor

Reverse

Full Specs & Features


Basic Features

Bedrooms : 4
Baths : 3.5
Stories: 1
Garages: 2

Dimension

Depth : 73' 4"
Height : 29'
Width : 74'

Area

Total : 2626 sq/ft
Bonus : 438 sq/ft
Garage : 638 sq/ft
Main Floor : 2626 sq/ft
Porch : 251 sq/ft
Storage : 116 sq/ft
* Total Square Footage typically only includes conditioned space and does not include garages, porches, bonus rooms, or decks.

Ceiling

Bonus Ceiling : 9'
Garage Ceiling : 9' 6"
Main Ceiling : 10'

Roof

Primary Pitch : 9:12
Roof Type : stick
Secondary Pitch : 12:12, 3:12, 6:12

Exterior Wall Framing

Exterior Wall Finish : brick/board & batten
Framing : 2x4

Bedroom Features

Main Floor Bedrooms
Main Floor Master Bedroom
Split Bedrooms
Walk In Closet

Kitchen Features

Breakfast Nook
Eating Bar
Kitchen Island
Walk In Pantry Cabinet Pantry

Additional Room Features

Den Office Study Computer
Great Room Living Room
Hobby Rec Room Game Room
Main Floor Laundry
Play Flex Room
Storage Area
Unfinished Future Space

Garage Features

Rear Garage
Side Entry Garage

Lot Characteristics

Suited For Corner Lot

Outdoor Spaces

Covered Rear Porch

More

Unusual Shape
Wheelchair Adaptable

What's included in this plan set


See a sample plan set
Plans are typically drawn to ¼” scale and include:
  • Cover Sheet: Drawing index, designer contact info, plan name/number, legal disclaimers.
  • Foundation Plan(s): This page shows all necessary notations and dimensions including footings, support columns, walls, and excavated/unexcavated areas.
  • Floor Plan(s): Detailed plans for each level showing room dimensions, wall partitions, windows and doors, fixture locations, and ceiling treatments.
  • Exterior Elevations: Views of the home from all four sides showing exterior materials, roof slope, ridge heights, siding and trim notes.
  • Interior Elevations: Detailed drawings of kitchen cabinet elevations and other elements like built-ins.
  • Overhead Roof Plan(s): A view of the home from above showing roof pitch, peaks, valleys, and other details.
  • Cross Section(s): A slice of the home from roof to foundation, showing relationships between floors, roof, and foundation.
  • Electrical Plan(s): Shows the location of lights, receptacles, switches, etc. Some plans that do not include an electrical plan may have it available for an additional fee.
  • Construction Notes and Detail(s): Shows basic parts and assemblies recommended for the home so the builder can see how things come together.
  • Stair Detail(s): Drawings showing stair details.

*Material List Note: When a material list is ordered, a list of the materials needed to build this plan will be sent. Please note that the materials list will conform to the standard plan (slab or crawlspace only). Additional options such as a Basement or 2x6 Wall conversion will not be reflected in the material list. Please call for details.


Note about 2x6 Wall Option: If choosing the 2x6 wall option, the added stud depth will be applied towards the interior of the walls.

* See important information before purchasing

Pricing


Plan Options

PDF Set

Best Value!
$1445.00
PDF plan sets are best for fast electronic delivery and inexpensive local printing.

5 Copy and PDF Set

$1695.00
5 printed plan sets mailed to you plus PDF plan sets are best for fast electronic delivery and inexpensive local printing.

PDF Unlimited Build

$2145.00
PDF plan sets are best for fast electronic delivery and inexpensive local printing.

Five Copy and PDF Set Unlimited Build

$2395.00
5 printed plan sets mailed to you plus PDF plan sets are best for fast electronic delivery and inexpensive local printing.

CAD and PDF Set Unlimited Build

$2545.00
For use by design professionals to make substantial changes to your house plan and inexpensive local printing plus PDF plan sets are best for fast electronic delivery and inexpensive local printing.

Foundation Options

Slab

$0.00
Ideal for level lot, single layer concrete poured directly on grade.

Crawlspace

$100.00
Ideal for semi-sloped or level lot, home can be built off of grade, typically 18” - 48”.

Basement

$395.00
Ideal for level lot, lower level of home partially or fully underground.

Walk Out Basement

$395.00
Ideal for a sloping lot, lower level with outdoor access.

*Options with a fee may take time to prepare. Please call to confirm.

Framing Options

Wood 2x4

$0.00
Wood 2x4 Exterior Walls

Wood 2x6

$325.00
Wood 2x6 Exterior Walls

*Options with a fee may take time to prepare. Please call to confirm.

Additional Options

Right-Reading Reverse

$225.00
Choose this option to reverse your plans and to have the text and dimensions readable.

Additional Construction Sets

$100.00
Additional hard copies of the plan (can be ordered at the time of purchase and within 90 days of the purchase date).

Additional Use License

$495.00
Allows you to build one more home for each additional license purchased.

Audio Video Design

$165.00
Receive an overlay sheet with suggested placement of audio and video components.

Construction Guide

$39.00
Educate yourself about basic building ideas with these four detailed diagrams that discuss electrical, plumbing, mechanical, and structural topics.

Material List

$250.00
A spreadsheet of building supplies needed to construct the infrastructure of your new house. Please note materials lists will not reflect add-ons such as alternate foundation and framing options.

*Options with a fee may take time to prepare. Please call to confirm.

Unless you buy an “unlimited” plan set or a multi-use license you may only build one home from a set of plans. Please call to verify if you intend to build more than once. Plan licenses are non-transferable and cannot be resold.

Other Plans By This Designer

See all plans by
this designer

Need help? Let our friendly experts help you find the perfect plan!

Contact us now for a free consultation.