Don't lose your saved plans! 
Create an account to access your saves whenever you want. See our Terms & Conditions and Privacy Policy.
OR

Traditional House Plan 20-2232 2638 Sq Ft, 4 Bed, 2.5 Bath, 2 Floor, 2 Garage

Key Specs
  • 4
    Beds
  • 2.5
    Baths
  • 2
    Floors
  • 2
    Garages
  • 2638
    Square Feet
This traditional design floor plan is 2638 sq ft and has 4 bedrooms and 2.5 bathrooms.

Questions on this plan?

New to the process and looking for some help to kick things off? Let us know a bit about your plans and we’ll be happy to help.

Budget & Customization Tools

Modify icon
Customize this Plan
Tell us about your desired changes and we can prepare an estimate.
Cost to Build icon
Cost to Build Report
A personalized estimate based on your location, plan, & materials.
Cost to Build icon
Residential Construction Guide
This downloadable, 26-page guide is full of diagrams and details about plumbing, electrical, and more.

Full specs & Features

Basic Features

Bedrooms: 4
Baths: 2.5
Stories: 2
Garages: 2

Dimension

Depth: 46' 4"
Height: 30'
Width: 49'

Area

Total: 2638 sq/ft
First Floor: 1369 sq/ft
Garage: 474 sq/ft
Porch: 122 sq/ft
Second Floor: 1269 sq/ft
* Total Square Footage typically only includes conditioned space and does not include garages, porches, bonus rooms, or decks.

Roof

Primary Pitch: 6:12
Roof Framing: Truss
Roof Type: Asphalt

Exterior Wall Framing

Exterior Wall Finish: Siding/Stone
Framing: Wood - 2x4

Bedroom Features

Fireplace
Formal Dining Room
Formal Living Room / Parlor
Upstairs Master Bedrooms
Walk In Closet

Kitchen Features

Breakfast Nook
Kitchen Island
Walk In Pantry Cabinet Pantry

Additional Room Features

Family Room Keeping Room
Loft
Main Floor Laundry
Media Room
Open Floor Plan

Outdoor Spaces

Balcony
Covered Front Porch

Rooms

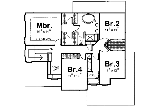
Bedroom 2:

127 sq/ft width 11' x depth 11' 7"

Bedroom 3:

134 sq/ft width 11' x depth 12' 3"

Bedroom 4:

149 sq/ft width 11' x depth 13' 7"

Breakfast:

108 sq/ft width 12' x depth 9'

Dining Room:

144 sq/ft width 12' x depth 12'

Entry:

73 sq/ft width 5' x depth 14' 8"

Family Room:

294 sq/ft width 21' x depth 14'

Garage:

468 sq/ft width 20' 8" x depth 22' 8"

Hearth Room:

96 sq/ft width 12' x depth 8'

Kitchen:

165 sq/ft width 11' x depth 15'

Kitchen Island:

14 sq/ft width 3' x depth 4' 8"

Laundry Room:

58 sq/ft width 7' 11" x depth 7' 4"

Living Room:

112 sq/ft width 10' 6" x depth 10' 8"

Master Bathroom:

73 sq/ft width 5' 4" x depth 13' 9"

Master Bedroom:

224 sq/ft width 16' x depth 14'

Master Closet:

30 sq/ft width 6' 7" x depth 4' 7"

What's Included

Plans are typically drawn to ¼” scale and include:
  • Cover Sheet: Front elevation and informative reference sections including: general notes and design criteria
  • Foundation Plan(s): Drafted at 1/4" scale. Poured or block basement or slab foundations are standard. Basement foundations show the HVAC equipment, structural information, steel beam and pole locations and the direction and spacing of the floor system above. Alternate foundations are available for a fee.
  • Floor Plan(s): 1/4" scale. Fully dimensioned from stud to stud for ease of framing. The detailed drawings include such things as structural header locations, framing layout and kitchen layout.
  • Exterior Elevations: Drafted at 1/4" scale for the front and 1/8" scale for the rear and sides. All elevations are noted and an aerial view of the roof is provided, showing all hips, valleys and ridges.
  • Overhead Roof Plan(s): A view of the home from above showing roof pitch, peaks, valleys, and other details.
  • Cross Section(s): A slice of the home from roof to foundation, showing relationships between floors, roof, and foundation.
  • Electrical Plan(s): Illustrated on a separate page for clarity, the electrical plan shows suggested electrical layout for the main and second level floor plans. Typical wall and stair sections are provided to further explain construction of these areas.
  • Kitchen Cabinet Elevation(s): Useful for the cabinet and bidding process, this page shows all kitchen and bathroom cabinets as well as any other cabinet elevations. Not included with all plans, please call for details.
  • Construction Notes / Detail(s): Shows basic parts and assemblies recommended for the home so the builder can see how things come together.
NOTE: This plan is not available to be built in the state of Nevada. Please call with questions.

FAQs

Are designs on Houseplans ready to submit to my building department for permitting?

It depends on where you're building. Our plans contain enough information for a professional builder to construct your home, but your local government may require additional information before permitting. We strongly advise that you talk with your builder before you get started. If you are building for yourself, we recommend visiting your local building department to start your diligence. Read more here.

Can I make changes to a plan?

Absolutely! Our modification service allows you to customize almost anything - whether it's adding an extra garage bay, adjusting square footage, changing the roof pitch, or more, the plan modification service is a great value and can be completed quickly. Additionally, if you purchase an electronic plan set (PDF or CAD), you may have the option to make changes locally. CAD files offer the most flexibility for custom edits. Just let us know what you're thinking, and we’ll provide an estimate and timeframe to get started. Learn more here.

How much does a house cost to build?

Find out! Build costs vary based on the size of the home, materials used, and local rates for goods and labor. Our Cost to Build report is a great way to get some basic costs dialed in before you order your plans. Just plug in your postal code, select your desired construction quality, and we'll calculate for you.

Learn more about Cost to Build reports here.

Can I trust Houseplans?

Founded in 2004, Houseplans works with hundreds of architects and designers to offer their plans at a fraction of the price of custom design. Houseplans has an "Excellent" rating on TrustPilot.

Read more about us here.

Does Houseplans offer live support?

Yes, Houseplans has a dedicated team of house plan advisors with decades of experience between them. You can reach them by calling, emailing, filling out a form on the page of a plan that you like, or going to the Contact Us page. We're available to talk every day, even on weekends.

Builder Advantage Home

Builder Advantage Program

Are you a Pro Builder? Join the club, save 5% on your first order, get exclusive discounts, and more.

Learn More

You may also like

Save Plan
Traditional

Plan 20-2346

$1305.00

beds4

bd

baths2.5

ba

stories2

stories

square feet2257

sq ft

Save Plan
Country

Plan 427-1

$897.60

beds3

bd

baths2.5

ba

stories2

stories

square feet1908

sq ft

Recently viewed plans

Exterior - Front Elevation for Traditional House Plan #20-2232 - 4 bed, 2.5 bath
Save Plan

Plan 20-2232

$1355.00

beds4

bd

baths2.5

ba

stories2

stories

square feet2638

sq ft