Traditional Style House Plan - 4 Beds 2.5 Baths 2665 Sq/Ft Plan #1010-158 - Houseplans.com
Search
REGISTER LOGIN SAVED No Saved Plans CART  Cart Empty
Don't lose your saved plans! Create an account to access your saves whenever you want. See our Terms & Conditions and Privacy Policy.
OR
15% OFF: SALE ENDS SOON!
Plan 1010-158
Photographs may show modified designs.
Home  >  Style  >  Traditional

Traditional House Plan 1010-158

Key Specs


Plan Sq Ft

2665
sq ft

Plan Bedrooms

4
Beds

Plan Bathrooms

2.5
Baths

Plan Floors

2
Floors

Plan Garages

3
Garages

Questions? Get Personalized Help
Select Plan Set Options
What's included?
Additional Construction Sets$63.75/each

Additional hard copies of the plan (can be ordered at the time of purchase and within 90 days of the purchase date).

$140.25
$250.75
$33.15
$140.25
Subtotal
NOW $1360.00
You save $240.00
(15% savings)
Sale ends soon!
Best Price Guaranteed

Or order by phone: 1-800-913-2350
Questions? Get Personalized Help
 

 
Hours:
Ready for Your Call 7 Days a Week
Every Day 7 am - 8:30 pm Eastern

See Terms & Conditions and Privacy Policy.

Thanks for your question.

We will be in touch shortly.

Wow!
Cost to Build Reports
$1.99 with Code
CTB2026 (Limit 1)
Our Cost to Build Report gives you a personalized estimate for building your home, based on your location, plan, and materials.

Residential Construction Guide

Learn Building Basics

This downloadable, 26-page guide is full of diagrams and details about plumbing, electrical, and more.

Key Specs


Plan Sq Ft

2665
sq ft

Plan Bedrooms

4
Beds

Plan Bathrooms

2.5
Baths

Plan Floors

2
Floors

Plan Garages

3
Garages

Plan Description


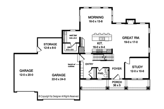
Filled with storage and practical amenities, this layout presents a hardworking home for a busy family. A bench with cubbies greets you at the entrance from the garage, making it easy to take off shoes and stash backpacks. The morning room combines a traditional breakfast nook with the larger dimensions of a dining room for an all-purpose eating area that doesn't feel stuffy. Next to the island kitchen, a wet bar lets you blend up a smoothie without getting in anyone's way. A study gives a space for homework. Upstairs, all four bedrooms enjoy easy access to the laundry room. Don't miss the master suite's large walk-in closet and spacious private bathroom.

This plan can be customized!

Tell us about your desired changes so we can prepare an estimate for the design service. Click the button to submit your request for pricing, or call 1-800-913-2350.

Floor Plans


Floor Plan - Main Floor

houseplans LOGO

BUILDER Advantage Program

PRO BUILDERS

Join the club and save 5% on your first order.
PLUS download exclusive discounts and more.

LEARN MORE

Floor Plan - Upper Floor

Full Specs & Features


Basic Features

Bedrooms : 4
Baths : 2.5
Stories: 2
Garages: 3

Dimension

Depth : 47' 8"
Height : 33'
Width : 69' 8"

Area

Total : 2665 sq/ft
Basement Unfinished: 1374 sq/ft
Bonus: 307 sq/ft
First Floor: 1291 sq/ft height 9'
Garage: 868 sq/ft
Second Floor: 1374 sq/ft height 8'
* Total Square Footage typically only includes conditioned space and does not include garages, porches, bonus rooms, or decks.

Roof

Primary Pitch : 9:12
Roof Framing : Combination Truss/Conventional
Roof Type : Asphalt
Secondary Pitch : 12:12

Exterior Wall Framing

Exterior Wall Finish : Shingle/Siding
Framing : Wood - 2x6

Bedroom Features

Fireplace
Upstairs Master Bedrooms
Walk In Closet

Kitchen Features

Kitchen Island
Kitchenette Wet Bar
Walk In Pantry Cabinet Pantry

Additional Room Features

Den Office Study Computer
Great Room Living Room
Mud Room
Open Floor Plan
Storage Area
Unfinished Future Space
Upstairs Laundry

Garage Features

Front Entry Garage

Outdoor Spaces

Covered Front Porch

Rooms

Bedroom 2:

146 sq/ft width 12' 2" x depth 12'

Bedroom 3:

125 sq/ft width 11' 4" x depth 11'

Bedroom 4:

113 sq/ft width 10' x depth 11' 4"

Covered Front Porch:

307 sq/ft width 36' x depth 5'

Garage I:

528 sq/ft width 22' x depth 24'

Garage II:

240 sq/ft width 12' x depth 20'

Garage Storage:

101 sq/ft width 12' 8" x depth 8'

Great Room:

323 sq/ft width 19' x depth 17'

Kitchen:

149 sq/ft width 16' x depth 9' 4"

Master Bedroom:

245 sq/ft width 16' x depth 15' 4"

Master Closet:

30 sq/ft width 6' x depth 5'

Morning Room:

219 sq/ft width 16' x depth 13' 8"

Optional Bonus:

307 sq/ft width 11' x depth 23' 2"

Pantry:

40 sq/ft width 8' x depth 5'

Study:

126 sq/ft width 12' x depth 10' 6"

Wet Bar:

51 sq/ft width 8' 6" x depth 6'

What's included in this plan set


See a sample plan set
All plans are drawn at ¼” scale or larger and include :Plans are typically drawn to ¼” scale and include:
  • Foundation Plan(s): Drawn to 1/4" scale, this page shows all necessary notations and dimensions including support columns, walls and excavated and unexcavated areas.
  • Floor Plan(s): Detailed plans, drawn to 1/4" scale for each level showing room dimensions, wall partitions, windows, etc.
  • Exterior Elevations: A blueprint picture of all four sides showing exterior materials and measurements.
  • Overhead Roof Plan(s): This shows roof rafter or trusses and how the roof is framed
  • Cross Section(s): A vertical cutaway view of the house from roof to foundation showing details of framing, construction, flooring and roofing.
  • Construction Notes / Detail(s): Shows basic parts and assemblies recommended for the home so the builder can see how things come together.
CAD Plans are in AutoDesk Architecture.
* See important information before purchasing

Pricing


Plan Options

PDF Set

Best Value!
$1360.00
PDF plan sets are best for fast electronic delivery and inexpensive local printing.

5 Copy Set

$1445.00
5 printed plan sets mailed to you.

CAD Set

$2380.00
For use by design professionals to make substantial changes to your house plan and inexpensive local printing.

Study Set

$425.00
One electronic set for bidding purposes only. Not a legal building set for construction.

Foundation Options

Basement

$0.00
Ideal for level lot, lower level of home partially or fully underground.

*Options with a fee may take time to prepare. Please call to confirm.

Framing Options

Wood 2x6

$0.00
Wood 2x6 Exterior Walls

*Options with a fee may take time to prepare. Please call to confirm.

Additional Options

Additional Construction Sets

$63.75
Additional hard copies of the plan (can be ordered at the time of purchase and within 90 days of the purchase date).

Audio Video Design

$140.25
Receive an overlay sheet with suggested placement of audio and video components.

Comprehensive Material List

$250.75
A complete list of building supplies needed to construct the infrastructure of your new house, plus an overlay of materials shown directly on your PDF (foundation to rooftop with interior and exterior materials), and a detailed, itemized door and window schedule showing all sizes and types. Please allow 5-7 Business Days for completion. Note, the Comprehensive list is only available with a PDF purchase. The Comprehensive list can be ordered no matter what additional plan options you have selected.

Construction Guide

$33.15
Educate yourself about basic building ideas with these four detailed diagrams that discuss electrical, plumbing, mechanical, and structural topics.

Lighting Design

$140.25
Receive an overlay sheet with suggested placement of lighting fixtures.

*Options with a fee may take time to prepare. Please call to confirm.

Unless you buy an “unlimited” plan set or a multi-use license you may only build one home from a set of plans. Please call to verify if you intend to build more than once. Plan licenses are non-transferable and cannot be resold.

We offer a 90% credit when you upgrade from a set, that is not for construction, to a 5-Copy set (or greater).

Other Plans By This Designer

See all plans by
this designer

Need help? Let our friendly experts help you find the perfect plan!

Contact us now for a free consultation.

$1.99 Build Cost Reports!