Farmhouse Style House Plan - 3 Beds 2.5 Baths 2736 Sq/Ft Plan #924-5 - Houseplans.com
Search
REGISTER LOGIN SAVED No Saved Plans CART  Cart Empty
Don't lose your saved plans! Create an account to access your saves whenever you want. See our Terms & Conditions and Privacy Policy.
OR
20% OFF TODAY FOR BLACK FRIDAY
Photographs may show modified designs.
Home  >  Style  >  Farmhouse

Farmhouse House Plan 924-5

Key Specs


Plan Sq Ft

2736
sq ft

Plan Bedrooms

3
Beds

Plan Bathrooms

2.5
Baths

Plan Floors

2
Floors

Plan Garages

1
Garages

Questions? Get Personalized Help
Select Plan Set Options
What's included?
$120.00
$132.00
$236.00
$31.20
$132.00
Subtotal
NOW $1760.00
You save $440.00
(20% savings)
Sale ends soon!
Best Price Guaranteed

Or order by phone: 1-800-913-2350
Questions? Get Personalized Help
 

 
Hours:
Ready for Your Call 7 Days a Week
Every Day 7 am - 8:30 pm Eastern

See Terms & Conditions and Privacy Policy.

Thanks for your question.

We will be in touch shortly.

Wow!
Cost to Build Reports
$1.99 with Code
CTBFALL (Limit 1)
Our Cost to Build Report gives you a personalized estimate for building your home, based on your location, plan, and materials.

Residential Construction Guide

Learn Building Basics

This downloadable, 26-page guide is full of diagrams and details about plumbing, electrical, and more.

Key Specs


Plan Sq Ft

2736
sq ft

Plan Bedrooms

3
Beds

Plan Bathrooms

2.5
Baths

Plan Floors

2
Floors

Plan Garages

1
Garages

Plan Description


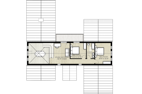
Modern farmhouse design is a combination of traditional American farmhouse design and minimalistic contemporary style architecture. This house design reflects the needs of contemporary living by giving diverse inside spaces. Ground floor plan is divided in few different zones. Left wing accommodates main living area of open plan kitchen, living room and double story dining area. On the right wing, in the private zone there is master bedroom with large bathroom and open closet. It is situated parallel to the living room to catch the best views of open lot. Between two house wings on the ground floor there is a room suitable for home office or den. All main ground floor spaces are connected to the open outside porch to influence broader outside activities. On the second floor there are two large bedrooms and a bathroom. Open studio space could be used as a home library/hobby room or by adding partition walls there could be fourth bedroom of the house. Second floor also has a balcony which allows to enjoy open lot views from above.

This plan can be customized!

Tell us about your desired changes so we can prepare an estimate for the design service. Click the button to submit your request for pricing, or call 1-800-913-2350.

Floor Plans


Floor Plan - Main Floor

Reverse
houseplans LOGO

BUILDER Advantage Program

PRO BUILDERS

Join the club and save 5% on your first order.
PLUS download exclusive discounts and more.

LEARN MORE

Floor Plan - Upper Floor

Reverse

Full Specs & Features


Basic Features

Bedrooms : 3
Baths : 2.5
Stories: 2
Garages: 1

Dimension

Depth : 67'
Height : 30'
Width : 73'

Area

Total : 2736 sq/ft
Garage : 448 sq/ft
Main Floor : 1976 sq/ft
Upper Floor : 760 sq/ft
* Total Square Footage typically only includes conditioned space and does not include garages, porches, bonus rooms, or decks.

Ceiling

Lower Ceiling : 9'
Upper Ceiling Ft : 17'

Roof

Primary Pitch : 9/12

Exterior Wall Framing

Framing : 2"x6"

Bedroom Features

Main Floor Master Bedroom
Split Bedrooms
Upstairs Bedrooms
Walk In Closet

Kitchen Features

Kitchen Island

Additional Room Features

Den Office Study Computer
Great Room Living Room
Hobby Rec Room Game Room
Loft
Main Floor Laundry
Mud Room
Storage Area

Outdoor Spaces

Balcony
Covered Front Porch
Covered Rear Porch
Grill Deck Sundeck

More

Empty Nester
Wheelchair Adaptable

What's included in this plan set


See a sample plan set
Plans are typically drawn to ¼” scale and include:
  • Cover Sheet: Drawing index, designer contact info, plan name/number, legal disclaimers.
  • Foundation Plan(s): This page shows all necessary notations and dimensions including footings, support columns, walls, and excavated/unexcavated areas.
  • Floor Plan(s): Detailed plans for each level showing room dimensions, wall partitions, windows and doors, fixture locations, and ceiling treatments.
  • Exterior Elevations: Views of the home from all four sides showing exterior materials, roof slope, ridge heights, siding and trim notes.
  • Overhead Roof Plan(s): A view of the home from above showing roof pitch, peaks, valleys, and other details.
  • Cross Section(s): A slice of the home from roof to foundation, showing relationships between floors, roof, and foundation.
  • Electrical Plan(s): Shows the location of lights, receptacles, switches, etc. Some plans that do not include an electrical plan may have it available for an additional fee.
  • Mechanical Plan(s): Shows the suggested location of mechanical items like a water heater and furnace. Typically will not show duct work or actual HVAC system.
  • Plumbing Plan(s): Shows the suggested location of plumbing lines for sinks, toilets, and showers. Plans do not typically show piping through the walls or foundation.
  • Construction Notes / Detail(s): Shows basic parts and assemblies recommended for the home so the builder can see how things come together.
  • Door / Window Schedule(s): A list of all the doors and windows needed to construct the house. This can help with estimating materials costs.
* See important information before purchasing

Pricing


Plan Options

PDF Set

Best Value!
$1760.00
PDF plan sets are best for fast electronic delivery and inexpensive local printing.

5 Copy Set

$1840.00
5 printed plan sets mailed to you.

8 Copy Set

$1920.00
8 printed plan sets mailed to you.

CAD Set

$2160.00
For use by design professionals to make substantial changes to your house plan and inexpensive local printing.

Foundation Options

Crawlspace

$0.00
Ideal for semi-sloped or level lot, home can be built off of grade, typically 18” - 48”.

Slab

$0.00
Ideal for level lot, single layer concrete poured directly on grade.

*Options with a fee may take time to prepare. Please call to confirm.

Additional Options

Right-Reading Reverse

$120.00
Choose this option to reverse your plans and to have the text and dimensions readable.

Audio Video Design

$132.00
Receive an overlay sheet with suggested placement of audio and video components.

Comprehensive Material List

$236.00
A complete list of building supplies needed to construct the infrastructure of your new house, plus an overlay of materials shown directly on your PDF (foundation to rooftop with interior and exterior materials), and a detailed, itemized door and window schedule showing all sizes and types. Please allow 5-7 Business Days for completion. Note, the Comprehensive list is only available with a PDF purchase. The Comprehensive list can be ordered no matter what additional plan options you have selected.

Construction Guide

$31.20
Educate yourself about basic building ideas with these four detailed diagrams that discuss electrical, plumbing, mechanical, and structural topics.

Lighting Design

$132.00
Receive an overlay sheet with suggested placement of lighting fixtures.

*Options with a fee may take time to prepare. Please call to confirm.

Unless you buy an “unlimited” plan set or a multi-use license you may only build one home from a set of plans. Please call to verify if you intend to build more than once. Plan licenses are non-transferable and cannot be resold.

Meet the Designer

Truoba

Truoba - Houseplans.com
“Our ambition is to design homes that fit people’s needs and improve their quality of life. We seek to make your dream home a reality.’’ Our passion is designing comfortable living environments. We believe that well-designed homes can improve the quality of life and we are always looking for innovative ways to reflect contemporary lifestyle needs. We also believe that the best modern architecture results from the deft combination of function and artfulness. Every home that we design expresses exterior elegance and interior comfort, and it is important to establish a dialogue between interior and exterior spaces. For example, well-positioned porches should work as outdoor rooms. Interior design plays a significant role in a good house project and can make smaller volumes function more efficiently and feel larger, and we trust that the owners of our homes will personalize the interior according to their own taste. For more interior design inspiration please visit our Pinterest board: www.pinterest.com/truoba/. Good houses involve not only esthetics and functionality but also sustainability and energy efficiency. At the beginning of every project we work to ensure that the building will perform efficiently, run economically, and be sustainably built and environmentally sensitive. We apply Passive House principles to make every home energy efficient. We also strive to simplify construction in order to lower overall building cost. We design houses for people who seek esthetic quality and comfort in their living environment. Good design adds value to your life and setting. Our ambition is to provide well designed houses that enhance daily life while making a positive impact on our urban environment. Truoba is based in Lithuania. Owner Ignas Stancikas, is an architecture graduate of the University of Strathclyde, Glasgow.

Other Plans By This Designer

See all plans by
Truoba

Need help? Let our friendly experts help you find the perfect plan!

Contact us now for a free consultation.