Contemporary Style House Plan - 6 Beds 2 Baths 2832 Sq/Ft Plan #25-4516 - Houseplans.com
Search
REGISTER LOGIN SAVED No Saved Plans CART  Cart Empty
Don't lose your saved plans! Create an account to access your saves whenever you want. See our Terms & Conditions and Privacy Policy.
OR
15% OFF FOR THE FIRST 25 CUSTOMERS
Plan 25-4516
Photographs may show modified designs.
Home  >  Style  >  Contemporary

Contemporary House Plan 25-4516

Key Specs


Plan Sq Ft

2832
sq ft

Plan Bedrooms

6
Beds

Plan Bathrooms

2
Baths

Plan Floors

2
Floors

Plan Garages

0
Garages

Questions? Get Personalized Help
Select Plan Set Options
What's included?
$127.50
Additional Construction Sets$42.50/each

Additional hard copies of the plan (can be ordered at the time of purchase and within 90 days of the purchase date).

$140.25
$250.75
$33.15
$140.25
$127.50
$212.50
Subtotal
NOW $977.50
You save $172.50
(15% savings)
Sale ends soon!
Best Price Guaranteed

Or order by phone: 1-800-913-2350
Questions? Get Personalized Help
 

 
Hours:
Ready for Your Call 7 Days a Week
Every Day 7 am - 8:30 pm Eastern

See Terms & Conditions and Privacy Policy.

Thanks for your question.

We will be in touch shortly.

Wow!
Cost to Build Reports
$1.99 with Code
CTB2026 (Limit 1)
Our Cost to Build Report gives you a personalized estimate for building your home, based on your location, plan, and materials.

Residential Construction Guide

Learn Building Basics

This downloadable, 26-page guide is full of diagrams and details about plumbing, electrical, and more.

Key Specs


Plan Sq Ft

2832
sq ft

Plan Bedrooms

6
Beds

Plan Bathrooms

2
Baths

Plan Floors

2
Floors

Plan Garages

0
Garages

Plan Description


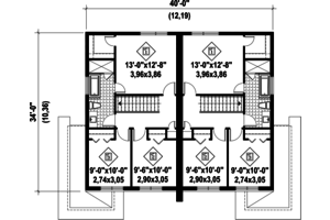
These urban semi-detached two-storey houses provide a total of 2,832 square feet of living space, and together they are 48 feet wide by 34 feet deep. The room layout and the living area are identical in the two units, which is 736 square feet on the ground floor, for a total of 1,472 square feet, and 680 square feet on the second floor, for a total of 1,360 square feet. In each house, the ground floor features a sunken entrance, a powder room, a living room with a gas fireplace, a dining room and a kitchen with a long lunch counter that can sit three people. On the second floor, each house features a bathroom with a large shower and separate bathtub, as well as three bedrooms, including a master bedroom with a large walk-in closet.

This plan can be customized!

Tell us about your desired changes so we can prepare an estimate for the design service. Click the button to submit your request for pricing, or call 1-800-913-2350.

Floor Plans


Floor Plan - Main Floor

Reverse
houseplans LOGO

BUILDER Advantage Program

PRO BUILDERS

Join the club and save 5% on your first order.
PLUS download exclusive discounts and more.

LEARN MORE

Floor Plan - Upper Floor

Reverse

Floor Plan - Main Floor

Reverse

Floor Plan - Upper Floor

Reverse

Full Specs & Features


Basic Features

Bedrooms : 6
Baths : 2
Stories: 2
Garages: 0

Dimension

Depth : 34'
Height : 30'
Width : 48'

Area

Total : 2832 sq/ft
Basement : 0 sq/ft
Garage : 0 sq/ft
Lower Floor : 0 sq/ft
Main Floor : 1472 sq/ft
Upper Floor : 1360 sq/ft
* Total Square Footage typically only includes conditioned space and does not include garages, porches, bonus rooms, or decks.

Ceiling

Main Ceiling : 8'

Roof

Primary Pitch : 5/12
Roof Framing : Truss
Roof Load : 50
Secondary Pitch : 5/12

Exterior Wall Framing

Exterior Wall Finish : Shingle Stone
Framing : Wood - 2 x 6
Insulation : R20

What's included in this plan set


See a sample plan set
*Important*
Please note that this plan is not available in PDF or CAD format for building in Quebec or Ontario.

Plans are typically drawn to ¼” scale and include:
  • Foundation Plan(s): This page shows all necessary notations and dimensions including footings, support columns, walls, and excavated/unexcavated areas.
  • Floor Plan(s): Detailed plans for each level showing room dimensions, wall partitions, windows and doors, fixture locations, and ceiling treatments.
  • Exterior Elevations: Views of the home from all four sides showing exterior materials, roof slope, ridge heights, siding and trim notes.
  • Overhead Roof Plan(s): A view of the home from above showing roof pitch, peaks, valleys, and other details.
  • Cross Section(s): A slice of the home from roof to foundation, showing relationships between floors, roof, and foundation.
  • Construction Notes / Detail(s): Shows basic parts and assemblies recommended for the home so the builder can see how things come together.
Important: Unlimited build licenses for this plan are valid for one year from the purchase date.
* See important information before purchasing

Pricing


Plan Options

PDF Set

Best Value!
$977.50
PDF plan sets are best for fast electronic delivery and inexpensive local printing.

5 Copy Set

$1015.75
5 printed plan sets mailed to you.

5 Copy and PDF Set

$1088.00
5 printed plan sets mailed to you plus PDF plan sets are best for fast electronic delivery and inexpensive local printing.

CAD and PDF Set

$1844.50
For use by design professionals to make substantial changes to your house plan and inexpensive local printing plus PDF plan sets are best for fast electronic delivery and inexpensive local printing.

Foundation Options

Basement

$0.00
Ideal for level lot, lower level of home partially or fully underground.

*Options with a fee may take time to prepare. Please call to confirm.

Additional Options

Right-Reading Reverse

$127.50
Choose this option to reverse your plans and to have the text and dimensions readable.

Additional Construction Sets

$42.50
Additional hard copies of the plan (can be ordered at the time of purchase and within 90 days of the purchase date).

Audio Video Design

$140.25
Receive an overlay sheet with suggested placement of audio and video components.

Comprehensive Material List

$250.75
A complete list of building supplies needed to construct the infrastructure of your new house, plus an overlay of materials shown directly on your PDF (foundation to rooftop with interior and exterior materials), and a detailed, itemized door and window schedule showing all sizes and types. Please allow 5-7 Business Days for completion. Note, the Comprehensive list is only available with a PDF purchase. The Comprehensive list can be ordered no matter what additional plan options you have selected.

Construction Guide

$33.15
Educate yourself about basic building ideas with these four detailed diagrams that discuss electrical, plumbing, mechanical, and structural topics.

Lighting Design

$140.25
Receive an overlay sheet with suggested placement of lighting fixtures.

Material List

$127.50
A spreadsheet of building supplies needed to construct the infrastructure of your new house. Please note materials lists will not reflect add-ons such as alternate foundation and framing options.

Unlimited Use License

$212.50
Allows you to build this home as many times as you want.

*Options with a fee may take time to prepare. Please call to confirm.

Unless you buy an “unlimited” plan set or a multi-use license you may only build one home from a set of plans. Please call to verify if you intend to build more than once. Plan licenses are non-transferable and cannot be resold.

Other Plans By This Designer

See all plans by
this designer

Browse Similar Plans

Need help? Let our friendly experts help you find the perfect plan!

Contact us now for a free consultation.