Don't lose your saved plans! 
Create an account to access your saves whenever you want. See our Terms & Conditions and Privacy Policy.
OR

Craftsman House Plan 928-282 2851 Sq Ft, 2 Bed, 2.5 Bath, 2 Floor, 1 Garage

Key Specs
  • 2
    Beds
  • 2.5
    Baths
  • 2
    Floors
  • 1
    Garages
  • 2851
    Square Feet
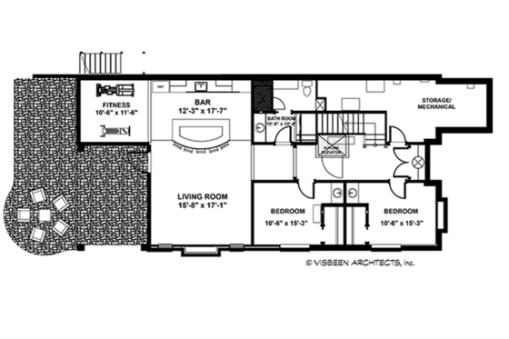
Winner of the Grand ARDA in the custom category at the 2015 American Residential Design Awards, this one-of-a-kind plan from Visbeen Architects provides an open layout and room to expand on the lower level. The compact 34-foot width makes it a perfect fit for a narrow lot. On the main floor, a network of smart storage and planning spaces keeps your household organized. The kitchen's large island seats four and opens to the living room, where a fireplace creates cozy evenings. A screened outdoor living area lets you enjoy the view in all kinds of weather. Take the stairs or the optional elevator to the second floor. Here, the master suite invites you to hang out in the large bedroom, choose your outfit in the walk-in closet, or sink into a bubble bath while gazing out the bay window. Another bedroom boasts a sitting room and private bathroom. Need more room for guests? The lower level can hold two bedrooms, relaxed living space, a bar, and more.

Questions on this plan?

New to the process and looking for some help to kick things off? Let us know a bit about your plans and we’ll be happy to help.

Budget & Customization Tools

Modify icon
Customize this Plan
Tell us about your desired changes and we can prepare an estimate.
Cost to Build icon
Cost to Build Report
A personalized estimate based on your location, plan, & materials.
Cost to Build icon
Residential Construction Guide
This downloadable, 26-page guide is full of diagrams and details about plumbing, electrical, and more.

Full specs & Features

Basic Features

Bedrooms: 2
Baths: 2.5
Stories: 2
Garages: 1

Dimension

Depth: 96'
Height: 35'
Width: 34'

Area

Total: 2851 sq/ft
Basement Unfinished: 1304 sq/ft
First Floor: 1666 sq/ft
Garage: 285 sq/ft
Second Floor: 1185 sq/ft
* Total Square Footage typically only includes conditioned space and does not include garages, porches, bonus rooms, or decks.

Ceiling

Lower Ceiling: 9'
Main Ceiling: 10'
Upper Ceiling Ft: 8'

Roof

Primary Pitch: 10:12
Roof Framing: Truss
Roof Type: Asphalt
Secondary Pitch: 12:12

Exterior Wall Framing

Exterior Wall Finish: Siding/Stone
Framing: Wood - 2x6

Bedroom Features

Fireplace
Formal Dining Room
Formal Living Room / Parlor
Upstairs Master Bedrooms
Walk In Closet

Kitchen Features

Breakfast Nook
Butler's Pantry
Kitchen Island
Kitchenette Wet Bar

Additional Room Features

Den Office Study Computer
Loft
Main Floor Laundry
Mud Room
Open Floor Plan
Storage Area

Garage Features

Front Entry Garage

Outdoor Spaces

Balcony
Courtyard
Covered Front Porch
Covered Rear Porch
Deck

What's Included

Please note: If you are building this plan in the state of Michigan, please give us a call to confirm availability. The designer has some geographic restrictions in Michigan.

All plans are drawn at ¼” scale or larger and include :Plans are typically drawn to ¼” scale and include:

  • Foundation Plan(s): Drawn to 1/4" scale, this page shows all necessary notations and dimensions including support columns, walls and excavated and unexcavated areas.
  • Floor Plan(s): Detailed plans, drawn to 1/4" scale for each level showing room dimensions, wall partitions, windows, etc.
  • Exterior Elevations: A blueprint picture of all four sides showing exterior materials and measurements.
  • Overhead Roof Plan(s): A view of the home from above showing roof pitch, peaks, valleys, and other details.
  • Cross Section(s): A vertical cutaway view of the house from roof to foundation showing details of framing, construction, flooring and roofing. Important: If you are ordering a CAD set, or Right-Reading Reverse on this plan, please allow two weeks for delivery based on the current design schedule.
  • Construction Notes and Detail(s): Shows basic parts and assemblies recommended for the home so the builder can see how things come together.

FAQs

Are designs on Houseplans ready to submit to my building department for permitting?

It depends on where you're building. Our plans contain enough information for a professional builder to construct your home, but your local government may require additional information before permitting. We strongly advise that you talk with your builder before you get started. If you are building for yourself, we recommend visiting your local building department to start your diligence. Read more here.

Can I make changes to a plan?

Absolutely! Our modification service allows you to customize almost anything - whether it's adding an extra garage bay, adjusting square footage, changing the roof pitch, or more, the plan modification service is a great value and can be completed quickly. Additionally, if you purchase an electronic plan set (PDF or CAD), you may have the option to make changes locally. CAD files offer the most flexibility for custom edits. Just let us know what you're thinking, and we’ll provide an estimate and timeframe to get started. Learn more here.

How much does a house cost to build?

Find out! Build costs vary based on the size of the home, materials used, and local rates for goods and labor. Our Cost to Build report is a great way to get some basic costs dialed in before you order your plans. Just plug in your postal code, select your desired construction quality, and we'll calculate for you.

Learn more about Cost to Build reports here.

Can I trust Houseplans?

Founded in 2004, Houseplans works with hundreds of architects and designers to offer their plans at a fraction of the price of custom design. Houseplans has an "Excellent" rating on TrustPilot.

Read more about us here.

Does Houseplans offer live support?

Yes, Houseplans has a dedicated team of house plan advisors with decades of experience between them. You can reach them by calling, emailing, filling out a form on the page of a plan that you like, or going to the Contact Us page. We're available to talk every day, even on weekends.

Builder Advantage Home

Builder Advantage Program

Are you a Pro Builder? Join the club, save 5% on your first order, get exclusive discounts, and more.

Learn More

You may also like

Save Plan
Craftsman

Plan 1064-302

$1250.00

beds3

bd

baths2.5

ba

stories1

story

square feet2489

sq ft

Save Plan
Farmhouse

Plan 430-422

$1445.00

beds3

bd

baths2.5

ba

stories1

story

square feet2494

sq ft

Save Plan
Colonial

Plan 20-1220

$1255.00

beds3

bd

baths2.5

ba

stories2

stories

square feet1699

sq ft

Recently viewed plans

Exterior - Front Elevation for Farmhouse House Plan #430-281 - 3 bed, 2.5 bath
Save Plan

Plan 430-281

$1445.00

beds3

bd

baths2.5

ba

stories1

story

square feet2241

sq ft

Signature
Exterior - Front Elevation for Farmhouse House Plan #928-355 - 4 bed, 3 bath
Save Plan

Plan 928-355

$1495.00

beds4

bd

baths3

ba

stories2

stories

square feet2252

sq ft

Exterior - Front Elevation for Craftsman House Plan #430-172 - 3 bed, 2 bath
Save Plan

Plan 430-172

$1445.00

beds3

bd

baths2

ba

stories1

story

square feet2086

sq ft

Exterior - Front Elevation for Farmhouse House Plan #430-260 - 4 bed, 3.5 bath
Save Plan

Plan 430-260

$1645.00

beds4

bd

baths3.5

ba

stories2

stories

square feet3216

sq ft

Signature
Exterior - Front Elevation for Craftsman House Plan #928-282 - 2 bed, 2.5 bath
Save Plan

Plan 928-282

$1995.00

beds2

bd

baths2.5

ba

stories2

stories

square feet2851

sq ft

Exterior - Front Elevation for Modern House Plan #1096-51 - 4 bed, 3.5 bath
Save Plan

Plan 1096-51

$1900.00

beds4

bd

baths3.5

ba

stories1

story

square feet3226

sq ft

Exterior - Front Elevation for Country House Plan #1080-8 - 4 bed, 3 bath
Save Plan

Plan 1080-8

$1350.00

beds4

bd

baths3

ba

stories2

stories

square feet2937

sq ft

Exterior - Front Elevation for Farmhouse House Plan #437-92 - 4 bed, 4.5 bath
Save Plan

Plan 437-92

$1595.00

beds4

bd

baths4.5

ba

stories2

stories

square feet4020

sq ft

Exterior - Front Elevation for Traditional House Plan #1080-9 - 5 bed, 4.5 bath
Save Plan

Plan 1080-9

$1494.99

beds5

bd

baths4.5

ba

stories2

stories

square feet3251

sq ft

Exterior - Front Elevation for Country House Plan #1080-11 - 5 bed, 4.5 bath
Save Plan

Plan 1080-11

$1495.00

beds5

bd

baths4.5

ba

stories2

stories

square feet3145

sq ft

Exterior - Front Elevation for Bungalow House Plan #79-206 - 3 bed, 2 bath
Save Plan

Plan 79-206

$1075.00

beds3

bd

baths2

ba

stories2

stories

square feet1460

sq ft