Craftsman Style House Plan - 4 Beds 3 Baths 2860 Sq/Ft Plan #1071-23 - Houseplans.com
Search
REGISTER LOGIN SAVED No Saved Plans CART  Cart Empty
Don't lose your saved plans! Create an account to access your saves whenever you want. See our Terms & Conditions and Privacy Policy.
OR
15% OFF FOR THE FIRST 25 CUSTOMERS
Plan 1071-23
Photographs may show modified designs.
Home  >  Style  >  Craftsman

Craftsman House Plan 1071-23

Key Specs


Plan Sq Ft

2860
sq ft

Plan Bedrooms

4
Beds

Plan Bathrooms

3
Baths

Plan Floors

2
Floors

Plan Garages

2
Garages

Questions? Get Personalized Help
Select Plan Set Options
What's included?
$127.50
$85.00
$33.15
$85.00
Subtotal
NOW $874.65
You save $154.35
(15% savings)
Sale ends soon!
Best Price Guaranteed

Or order by phone: 1-800-913-2350
Questions? Get Personalized Help
 

 
Hours:
Ready for Your Call 7 Days a Week
Every Day 7 am - 8:30 pm Eastern

See Terms & Conditions and Privacy Policy.

Thanks for your question.

We will be in touch shortly.

Wow!
Cost to Build Reports
$1.99 with Code
CTB2026 (Limit 1)
Our Cost to Build Report gives you a personalized estimate for building your home, based on your location, plan, and materials.

Residential Construction Guide

Learn Building Basics

This downloadable, 26-page guide is full of diagrams and details about plumbing, electrical, and more.

Key Specs


Plan Sq Ft

2860
sq ft

Plan Bedrooms

4
Beds

Plan Bathrooms

3
Baths

Plan Floors

2
Floors

Plan Garages

2
Garages

Plan Description


This craftsman design floor plan is 2860 sq ft and has 4 bedrooms and 3 bathrooms.

This plan can be customized!

Tell us about your desired changes so we can prepare an estimate for the design service. Click the button to submit your request for pricing, or call 1-800-913-2350.

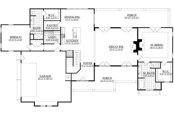
Floor Plans


Floor Plan - Main Floor

Reverse
houseplans LOGO

BUILDER Advantage Program

PRO BUILDERS

Join the club and save 5% on your first order.
PLUS download exclusive discounts and more.

LEARN MORE

Floor Plan - Upper Floor

Reverse

Full Specs & Features


Basic Features

Bedrooms : 4
Baths : 3
Stories: 2
Garages: 2

Dimension

Depth : 51' 11"
Height : 29' 6"
Width : 90' 10"

Area

Total : 2860 sq/ft
Bonus : 463 sq/ft
Garage : 720 sq/ft
Main Floor : 2317 sq/ft
Porch : 706 sq/ft
Upper Floor : 543 sq/ft
* Total Square Footage typically only includes conditioned space and does not include garages, porches, bonus rooms, or decks.

Ceiling

Ceiling Details : Two story Foyer; step ceiling in Master Bedroom
Main Ceiling : 9'

Roof

Primary Pitch : 8:12
Roof Framing : Conventional
Roof Type : Shingle
Secondary Pitch : 3:12

Exterior Wall Framing

Exterior Wall Finish : Brick & Siding
Framing : 2 x 4

Bedroom Features

Main Floor Bedrooms
Main Floor Master Bedroom
Split Bedrooms
Upstairs Bedrooms
Walk In Closet

Kitchen Features

Eating Bar
Kitchen Island
Walk In Pantry Cabinet Pantry

Additional Room Features

Great Room Living Room
Main Floor Laundry
Unfinished Future Space

Garage Features

Side Entry Garage

Lot Characteristics

Suited For Corner Lot

Outdoor Spaces

Covered Front Porch
Covered Rear Porch

What's included in this plan set


See a sample plan set
Plans are typically drawn to ¼” scale and include:
  • Cover Sheet: Cover sheet with rendering (black and white)
  • Foundation Plan(s): This page shows all necessary notations and dimensions including footings, support columns, walls, and excavated/unexcavated areas.
  • Floor Plan(s): Detailed plans for each level showing room dimensions, wall partitions, windows and doors, fixture locations, and ceiling treatments.
  • Exterior Elevations: Views of the home from all four sides showing exterior materials, roof slope, ridge heights, siding and trim notes.
  • Overhead Roof Plan(s): A view of the home from above showing roof pitch, peaks, valleys, and other details.
  • Cross Section(s): A slice of the home from roof to foundation, showing relationships between floors, roof, and foundation.
  • Construction Notes / Detail(s): Shows basic parts and assemblies recommended for the home so the builder can see how things come together.
* See important information before purchasing

Pricing


Plan Options

PDF Set

Best Value!
$874.65
PDF plan sets are best for fast electronic delivery and inexpensive local printing.

5 Copy Set

$963.90
5 printed plan sets mailed to you.

8 Copy Set

$1053.15
8 printed plan sets mailed to you.

CAD Set

$1749.30
For use by design professionals to make substantial changes to your house plan and inexpensive local printing.

Single Set

$785.40
One printed set for bidding purposes only. Not a legal building set for construction.

Foundation Options

Crawlspace

$0.00
Ideal for semi-sloped or level lot, home can be built off of grade, typically 18” - 48”.

Slab

$255.00
Ideal for level lot, single layer concrete poured directly on grade.

Basement

$467.50
Ideal for level lot, lower level of home partially or fully underground.

*Options with a fee may take time to prepare. Please call to confirm.

Framing Options

Wood 2x4

$0.00
Wood 2x4 Exterior Walls

Wood 2x6

$165.75
Wood 2x6 Exterior Walls

*Options with a fee may take time to prepare. Please call to confirm.

Additional Options

Right-Reading Reverse

$127.50
Choose this option to reverse your plans and to have the text and dimensions readable.

Audio Video Design

$85.00
Receive an overlay sheet with suggested placement of audio and video components.

Construction Guide

$33.15
Educate yourself about basic building ideas with these four detailed diagrams that discuss electrical, plumbing, mechanical, and structural topics.

Lighting Design

$85.00
Receive an overlay sheet with suggested placement of lighting fixtures.

*Options with a fee may take time to prepare. Please call to confirm.

Unless you buy an “unlimited” plan set or a multi-use license you may only build one home from a set of plans. Please call to verify if you intend to build more than once. Plan licenses are non-transferable and cannot be resold.

We offer a 90% credit when you upgrade from a set, that is not for construction, to a 5-Copy set (or greater).

Other Plans By This Designer

See all plans by
this designer

Need help? Let our friendly experts help you find the perfect plan!

Contact us now for a free consultation.