Don't lose your saved plans! 
Create an account to access your saves whenever you want. See our Terms & Conditions and Privacy Policy.
OR

Farmhouse House Plan 56-205 2972 Sq Ft, 4 Bed, 3.5 Bath, 2 Floor, 3 Garage

Key Specs
  • 4
    Beds
  • 3.5
    Baths
  • 2
    Floors
  • 3
    Garages
  • 2972
    Square Feet
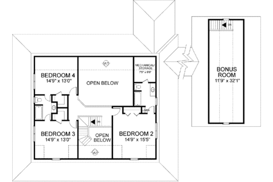
This luxurious, yet quaint and inviting country porch home offers sumptuous accommodations. From its two-story entry with angled staircase to the relaxing screened porch, this home is a masterful blend of elegance and livability. The lower level is an open design with very little wasted space. Flanking the two-story entry are the living and dining rooms, each measuring nearly 15'x 12'. Beyond the "bridge" above the entry is a 19'x17' two story family room with a fireplace. The spacious kitchen is open to the family room and features a breakfast bar and a built-in table in the cook top island. The laundry room includes a laundry tub. The master suite includes a "bayed" 14'-9" x 18'-5" bedroom and a beautiful corner his & hers bath/closet arrangement. Except for the two-story foyer and family room, ceiling heights on the main level are 9'. The upper level features three spacious bedrooms. Bedroom 2 has a private bath, while bedrooms 3 and 4 each have direct access to a shared bath. Ceiling heights upstairs are 8'. This design includes a full basement foundation with rear daylight.

Questions on this plan?

New to the process and looking for some help to kick things off? Let us know a bit about your plans and we’ll be happy to help.

Budget & Customization Tools

Modify icon
Customize this Plan
Tell us about your desired changes and we can prepare an estimate.
Cost to Build icon
Cost to Build Report
A personalized estimate based on your location, plan, & materials.
Cost to Build icon
Residential Construction Guide
This downloadable, 26-page guide is full of diagrams and details about plumbing, electrical, and more.

Full specs & Features

Basic Features

Bedrooms: 4
Baths: 3.5
Stories: 2
Garages: 3

Dimension

Depth: 49' 2"
Height: 28'
Width: 55' 8"

Area

Total: 2972 sq/ft
Bonus: 396 sq/ft
First Floor: 1986 sq/ft
Second Floor: 986 sq/ft
* Total Square Footage typically only includes conditioned space and does not include garages, porches, bonus rooms, or decks.

Roof

Primary Pitch: 9:12
Roof Framing: Conventional
Roof Type: Shingle

Exterior Wall Framing

Exterior Wall Finish: Siding
Framing: Wood - 2x4

Bedroom Features

Main Floor Master Bedroom
Walk In Closet

Kitchen Features

Breakfast Nook
Butler's Pantry
Eating Bar
Kitchen Island
Walk In Pantry Cabinet Pantry

Additional Room Features

Family Room Keeping Room
Play Flex Room
Sunroom
Unfinished Future Space

Garage Features

Oversized Garage
Side Entry Garage

Lot Characteristics

Suited For Corner Lot
Suited For Sloping Lot
Suited For View Lot

Outdoor Spaces

Covered Rear Porch
Screened Porch
Wrap Around Porch

More

Jack & Jill Bath

Rooms

Bedroom 2:

227 sq/ft width 14' 9" x depth 15' 5"

Bedroom 3:

191 sq/ft width 14' 9" x depth 13'

Bedroom 4:

191 sq/ft width 14' 9" x depth 13'

Bonus Room - Finished:

376 sq/ft width 11' 9" x depth 32' 1"

Breakfast Room:

109 sq/ft width 10' 11" x depth 10'

Deck:

463 sq/ft width 40' x depth 11' 7"

Dining Room:

175 sq/ft width 14' 9" x depth 11' 11"

Garage:

684 sq/ft width 21' 4" x depth 32' 1"

Gathering Room:

323 sq/ft width 19' x depth 17'

Kitchen:

182 sq/ft width 13' 10" x depth 13' 2"

Living Room:

175 sq/ft width 14' 9" x depth 11' 11"

Master Bedroom:

271 sq/ft width 14' 9" x depth 18' 5"

Porch - Rear:

137 sq/ft width 11' 10" x depth 11' 7"

What's Included

Plans are typically drawn to ¼” scale and include:
  • Foundation Plan(s): This page shows all necessary notations and dimensions including footings, support columns, walls, and excavated/unexcavated areas.
  • Floor Plan(s): Detailed plans for each level showing room dimensions, wall partitions, windows and doors, fixture locations, and ceiling treatments.
  • Exterior Elevations: All four sides
  • Overhead Roof Plan(s): A view of the home from above showing roof pitch, peaks, valleys, and other details.
  • Cross Section(s): A slice of the home from roof to foundation, showing relationships between floors, roof, and foundation.
  • Electrical Plan(s): Most plans from this designer have this available
  • Kitchen Cabinet Elevation(s): Detailed drawings of kitchen cabinet elevations
  • Construction Notes / Detail(s): Shows basic parts and assemblies recommended for the home so the builder can see how things come together.
  • Rendering(s): Artist rendering
  • Specification(s): Includes general specifications, not specific to individual plans.
3D Overview: most but not all plans by this designer are offered with a 3D overview. If this is important to you please contact one of our project advisors for verification.

FAQs

Are designs on Houseplans ready to submit to my building department for permitting?

It depends on where you're building. Our plans contain enough information for a professional builder to construct your home, but your local government may require additional information before permitting. We strongly advise that you talk with your builder before you get started. If you are building for yourself, we recommend visiting your local building department to start your diligence. Read more here.

Can I make changes to a plan?

Absolutely! Our modification service allows you to customize almost anything - whether it's adding an extra garage bay, adjusting square footage, changing the roof pitch, or more, the plan modification service is a great value and can be completed quickly. Additionally, if you purchase an electronic plan set (PDF or CAD), you may have the option to make changes locally. CAD files offer the most flexibility for custom edits. Just let us know what you're thinking, and we’ll provide an estimate and timeframe to get started. Learn more here.

How much does a house cost to build?

Find out! Build costs vary based on the size of the home, materials used, and local rates for goods and labor. Our Cost to Build report is a great way to get some basic costs dialed in before you order your plans. Just plug in your postal code, select your desired construction quality, and we'll calculate for you.

Learn more about Cost to Build reports here.

Can I trust Houseplans?

Founded in 2004, Houseplans works with hundreds of architects and designers to offer their plans at a fraction of the price of custom design. Houseplans has an "Excellent" rating on TrustPilot.

Read more about us here.

Does Houseplans offer live support?

Yes, Houseplans has a dedicated team of house plan advisors with decades of experience between them. You can reach them by calling, emailing, filling out a form on the page of a plan that you like, or going to the Contact Us page. We're available to talk every day, even on weekends.

Builder Advantage Home

Builder Advantage Program

Are you a Pro Builder? Join the club, save 5% on your first order, get exclusive discounts, and more.

Learn More

You may also like

Save Plan
Farmhouse

Plan 430-422

$1445.00

beds3

bd

baths2.5

ba

stories1

story

square feet2494

sq ft

Save Plan
Country

Plan 427-1

$897.60

beds3

bd

baths2.5

ba

stories2

stories

square feet1908

sq ft

Recently viewed plans

Exterior - Front Elevation for Farmhouse House Plan #56-205 - 4 bed, 3.5 bath
Save Plan

Plan 56-205

$1495.00

beds4

bd

baths3.5

ba

stories2

stories

square feet2972

sq ft