Traditional Style House Plan - 4 Beds 2.5 Baths 3073 Sq/Ft Plan #46-848 - Houseplans.com
Search
REGISTER LOGIN SAVED No Saved Plans CART  Cart Empty
Don't lose your saved plans! Create an account to access your saves whenever you want. See our Terms & Conditions and Privacy Policy.
OR
FINAL HOURS: 15% OFF ENDS TONIGHT
Plan 46-848
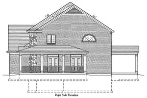
Photographs may show modified designs.
Home  >  Style  >  Traditional

Traditional House Plan 46-848

Key Specs


Plan Sq Ft

3073
sq ft

Plan Bedrooms

4
Beds

Plan Bathrooms

2.5
Baths

Plan Floors

2
Floors

Plan Garages

2
Garages

Questions? Get Personalized Help
Select Plan Set Options
What's included?
$170.00
Additional Construction Sets$46.75/each

Additional hard copies of the plan (can be ordered at the time of purchase and within 90 days of the purchase date).

$255.00
$140.25
$335.75
$33.15
$140.25
$510.00
Subtotal
NOW $1190.00
You save $210.00
(15% savings)
Sale ends soon!
Best Price Guaranteed

Or order by phone: 1-800-913-2350
Questions? Get Personalized Help
 

 
Hours:
Ready for Your Call 7 Days a Week
Every Day 7 am - 8:30 pm Eastern

See Terms & Conditions and Privacy Policy.

Thanks for your question.

We will be in touch shortly.

Wow!
Cost to Build Reports
$1.99 with Code
CTB2026 (Limit 1)
Our Cost to Build Report gives you a personalized estimate for building your home, based on your location, plan, and materials.

Residential Construction Guide

Learn Building Basics

This downloadable, 26-page guide is full of diagrams and details about plumbing, electrical, and more.

Key Specs


Plan Sq Ft

3073
sq ft

Plan Bedrooms

4
Beds

Plan Bathrooms

2.5
Baths

Plan Floors

2
Floors

Plan Garages

2
Garages

Plan Description


An inviting covered porch wraps around from the front to the side and combines with stone, brick, and shutters to add texture and color to this facade. Inside, the functional floor plan includes both formal and informal dining, a private study that opens to the porch, the great room with a corner fireplace, and a large kitchen with a walk-in pantry and snack-bar island. Just inside the entrance from the garage, the mud room, compact office area, and spacious laundry room help maintain order. The second-floor master suite showcases two walk-in closets, two vanities, and a whirlpool tub and separate shower. Secondary bedrooms enjoy large closets and provide loads of space for an active family.

This plan can be customized!

Tell us about your desired changes so we can prepare an estimate for the design service. Click the button to submit your request for pricing, or call 1-800-913-2350.

Floor Plans


Floor Plan - Main Floor

Reverse
houseplans LOGO

BUILDER Advantage Program

PRO BUILDERS

Join the club and save 5% on your first order.
PLUS download exclusive discounts and more.

LEARN MORE

Floor Plan - Upper Floor

Reverse

Full Specs & Features


Basic Features

Bedrooms : 4
Baths : 2.5
Stories: 2
Garages: 2

Dimension

Depth : 58' 6"
Height : 32' 6"
Width : 63' 10"

Area

Total : 3073 sq/ft
Basement Unfinished: 1689 sq/ft
First Floor: 1689 sq/ft height 9'
Garage: 495 sq/ft
Second Floor: 1384 sq/ft height 8'
* Total Square Footage typically only includes conditioned space and does not include garages, porches, bonus rooms, or decks.

Roof

Primary Pitch : 8:12
Roof Framing : Truss
Roof Type : Composition
Secondary Pitch : 12:12

Exterior Wall Framing

Exterior Wall Finish : Brick/Stone
Framing : Wood - 2x4

Bedroom Features

Fireplace
Formal Dining Room
Upstairs Master Bedrooms
Walk In Closet

Kitchen Features

Breakfast Nook
Butler's Pantry
Kitchen Island
Walk In Pantry Cabinet Pantry

Additional Room Features

Den Office Study Computer
Great Room Living Room
Main Floor Laundry
Mud Room
Vaulted / Cathedral Ceilings

Garage Features

Side Entry Garage

Outdoor Spaces

Covered Front Porch
Covered Rear Porch
Wrap Around Porch

Rooms

Bedroom 2:

184 sq/ft width 14' 5" x depth 12' 9"

Bedroom 3:

183 sq/ft width 15' 7" x depth 11' 9"

Bedroom 4:

175 sq/ft width 14' 11" x depth 11' 9"

Breakfast:

149 sq/ft width 12' 8" x depth 11' 9"

Covered Front Porch:

439 sq/ft

Covered Rear Porch:

169 sq/ft width 14' x depth 12'

Dining Room:

151 sq/ft width 11' 10" x depth 12' 9"

Garage:

495 sq/ft

Great Room:

342 sq/ft width 18' 4" x depth 18' 8"

Kitchen:

202 sq/ft width 13' 3" x depth 15' 3"

Laundry:

65 sq/ft width 9' 4" x depth 7'

Master Bedroom:

240 sq/ft width 14' x depth 17' 2"

Study:

150 sq/ft width 11' 1" x depth 13' 6"

What's included in this plan set


See a sample plan set
  • Foundation Plan(s): 1/4" scale foundation plan includes dimensions, actual steel beam and joist sizes. Most plans are designed for basement with a 7'10" pour and level lot (8" poured concrete wall). Foundation reinforcing detail shows size of footing and foundation wall, size and spacing of rebar.
  • Floor Plan(s): 1/4" scale plan that includes dimensions; actual header, flush beam, and joist sizes. Window rough opening sizes and locations. High quality windows and doors are specified on floor plan drawings. Location of bearing walls, direction of truss and rafter framing noted with size and spacing. Electrical layouts are shown.
  • Exterior Elevations: Drawings of front, rear, right side and left side elevations drawn at 1/4" scale.
  • Overhead Roof Plan(s): 1/8" scale plan indicates roof pitches, overhangs, saddles and chimneys
  • Cross Section(s): A slice of the home from roof to foundation, showing relationships between floors, roof, and foundation.
  • Electrical Plan(s): Shows the location of lights, receptacles, switches, etc. Some plans that do not include an electrical plan may have it available for an additional fee.
  • Kitchen Cabinet Elevation(s): Cabinet layouts, included in drawings, can be used to show sizes of cabinets at kitchen to be installed. This detail can also be helpful should you want custom cabinets, it can be used by your cabinet people to show you what will fit in the space and your options available.
  • Detail Sheet(s): Beam and column detail shows connection of steel columns that are used to support steel beams at basement and footing detail to be installed below slab to support column load. Stair Detail to show builder how to frame with information such as tread and riser heights.
  • Construction Notes / Detail(s): Shows basic parts and assemblies recommended for the home so the builder can see how things come together.
  • Framing Detail(s): If included, the framing layout is intended to be a suggested layout only. Design loads and weather conditions vary by region. As a result the size, spacing, and layout of all structural elements in this home design may need approval by a structural engineer or code official based on your specific site location. Truss profiles to show builder any irregular profiles, pitches, or heelcuts that varies from the typical framing.
  • Wall Section(s): Wall section shows typical framing detail of house.
  • Stair Detail(s): Drawings showing stair details.
  • Door / Window Schedule(s): A list of all the doors and windows needed to construct the house. This can help with estimating materials costs.
  • Other Note(s): Fireplace elevations that can be used as is to build your fireplace or to give you or your decorator a starting point. Fireplace detail shows how the fireplace is to be built.
* See important information before purchasing

Pricing


Plan Options

5 Copy and PDF Set

$1190.00
5 printed plan sets mailed to you plus PDF plan sets are best for fast electronic delivery and inexpensive local printing.

Eight Copy and PDF Set

$1215.50
8 printed plan sets mailed to you plus PDF plan sets are best for fast electronic delivery and inexpensive local printing.

PDF Set

Best Value!
$1572.50
PDF plan sets are best for fast electronic delivery and inexpensive local printing.

CAD Set

$1755.25
For use by design professionals to make substantial changes to your house plan and inexpensive local printing.

Study Set

$871.25
One electronic set for bidding purposes only. Not a legal building set for construction.

Foundation Options

Basement

$0.00
Ideal for level lot, lower level of home partially or fully underground.

*Options with a fee may take time to prepare. Please call to confirm.

Framing Options

Wood 2x4

$0.00
Wood 2x4 Exterior Walls

*Options with a fee may take time to prepare. Please call to confirm.

Additional Options

Right-Reading Reverse

$170.00
Choose this option to reverse your plans and to have the text and dimensions readable.

Additional Construction Sets

$46.75
Additional hard copies of the plan (can be ordered at the time of purchase and within 90 days of the purchase date).

Additional Use License

$255.00
Allows you to build one more home for each additional license purchased.

Audio Video Design

$140.25
Receive an overlay sheet with suggested placement of audio and video components.

Comprehensive Material List

$335.75
A complete list of building supplies needed to construct the infrastructure of your new house, plus an overlay of materials shown directly on your PDF (foundation to rooftop with interior and exterior materials), and a detailed, itemized door and window schedule showing all sizes and types. Please allow 5-7 Business Days for completion. Note, the Comprehensive list is only available with a PDF purchase. The Comprehensive list can be ordered no matter what additional plan options you have selected.

Construction Guide

$33.15
Educate yourself about basic building ideas with these four detailed diagrams that discuss electrical, plumbing, mechanical, and structural topics.

Lighting Design

$140.25
Receive an overlay sheet with suggested placement of lighting fixtures.

Unlimited Use License

$510.00
Allows you to build this home as many times as you want.

*Options with a fee may take time to prepare. Please call to confirm.

Unless you buy an “unlimited” plan set or a multi-use license you may only build one home from a set of plans. Please call to verify if you intend to build more than once. Plan licenses are non-transferable and cannot be resold.

We offer a 90% credit when you upgrade from a set, that is not for construction, to a 5-Copy set (or greater).

Other Plans By This Designer

See all plans by
this designer

Need help? Let our friendly experts help you find the perfect plan!

Contact us now for a free consultation.