Barndominium Style House Plan - 2 Beds 3 Baths 3118 Sq/Ft Plan #569-37 - Houseplans.com
Search
REGISTER LOGIN SAVED No Saved Plans CART  Cart Empty
Don't lose your saved plans! Create an account to access your saves whenever you want. See our Terms & Conditions and Privacy Policy.
OR
1 MORE DAY: 15% OFF ENDS TONIGHT
Plan 569-37
Photographs may show modified designs.
Home  >  Style  >  Barndominium

Barndominium House Plan 569-37

Key Specs


Plan Sq Ft

3118
sq ft

Plan Bedrooms

2
Beds

Plan Bathrooms

3
Baths

Plan Floors

2
Floors

Plan Garages

6
Garages

Questions? Get Personalized Help
Select Plan Set Options
What's included?
$165.75
$140.25
$335.75
$33.15
$140.25
Subtotal
NOW $1405.05
You save $247.95
(15% savings)
Sale ends soon!
Best Price Guaranteed

Or order by phone: 1-800-913-2350
Questions? Get Personalized Help
 

 
Hours:
Ready for Your Call 7 Days a Week
Every Day 7 am - 8:30 pm Eastern

See Terms & Conditions and Privacy Policy.

Thanks for your question.

We will be in touch shortly.

Wow!
Cost to Build Reports
$1.99 with Code
CTB2026 (Limit 1)
Our Cost to Build Report gives you a personalized estimate for building your home, based on your location, plan, and materials.

Residential Construction Guide

Learn Building Basics

This downloadable, 26-page guide is full of diagrams and details about plumbing, electrical, and more.

Key Specs


Plan Sq Ft

3118
sq ft

Plan Bedrooms

2
Beds

Plan Bathrooms

3
Baths

Plan Floors

2
Floors

Plan Garages

6
Garages

Plan Description


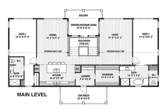
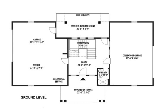
Designed with a car lover in mind, this plan features 2 garages on the ground level with room for as many as 6 vehicles. The living space is upstairs with two bedroom suites.

This plan can be customized!

Tell us about your desired changes so we can prepare an estimate for the design service. Click the button to submit your request for pricing, or call 1-800-913-2350.

Floor Plans


Floor Plan - Lower Floor

Reverse
houseplans LOGO

BUILDER Advantage Program

PRO BUILDERS

Join the club and save 5% on your first order.
PLUS download exclusive discounts and more.

LEARN MORE

Floor Plan - Main Floor

Reverse

Full Specs & Features


Basic Features

Bedrooms : 2
Baths : 3
Stories: 2
Garages: 6

Dimension

Depth : 44'
Height : 28' 9"
Width : 70'

Area

Total : 3118 sq/ft
Garage : 838 sq/ft
Lower Floor : 1132 sq/ft
Main Floor : 1986 sq/ft
* Total Square Footage typically only includes conditioned space and does not include garages, porches, bonus rooms, or decks.

Ceiling

Ceiling Details : Vaulted ceiling throughout the main living level.
Main Ceiling : 9'

Roof

Primary Pitch : 6:12
Roof Framing : Truss/Stick
Roof Type : Composition

Exterior Wall Framing

Exterior Wall Finish : Siding
Framing : 2 x 6

Bedroom Features

2 Master Suites
Upstairs Master Bedrooms
Walk In Closet

Kitchen Features

Eating Bar
Kitchen Island

Additional Room Features

Great Room Living Room
Upstairs Laundry

Garage Features

Side Entry Garage
Split Garage

Lot Characteristics

Suited For Narrow Lot

Outdoor Spaces

Covered Front Porch
Covered Rear Porch

What's included in this plan set


See a sample plan set

All plans are drawn at ¼” scale or larger and include :

  • Foundation Plan: This page shows all necessary notations and dimensions including support columns, walls, and excavated/unexcavated areas.
  • Exterior Elevations: Views of the home from all four sides showing exterior materials and measurements.
  • Floor Plan(s): Detailed plans for each level showing room dimensions, wall partitions, windows and doors, etc.
  • Cross Section: A slice of the home from roof to foundation, showing important details like stairs and wall construction.
  • Overhead Roof Plan(s): A view of the home from above showing roof pitch, peaks, valleys, and other details.
  • Construction Notes and Details: Shows the builder how things come together, like walls, the chimney, insulation, and more.
* See important information before purchasing

Pricing


Plan Options

PDF Set

Best Value!
$1405.05
PDF plan sets are best for fast electronic delivery and inexpensive local printing.

CAD Set

$1988.15
For use by design professionals to make substantial changes to your house plan and inexpensive local printing.

Foundation Options

Slab

$0.00
Ideal for level lot, single layer concrete poured directly on grade.

*Options with a fee may take time to prepare. Please call to confirm.

Additional Options

Right-Reading Reverse

$165.75
Choose this option to reverse your plans and to have the text and dimensions readable.

Audio Video Design

$140.25
Receive an overlay sheet with suggested placement of audio and video components.

Comprehensive Material List

$335.75
A complete list of building supplies needed to construct the infrastructure of your new house, plus an overlay of materials shown directly on your PDF (foundation to rooftop with interior and exterior materials), and a detailed, itemized door and window schedule showing all sizes and types. Please allow 5-7 Business Days for completion. Note, the Comprehensive list is only available with a PDF purchase. The Comprehensive list can be ordered no matter what additional plan options you have selected.

Construction Guide

$33.15
Educate yourself about basic building ideas with these four detailed diagrams that discuss electrical, plumbing, mechanical, and structural topics.

Lighting Design

$140.25
Receive an overlay sheet with suggested placement of lighting fixtures.

*Options with a fee may take time to prepare. Please call to confirm.

Unless you buy an “unlimited” plan set or a multi-use license you may only build one home from a set of plans. Please call to verify if you intend to build more than once. Plan licenses are non-transferable and cannot be resold.

Other Plans By This Designer

See all plans by
this designer

Need help? Let our friendly experts help you find the perfect plan!

Contact us now for a free consultation.