Don't lose your saved plans! 
Create an account to access your saves whenever you want. See our Terms & Conditions and Privacy Policy.
OR

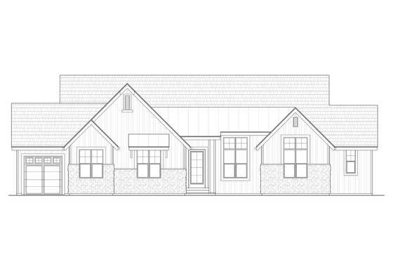
Farmhouse House Plan 1108-14 3638 Sq Ft, 6 Bed, 5 Bath, 1 Floor, 3 Garage

Key Specs
  • 6
    Beds
  • 5
    Baths
  • 1
    Floors
  • 3
    Garages
  • 3638
    Square Feet
This thoughtfully designed modern farmhouse blends the convenience of main-level living with the flexibility of expanded space when you need it. The 2,007-square-foot main level features an open-concept great room with soaring 11-foot ceilings, a statement fireplace, and built-in shelving. The kitchen and dining area flow easily onto a large covered deck, ideal for enjoying quiet mornings or lively gatherings. The private primary suite offers spa-like luxury with a walk-in shower, soaking tub, and deck access, while two additional bedrooms and a versatile study provide space for family or guests. A tucked-away den with its own ensuite bath offers extra privacy and comfort. For even more space, the optional 1,631-square-foot daylight basement opens up exciting possibilities. It includes two additional bedrooms, two full baths, a cozy rec room with a fireplace, a dedicated home theater for movie nights, and an extra laundry room for added convenience. Whether you're entertaining, hosting guests, or planning for the future, this design adapts beautifully to your lifestyle.

Questions on this plan?

New to the process and looking for some help to kick things off? Let us know a bit about your plans and we’ll be happy to help.

Budget & Customization Tools

Modify icon
Customize this Plan
Tell us about your desired changes and we can prepare an estimate.
Cost to Build icon
Cost to Build Report
A personalized estimate based on your location, plan, & materials.
Cost to Build icon
Residential Construction Guide
This downloadable, 26-page guide is full of diagrams and details about plumbing, electrical, and more.

Full specs & Features

Basic Features

Bedrooms: 6
Baths: 5
Stories: 1
Garages: 3

Dimension

Depth: 65'
Height: 24'
Width: 74'

Area

Total: 3638 sq/ft
Decks: 241 sq/ft
Garage: 928 sq/ft
Lower Floor: 1631 sq/ft
Main Floor: 2007 sq/ft
Porch: 50 sq/ft
* Total Square Footage typically only includes conditioned space and does not include garages, porches, bonus rooms, or decks.

Ceiling

Ceiling Details: Great Room Ceiling Height 11'
Garage Ceiling: 10'
Lower Ceiling: 8' 8"
Main Ceiling: 9'

Roof

Primary Pitch: 10/12
Secondary Pitch: 12/12

Bedroom Features

Lower Level Bedrooms
Main Floor Bedrooms
Main Floor Master Bedroom
Split Bedrooms
Walk In Closet

Kitchen Features

Kitchen Island
Walk In Pantry Cabinet Pantry

Additional Room Features

Den Office Study Computer
Exercise Room
Family Room Keeping Room
Great Room Living Room
Hobby Rec Room Game Room
Main Floor Laundry
Media Room
Mud Room
Play Flex Room
Storage Area
Workshop

Garage Features

Front Entry Garage
Oversized Garage
Side Entry Garage

Lot Characteristics

Suited For Sloping Lot
Suited For View Lot

Outdoor Spaces

Covered Front Porch
Covered Rear Porch
Grill Deck Sundeck

Energy Efficient Features

Energy Efficient Design

What's Included


All plans are drawn at ¼” scale or larger and include :

  • · Foundation Plan: Drawn to 1/4" scale, this page shows all necessary notations and dimensions including support columns, walls and excavated and unexcavated areas.
  • · Exterior Elevations: A blueprint picture of all four sides showing exterior materials and measurements.
  • · Floor Plan(s): Detailed plans, drawn to 1/4" scale for each level showing room dimensions, wall partitions, windows, etc.
  • · Electrical Plan(s): Plans, drawn to 1/4" scale for each level showing the location of electrical outlets and switches.
  • · Cross Section(s): A vertical cutaway view of the house from roof to foundation showing details of framing, construction, flooring and roofing.

FAQs

Are designs on Houseplans ready to submit to my building department for permitting?

It depends on where you're building. Our plans contain enough information for a professional builder to construct your home, but your local government may require additional information before permitting. We strongly advise that you talk with your builder before you get started. If you are building for yourself, we recommend visiting your local building department to start your diligence. Read more here.

Can I make changes to a plan?

Absolutely! Our modification service allows you to customize almost anything - whether it's adding an extra garage bay, adjusting square footage, changing the roof pitch, or more, the plan modification service is a great value and can be completed quickly. Additionally, if you purchase an electronic plan set (PDF or CAD), you may have the option to make changes locally. CAD files offer the most flexibility for custom edits. Just let us know what you're thinking, and we’ll provide an estimate and timeframe to get started. Learn more here.

How much does a house cost to build?

Find out! Build costs vary based on the size of the home, materials used, and local rates for goods and labor. Our Cost to Build report is a great way to get some basic costs dialed in before you order your plans. Just plug in your postal code, select your desired construction quality, and we'll calculate for you.

Learn more about Cost to Build reports here.

Can I trust Houseplans?

Founded in 2004, Houseplans works with hundreds of architects and designers to offer their plans at a fraction of the price of custom design. Houseplans has an "Excellent" rating on TrustPilot.

Read more about us here.

Does Houseplans offer live support?

Yes, Houseplans has a dedicated team of house plan advisors with decades of experience between them. You can reach them by calling, emailing, filling out a form on the page of a plan that you like, or going to the Contact Us page. We're available to talk every day, even on weekends.

Builder Advantage Home

Builder Advantage Program

Are you a Pro Builder? Join the club, save 5% on your first order, get exclusive discounts, and more.

Learn More

You may also like

Save Plan
Farmhouse

Plan 430-422

$1445.00

beds3

bd

baths2.5

ba

stories1

story

square feet2494

sq ft

Save Plan
Traditional

Plan 20-2346

$1305.00

beds4

bd

baths2.5

ba

stories2

stories

square feet2257

sq ft

Save Plan
Southern

Plan 44-222

$935.00

beds2

bd

baths1

ba

stories1

story

square feet890

sq ft

Recently viewed plans

Exterior - Front Elevation for Farmhouse House Plan #1108-14 - 6 bed, 5 bath
Save Plan

Plan 1108-14

$1900.00

beds6

bd

baths5

ba

stories1

story

square feet3638

sq ft