Contemporary Style House Plan - 3 Beds 2.5 Baths 2300 Sq/Ft Plan #1108-11 - Houseplans.com
Search
REGISTER LOGIN SAVED No Saved Plans CART  Cart Empty
Don't lose your saved plans! Create an account to access your saves whenever you want. See our Terms & Conditions and Privacy Policy.
OR
15% OFF TODAY FOR FIRST 25 CUSTOMERS
Plan 1108-11
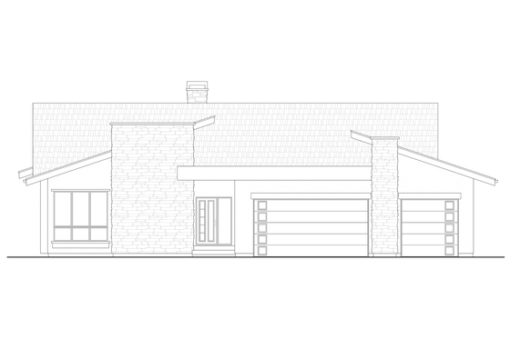
Photographs may show modified designs.
Home  >  Style  >  Contemporary

Contemporary House Plan 1108-11

Key Specs


Plan Sq Ft

2300
sq ft

Plan Bedrooms

3
Beds

Plan Bathrooms

2.5
Baths

Plan Floors

1
Floors

Plan Garages

3
Garages

Questions? Get Personalized Help
Select Plan Set Options
What's included?
$212.50
$140.25
$250.75
$33.15
$140.25
Subtotal
NOW $1190.00
You save $210.00
(15% savings)
Sale ends soon!
Best Price Guaranteed

Or order by phone: 1-800-913-2350
Questions? Get Personalized Help
 

 
Hours:
Ready for Your Call 7 Days a Week
Every Day 7 am - 8:30 pm Eastern

See Terms & Conditions and Privacy Policy.

Thanks for your question.

We will be in touch shortly.

Wow!
Cost to Build Reports
$1.99 with Code
CTBFALL (Limit 1)
Our Cost to Build Report gives you a personalized estimate for building your home, based on your location, plan, and materials.

Residential Construction Guide

Learn Building Basics

This downloadable, 26-page guide is full of diagrams and details about plumbing, electrical, and more.

Key Specs


Plan Sq Ft

2300
sq ft

Plan Bedrooms

3
Beds

Plan Bathrooms

2.5
Baths

Plan Floors

1
Floors

Plan Garages

3
Garages

Plan Description


This modern ranch home blends style, comfort, and functionality in a single-level design made for easy living. Inside, an open-concept layout connects the kitchen, dining nook, and great room — creating a central space that’s perfect for everyday life and entertaining. A raised 12'-8" ceiling and statement fireplace add drama and warmth, while sliding glass doors extend the living space to a covered rear patio. The private primary suite is a restful retreat tucked away at the rear of the home, complete with a spa-like bath, spacious walk-in closet, and direct patio access. A second bedroom and full bath are ideal for guests or family members, and a versatile study offers the flexibility to serve as a third bedroom, home office, or creative space. A powder room, functional mudroom, and three-car garage round out the main level’s smart 2,300-square-foot footprint — designed for those who love single-level living with modern flair.

This plan can be customized!

Tell us about your desired changes so we can prepare an estimate for the design service. Click the button to submit your request for pricing, or call 1-800-913-2350.

Floor Plans


Floor Plan - Main Floor

Reverse
houseplans LOGO

BUILDER Advantage Program

PRO BUILDERS

Join the club and save 5% on your first order.
PLUS download exclusive discounts and more.

LEARN MORE

Full Specs & Features


Basic Features

Bedrooms : 3
Baths : 2.5
Stories: 1
Garages: 3

Dimension

Depth : 75'
Height : 20'
Width : 60'

Area

Total : 2300 sq/ft
Garage : 805 sq/ft
Main Floor : 2300 sq/ft
Patios : 276 sq/ft
Porch : 61 sq/ft
* Total Square Footage typically only includes conditioned space and does not include garages, porches, bonus rooms, or decks.

Ceiling

Ceiling Details : Great Room Ceiling Height: 12'-8"
Garage Ceiling : 10' 9"
Main Ceiling : 9' 1"

Roof

Primary Pitch : 6/12
Secondary Pitch : 4/12

Bedroom Features

Main Floor Bedrooms
Main Floor Master Bedroom
Walk In Closet

Kitchen Features

Breakfast Nook
Eating Bar
Kitchen Island

Additional Room Features

Den Office Study Computer
Great Room Living Room
Main Floor Laundry
Mud Room

Garage Features

Front Entry Garage
Oversized Garage

Outdoor Spaces

Covered Front Porch
Covered Rear Porch

More

Additional Half Bath
Empty Nester

Energy Efficient Features

Energy Efficient Design

What's included in this plan set


See a sample plan set


All plans are drawn at ¼” scale or larger and include :

  • · Foundation Plan: Drawn to 1/4" scale, this page shows all necessary notations and dimensions including support columns, walls and excavated and unexcavated areas.
  • · Exterior Elevations: A blueprint picture of all four sides showing exterior materials and measurements.
  • · Floor Plan(s): Detailed plans, drawn to 1/4" scale for each level showing room dimensions, wall partitions, windows, etc.
  • · Electrical Plan(s): Plans, drawn to 1/4" scale for each level showing the location of electrical outlets and switches.
  • · Cross Section(s): A vertical cutaway view of the house from roof to foundation showing details of framing, construction, flooring and roofing.

* See important information before purchasing

Pricing


Plan Options

PDF Set

Best Value!
$1190.00
PDF plan sets are best for fast electronic delivery and inexpensive local printing.

CAD and PDF Set

$1615.00
For use by design professionals to make substantial changes to your house plan and inexpensive local printing plus PDF plan sets are best for fast electronic delivery and inexpensive local printing.

CAD Set

$1615.00
For use by design professionals to make substantial changes to your house plan and inexpensive local printing.

PDF Unlimited Build

$1615.00
PDF plan sets are best for fast electronic delivery and inexpensive local printing.

CAD and PDF Set Unlimited Build

$2040.00
For use by design professionals to make substantial changes to your house plan and inexpensive local printing plus PDF plan sets are best for fast electronic delivery and inexpensive local printing.

Foundation Options

Slab

$0.00
Ideal for level lot, single layer concrete poured directly on grade.

Crawlspace

$170.00
Ideal for semi-sloped or level lot, home can be built off of grade, typically 18” - 48”.

*Options with a fee may take time to prepare. Please call to confirm.

Framing Options

Wood 2x6

$0.00
Wood 2x6 Exterior Walls

*Options with a fee may take time to prepare. Please call to confirm.

Additional Options

Right-Reading Reverse

$212.50
Choose this option to reverse your plans and to have the text and dimensions readable.

Audio Video Design

$140.25
Receive an overlay sheet with suggested placement of audio and video components.

Comprehensive Material List

$250.75
A complete list of building supplies needed to construct the infrastructure of your new house, plus an overlay of materials shown directly on your PDF (foundation to rooftop with interior and exterior materials), and a detailed, itemized door and window schedule showing all sizes and types. Please allow 5-7 Business Days for completion. Note, the Comprehensive list is only available with a PDF purchase. The Comprehensive list can be ordered no matter what additional plan options you have selected.

Construction Guide

$33.15
Educate yourself about basic building ideas with these four detailed diagrams that discuss electrical, plumbing, mechanical, and structural topics.

Lighting Design

$140.25
Receive an overlay sheet with suggested placement of lighting fixtures.

*Options with a fee may take time to prepare. Please call to confirm.

Unless you buy an “unlimited” plan set or a multi-use license you may only build one home from a set of plans. Please call to verify if you intend to build more than once. Plan licenses are non-transferable and cannot be resold.

Need help? Let our friendly experts help you find the perfect plan!

Contact us now for a free consultation.