Don't lose your saved plans! 
Create an account to access your saves whenever you want. See our Terms & Conditions and Privacy Policy.
OR

Prairie House Plan 928-279 3718 Sq Ft, 5 Bed, 3 Bath, 1 Floor, 3 Garage

Key Specs
  • 5
    Beds
  • 3
    Baths
  • 1
    Floors
  • 3
    Garages
  • 3718
    Square Feet
Every day feels like a celebration in this stylish and versatile design. The finished lower level offers extra bedrooms and space for a busy family, while the main level transitions nicely to an empty nest later. The distinctive transitional exterior welcomes friends and family with interesting peaked roof lines, stone pillars, stucco details, and symmetrical banks of windows. The main level includes more than 2,100 square feet, with a roomy living room and kitchen providing a great open space for gathering (especially around the kitchen's island). A guest bedroom and bathroom give privacy to visiting family or friends. On the opposite side of the home, the master suite boasts a huge double shower, two sinks, a walk-in closet, and a lovely tray ceiling in the bedroom. The walk-out lower level offers another 1,500 square feet of living space, with a large family room, three additional family bedrooms, and a shared bath.

Questions on this plan?

New to the process and looking for some help to kick things off? Let us know a bit about your plans and we’ll be happy to help.

Budget & Customization Tools

Modify icon
Customize this Plan
Tell us about your desired changes and we can prepare an estimate.
Cost to Build icon
Cost to Build Report
A personalized estimate based on your location, plan, & materials.
Cost to Build icon
Residential Construction Guide
This downloadable, 26-page guide is full of diagrams and details about plumbing, electrical, and more.

Full specs & Features

Basic Features

Bedrooms: 5
Baths: 3
Stories: 1
Garages: 3

Dimension

Depth: 53'
Height: 19' 9"
Width: 86'

Area

Total: 3718 sq/ft
Basement Living: 1524 sq/ft height 8'
Basement Unfinished: 582 sq/ft
First Floor: 2194 sq/ft height 10'
Garage: 930 sq/ft
* Total Square Footage typically only includes conditioned space and does not include garages, porches, bonus rooms, or decks.

Roof

Primary Pitch: 5:12
Roof Framing: Truss
Roof Type: Asphalt
Secondary Pitch: 4:12

Exterior Wall Framing

Exterior Wall Finish: Brick/Siding
Framing: Wood - 2x6

Bedroom Features

Fireplace
Formal Dining Room
Guest Suite
Main Floor Master Bedroom
Split Bedrooms
Walk In Closet

Kitchen Features

Kitchen Island
Kitchenette Wet Bar

Additional Room Features

Den Office Study Computer
Family Room Keeping Room
Great Room Living Room
Hobby Rec Room Game Room
Main Floor Laundry
Open Floor Plan

Garage Features

Side Entry Garage

Outdoor Spaces

Courtyard
Covered Front Porch
Covered Rear Porch

Rooms

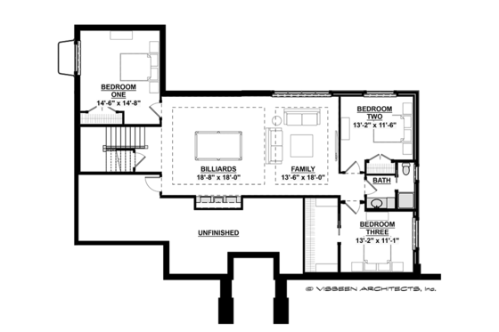
Bedroom One:

213 sq/ft width 14' 6" x depth 14' 8"

Bedroom Three:

146 sq/ft width 13' 2" x depth 11' 1"

Bedroom Two:

151 sq/ft width 13' 2" x depth 11' 6"

Billiards:

336 sq/ft width 18' 8" x depth 18'

Dining Room:

150 sq/ft width 11' x depth 13' 8"

Family:

243 sq/ft width 13' 6" x depth 18'

Garage:

930 sq/ft width 23' x depth 35'

Guest Room:

178 sq/ft width 15' 6" x depth 11' 6"

Kitchen:

228 sq/ft width 12' 4" x depth 18' 6"

Living Room:

358 sq/ft width 19' 4" x depth 18' 6"

Master Bedroom:

191 sq/ft width 13' 8" x depth 14'

Study:

130 sq/ft width 11' x depth 11' 10"

What's Included

Please note: If you are building this plan in the state of Michigan, please give us a call to confirm availability. The designer has some geographic restrictions in Michigan.

All plans are drawn at ¼” scale or larger and include :Plans are typically drawn to ¼” scale and include:

  • Foundation Plan(s): Drawn to 1/4" scale, this page shows all necessary notations and dimensions including support columns, walls and excavated and unexcavated areas.
  • Floor Plan(s): Detailed plans, drawn to 1/4" scale for each level showing room dimensions, wall partitions, windows, etc.
  • Exterior Elevations: A blueprint picture of all four sides showing exterior materials and measurements.
  • Overhead Roof Plan(s): A view of the home from above showing roof pitch, peaks, valleys, and other details.
  • Cross Section(s): A vertical cutaway view of the house from roof to foundation showing details of framing, construction, flooring and roofing. Important: If you are ordering a CAD set, or Right-Reading Reverse on this plan, please allow two weeks for delivery based on the current design schedule.
  • Construction Notes and Detail(s): Shows basic parts and assemblies recommended for the home so the builder can see how things come together.

FAQs

Are designs on Houseplans ready to submit to my building department for permitting?

It depends on where you're building. Our plans contain enough information for a professional builder to construct your home, but your local government may require additional information before permitting. We strongly advise that you talk with your builder before you get started. If you are building for yourself, we recommend visiting your local building department to start your diligence. Read more here.

Can I make changes to a plan?

Absolutely! Our modification service allows you to customize almost anything - whether it's adding an extra garage bay, adjusting square footage, changing the roof pitch, or more, the plan modification service is a great value and can be completed quickly. Additionally, if you purchase an electronic plan set (PDF or CAD), you may have the option to make changes locally. CAD files offer the most flexibility for custom edits. Just let us know what you're thinking, and we’ll provide an estimate and timeframe to get started. Learn more here.

How much does a house cost to build?

Find out! Build costs vary based on the size of the home, materials used, and local rates for goods and labor. Our Cost to Build report is a great way to get some basic costs dialed in before you order your plans. Just plug in your postal code, select your desired construction quality, and we'll calculate for you.

Learn more about Cost to Build reports here.

Can I trust Houseplans?

Founded in 2004, Houseplans works with hundreds of architects and designers to offer their plans at a fraction of the price of custom design. Houseplans has an "Excellent" rating on TrustPilot.

Read more about us here.

Does Houseplans offer live support?

Yes, Houseplans has a dedicated team of house plan advisors with decades of experience between them. You can reach them by calling, emailing, filling out a form on the page of a plan that you like, or going to the Contact Us page. We're available to talk every day, even on weekends.

Builder Advantage Home

Builder Advantage Program

Are you a Pro Builder? Join the club, save 5% on your first order, get exclusive discounts, and more.

Learn More

You may also like

Save Plan
Prairie

Plan 48-1030

$1567.00

beds3

bd

baths2

ba

stories1

story

square feet1922

sq ft

Save Plan
Craftsman

Plan 126-236

$1195.00

beds2

bd

baths2

ba

stories1

story

square feet988

sq ft

Save Plan
Ranch

Plan 44-274

$1120.00

beds3

bd

baths2

ba

stories1

story

square feet1500

sq ft

Recently viewed plans

Signature
Prairie Exterior - Front Elevation Plan #928-279
Save Plan

Plan 928-279

$1495.00

beds5

bd

baths3

ba

stories1

story

square feet3718

sq ft