Don't lose your saved plans! 
Create an account to access your saves whenever you want. See our Terms & Conditions and Privacy Policy.
OR

Cottage House Plan 928-400 3976 Sq Ft, 4 Bed, 4 Bath, 2 Floor, 1 Garage

Key Specs
  • 4
    Beds
  • 4
    Baths
  • 2
    Floors
  • 1
    Garages
  • 3976
    Square Feet
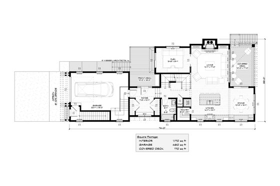
This Craftsman Cottage–inspired residence is thoughtfully designed to take full advantage of its lakeside setting, blending classic architecture with a highly functional, multi-level floor plan. The exterior composition features a balanced mix of vertical siding, shingle accents, and stone detailing, with steep gables and generous window groupings that bring natural light deep into the home and frame views toward the water. The home is organized across three finished levels with includes four bedrooms and four bathrooms. The main level is centered around an open living, dining, and kitchen arrangement with a fireplace and strong visual connection to outdoor living areas, making it ideal for entertaining and everyday family use. A covered deck and porch extend the living space outdoors. The upper level is designed for privacy and comfort, featuring the primary suite along with additional bedrooms arranged beneath vaulted rooflines. The lower level provides flexible living space with additional bedrooms, a family or recreation area, and direct access to a covered patio and the landscaped backyard. Overall, the home balances timeless Craftsman character with modern livability—combining efficient planning, generous ceiling heights, and seamless indoor-outdoor connections well suited for a coastal or lakefront lifestyle

Questions on this plan?

New to the process and looking for some help to kick things off? Let us know a bit about your plans and we’ll be happy to help.

Budget & Customization Tools

Modify icon
Customize this Plan
Tell us about your desired changes and we can prepare an estimate.
Cost to Build icon
Cost to Build Report
A personalized estimate based on your location, plan, & materials.
Cost to Build icon
Residential Construction Guide
This downloadable, 26-page guide is full of diagrams and details about plumbing, electrical, and more.

Full specs & Features

Basic Features

Bedrooms: 4
Baths: 4
Stories: 2
Garages: 1

Dimension

Depth: 74'
Width: 33'

Area

Total: 3976 sq/ft
Bonus: 366 sq/ft
Garage: 480 sq/ft
Lower Floor: 793 sq/ft
Main Floor: 1170 sq/ft
Storage: 222 sq/ft
Upper Floor: 945 sq/ft
* Total Square Footage typically only includes conditioned space and does not include garages, porches, bonus rooms, or decks.

Ceiling

Bonus Ceiling: 9'
Ceiling Details: Vaulted ceiling in the upper level
Garage Ceiling: 10' 3"
Lower Ceiling: 8'
Main Ceiling: 9'
Upper Ceiling Ft: 9'

Roof

Primary Pitch: 12/12
Roof Framing: truss
Roof Type: Asphalt & metal
Secondary Pitch: 6/12

Exterior Wall Framing

Exterior Wall Finish: board & batten, shake, stone
Framing: 2x6

Bedroom Features

Lower Level Bedrooms
Upstairs Master Bedrooms
Walk In Closet

Kitchen Features

Breakfast Nook
Eating Bar
Kitchen Island
Kitchenette Wet Bar
Walk In Pantry Cabinet Pantry

Additional Room Features

Den Office Study Computer
Family Room Keeping Room
Hobby Rec Room Game Room
Media Room
Mud Room
Play Flex Room
Storage Area
Wet Bar

Garage Features

Front Entry Garage

Lot Characteristics

Suited For Narrow Lot
Suited For Sloping Lot
Suited For View Lot
Zero Lot Lines

Outdoor Spaces

Balcony
Covered Front Porch
Screened Porch

More

Empty Nester
Suited For Vacation Home

What's Included

Please note: If you are building this plan in the state of Michigan, please give us a call to confirm availability. The designer has some geographic restrictions in Michigan.

All plans are drawn at ¼” scale or larger and include :Plans are typically drawn to ¼” scale and include:

  • Foundation Plan(s): Drawn to 1/4" scale, this page shows all necessary notations and dimensions including support columns, walls and excavated and unexcavated areas.
  • Floor Plan(s): Detailed plans, drawn to 1/4" scale for each level showing room dimensions, wall partitions, windows, etc.
  • Exterior Elevations: A blueprint picture of all four sides showing exterior materials and measurements.
  • Overhead Roof Plan(s): A view of the home from above showing roof pitch, peaks, valleys, and other details.
  • Cross Section(s): A vertical cutaway view of the house from roof to foundation showing details of framing, construction, flooring and roofing. Important: If you are ordering a CAD set, or Right-Reading Reverse on this plan, please allow two weeks for delivery based on the current design schedule.
  • Construction Notes and Detail(s): Shows basic parts and assemblies recommended for the home so the builder can see how things come together.

FAQs

Are designs on Houseplans ready to submit to my building department for permitting?

It depends on where you're building. Our plans contain enough information for a professional builder to construct your home, but your local government may require additional information before permitting. We strongly advise that you talk with your builder before you get started. If you are building for yourself, we recommend visiting your local building department to start your diligence. Read more here.

Can I make changes to a plan?

Absolutely! Our modification service allows you to customize almost anything - whether it's adding an extra garage bay, adjusting square footage, changing the roof pitch, or more, the plan modification service is a great value and can be completed quickly. Additionally, if you purchase an electronic plan set (PDF or CAD), you may have the option to make changes locally. CAD files offer the most flexibility for custom edits. Just let us know what you're thinking, and we’ll provide an estimate and timeframe to get started. Learn more here.

How much does a house cost to build?

Find out! Build costs vary based on the size of the home, materials used, and local rates for goods and labor. Our Cost to Build report is a great way to get some basic costs dialed in before you order your plans. Just plug in your postal code, select your desired construction quality, and we'll calculate for you.

Learn more about Cost to Build reports here.

Can I trust Houseplans?

Founded in 2004, Houseplans works with hundreds of architects and designers to offer their plans at a fraction of the price of custom design. Houseplans has an "Excellent" rating on TrustPilot.

Read more about us here.

Does Houseplans offer live support?

Yes, Houseplans has a dedicated team of house plan advisors with decades of experience between them. You can reach them by calling, emailing, filling out a form on the page of a plan that you like, or going to the Contact Us page. We're available to talk every day, even on weekends.

Builder Advantage Home

Builder Advantage Program

Are you a Pro Builder? Join the club, save 5% on your first order, get exclusive discounts, and more.

Learn More

You may also like

Save Plan
Cottage

Plan 515-56

$650.00

beds2

bd

baths2

ba

stories1

story

square feet838

sq ft

Save Plan
Traditional

Plan 20-2346

$1305.00

beds4

bd

baths2.5

ba

stories2

stories

square feet2257

sq ft

Save Plan
Country

Plan 427-1

$897.60

beds3

bd

baths2.5

ba

stories2

stories

square feet1908

sq ft

Recently viewed plans

Exterior - Rear Elevation for Cottage House Plan #928-400 - 4 bed, 4 bath
Save Plan

Plan 928-400

$1495.00

beds4

bd

baths4

ba

stories2

stories

square feet3976

sq ft