Farmhouse Style House Plan - 3 Beds 4.5 Baths 3995 Sq/Ft Plan #928-365 - Houseplans.com
Search
REGISTER LOGIN SAVED No Saved Plans CART  Cart Empty
Don't lose your saved plans! Create an account to access your saves whenever you want. See our Terms & Conditions and Privacy Policy.
OR
20% OFF TODAY FOR BLACK FRIDAY
Photographs may show modified designs.
Home  >  Style  >  Farmhouse

Farmhouse House Plan 928-365

Key Specs


Plan Sq Ft

3995
sq ft

Plan Bedrooms

3
Beds

Plan Bathrooms

4.5
Baths

Plan Floors

2
Floors

Plan Garages

2
Garages

Questions? Get Personalized Help
Select Plan Set Options
What's included?
$156.00
$132.00
$316.00
$31.20
$132.00
Subtotal
NOW $1596.00
You save $399.00
(20% savings)
Sale ends soon!
Best Price Guaranteed

Or order by phone: 1-800-913-2350
Questions? Get Personalized Help
 

 
Hours:
Ready for Your Call 7 Days a Week
Every Day 7 am - 8:30 pm Eastern

See Terms & Conditions and Privacy Policy.

Thanks for your question.

We will be in touch shortly.

Wow!
Cost to Build Reports
$1.99 with Code
CTBFALL (Limit 1)
Our Cost to Build Report gives you a personalized estimate for building your home, based on your location, plan, and materials.

Residential Construction Guide

Learn Building Basics

This downloadable, 26-page guide is full of diagrams and details about plumbing, electrical, and more.

Key Specs


Plan Sq Ft

3995
sq ft

Plan Bedrooms

3
Beds

Plan Bathrooms

4.5
Baths

Plan Floors

2
Floors

Plan Garages

2
Garages

Plan Description


This narrow and efficient lakefront home features a charming exterior composed of robust brackets, thick trim profiles and board & batten siding that brings this farmhouse-inspired home to life. Attached to the front, and forming a courtyard with the main house, is the side-loading two-stall garage. A spacious ten foot tall foyer serves as a circulation hub, accessing the home’s second floor, den, and open concept kitchen/hearth. Off of the centrally placed kitchen is a large screened porch that grants access to the outdoors through a retractable-screened wall. The lake room and den flank the screened porch, completing this home’s three lakefront spaces. Upstairs, above the kitchen and hearth is a private master suite that opens out to a balcony located above the main level screened porch. The master bath and shower are given preferential lakefront vistas, while two more bedrooms can be found above the den and foyer. Opposite the master suite, adjacent to the staircase, is a spacious laundry room. Lastly, the home’s private guest quarter is located above the garage through a private staircase.

This plan can be customized!

Tell us about your desired changes so we can prepare an estimate for the design service. Click the button to submit your request for pricing, or call 1-800-913-2350.

Floor Plans


Floor Plan - Main Floor

Reverse
houseplans LOGO

BUILDER Advantage Program

PRO BUILDERS

Join the club and save 5% on your first order.
PLUS download exclusive discounts and more.

LEARN MORE

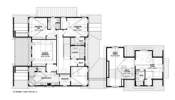
Floor Plan - Upper Floor

Reverse

Full Specs & Features


Basic Features

Bedrooms : 3
Baths : 4.5
Stories: 2
Garages: 2

Dimension

Depth : 102'
Width : 51'

Area

Total : 3995 sq/ft
Bonus : 795 sq/ft
Garage : 936 sq/ft
Main Floor : 2308 sq/ft
Porch : 285 sq/ft
Upper Floor : 1687 sq/ft
* Total Square Footage typically only includes conditioned space and does not include garages, porches, bonus rooms, or decks.

Ceiling

Garage Ceiling : 9' 1"
Main Ceiling : 10' 1"
Upper Ceiling Ft : 9' 1"

Roof

Primary Pitch : 10/12
Roof Framing : truss
Secondary Pitch : 12/12

Exterior Wall Framing

Framing : 2x6

Bedroom Features

Guest Suite
Upstairs Bedrooms
Upstairs Master Bedrooms
Walk In Closet

Kitchen Features

Breakfast Nook
Eating Bar
Kitchen Island
Kitchenette Wet Bar

Additional Room Features

Den Office Study Computer
Family Room Keeping Room
Great Room Living Room
Mud Room
Play Flex Room
Unfinished Future Space
Upstairs Laundry

Garage Features

Oversized Garage
Side Entry Garage

Entryway

Friend S Entry

Lot Characteristics

Suited For Narrow Lot
Suited For View Lot
Zero Lot Lines

Outdoor Spaces

Balcony
Covered Front Porch
Covered Rear Porch
Grill Deck Sundeck
Screened Porch

What's included in this plan set


See a sample plan set

Please note: If you are building this plan in the state of Michigan, please give us a call to confirm availability. The designer has some geographic restrictions in Michigan.

All plans are drawn at ¼” scale or larger and include :Plans are typically drawn to ¼” scale and include:

  • Foundation Plan(s): Drawn to 1/4" scale, this page shows all necessary notations and dimensions including support columns, walls and excavated and unexcavated areas.
  • Floor Plan(s): Detailed plans, drawn to 1/4" scale for each level showing room dimensions, wall partitions, windows, etc.
  • Exterior Elevations: A blueprint picture of all four sides showing exterior materials and measurements.
  • Overhead Roof Plan(s): A view of the home from above showing roof pitch, peaks, valleys, and other details.
  • Cross Section(s): A vertical cutaway view of the house from roof to foundation showing details of framing, construction, flooring and roofing. Important: If you are ordering a CAD set, or Right-Reading Reverse on this plan, please allow two weeks for delivery based on the current design schedule.
  • Construction Notes and Detail(s): Shows basic parts and assemblies recommended for the home so the builder can see how things come together.

* See important information before purchasing

Pricing


Plan Options

PDF Set

Best Value!
$1596.00
PDF plan sets are best for fast electronic delivery and inexpensive local printing.

CAD Set

$2796.00
For use by design professionals to make substantial changes to your house plan and inexpensive local printing.

Foundation Options

Crawlspace

$0.00
Ideal for semi-sloped or level lot, home can be built off of grade, typically 18” - 48”.

*Options with a fee may take time to prepare. Please call to confirm.

Framing Options

Wood 2x6

$0.00
Wood 2x6 Exterior Walls

*Options with a fee may take time to prepare. Please call to confirm.

Additional Options

Right-Reading Reverse

$156.00
Choose this option to reverse your plans and to have the text and dimensions readable.

Audio Video Design

$132.00
Receive an overlay sheet with suggested placement of audio and video components.

Comprehensive Material List

$316.00
A complete list of building supplies needed to construct the infrastructure of your new house, plus an overlay of materials shown directly on your PDF (foundation to rooftop with interior and exterior materials), and a detailed, itemized door and window schedule showing all sizes and types. Please allow 5-7 Business Days for completion. Note, the Comprehensive list is only available with a PDF purchase. The Comprehensive list can be ordered no matter what additional plan options you have selected.

Construction Guide

$31.20
Educate yourself about basic building ideas with these four detailed diagrams that discuss electrical, plumbing, mechanical, and structural topics.

Lighting Design

$132.00
Receive an overlay sheet with suggested placement of lighting fixtures.

*Options with a fee may take time to prepare. Please call to confirm.

Unless you buy an “unlimited” plan set or a multi-use license you may only build one home from a set of plans. Please call to verify if you intend to build more than once. Plan licenses are non-transferable and cannot be resold.

Meet the Designer

Visbeen Architects, Inc

Visbeen Architects, Inc - Houseplans.com
At Visbeen Architects, every detail of your home is paramount. From the views and focal points to the flow between spaces, we ensure design excellence in every space. Led by Wayne Visbeen, AIA, our Michigan and Florida-based teams collaborate closely with homeowners to bring their unique visions to life. Our residential portfolio showcases a diverse range of designs, from contemporary urban residences to classic waterfront estates, all exemplifying our commitment to beautiful, buildable designs customized for the client's individual lifestyle. Inspired by custom details and timeless architectural styles, our designs blend classic craftsmanship with modern living. With over 2,500 homes designed and numerous national awards, including recognition from the National Association of Home Builders (NAHB) and the American Institute of Building Design, Visbeen Architects is dedicated to enhancing lives through innovative and efficient architectural solutions.

Other Plans By This Designer

See all plans by
Visbeen Architects, Inc

Need help? Let our friendly experts help you find the perfect plan!

Contact us now for a free consultation.