Don't lose your saved plans! 
Create an account to access your saves whenever you want. See our Terms & Conditions and Privacy Policy.
OR

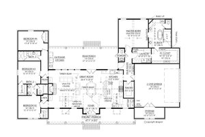
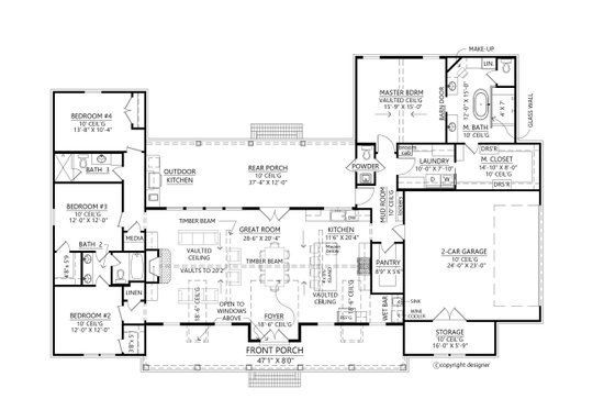
Farmhouse House Plan 1074-39 2534 Sq Ft, 4 Bed, 3.5 Bath, 1 Floor, 2 Garage

Key Specs
  • 4
    Beds
  • 3.5
    Baths
  • 1
    Floors
  • 2
    Garages
  • 2534
    Square Feet
This farmhouse design floor plan is 2534 sq ft and has 4 bedrooms and 3.5 bathrooms.

Questions on this plan?

New to the process and looking for some help to kick things off? Let us know a bit about your plans and we’ll be happy to help.

Budget & Customization Tools

Modify icon
Customize this Plan
Tell us about your desired changes and we can prepare an estimate.
Cost to Build icon
Cost to Build Report
A personalized estimate based on your location, plan, & materials.
Cost to Build icon
Residential Construction Guide
This downloadable, 26-page guide is full of diagrams and details about plumbing, electrical, and more.

Full specs & Features

Basic Features

Bedrooms: 4
Baths: 3.5
Stories: 1
Garages: 2

Dimension

Depth: 56' 1"
Height: 26' 5"
Width: 87' 2"

Area

Total: 2534 sq/ft
Garage: 584 sq/ft
Main Floor: 2534 sq/ft
Porch: 784 sq/ft
Storage: 101 sq/ft
* Total Square Footage typically only includes conditioned space and does not include garages, porches, bonus rooms, or decks.

Ceiling

Garage Ceiling: 10'
Main Ceiling: 10'

Roof

Primary Pitch: 10:12
Roof Framing: stick
Roof Type: SS Metal roof
Secondary Pitch: 12:12

Exterior Wall Framing

Exterior Wall Finish: Hardie board
Framing: 2x4

Bedroom Features

Main Floor Bedrooms
Main Floor Master Bedroom
Split Bedrooms
Walk In Closet

Kitchen Features

Kitchen Island
Kitchenette Wet Bar
Walk In Pantry Cabinet Pantry

Additional Room Features

Great Room Living Room
Main Floor Laundry
Media Room
Mud Room
Storage Area

Garage Features

Side Entry Garage

Outdoor Spaces

Covered Front Porch
Covered Rear Porch
Outdoor Kitchen Grill

More

Additional Half Bath

What's Included

All plans are drawn at ¼” scale or larger and include :

  • Foundation Plan: This page shows all necessary notations and dimensions including support columns, walls, and excavated/unexcavated areas.
  • Exterior Elevations: Views of the home from all four sides showing exterior materials and measurements.
  • Floor Plan(s): Detailed plans for each level showing room dimensions, wall partitions, windows and doors, etc.
  • Cross Section: A slice of the home from roof to foundation, showing important details like stairs and wall construction.
  • Overhead Roof Plan(s): A view of the home from above showing roof pitch, peaks, valleys, and other details.
  • Construction Notes and Details: Shows the builder how things come together, like walls, the chimney, insulation, and more.

FAQs

Are designs on Houseplans ready to submit to my building department for permitting?

It depends on where you're building. Our plans contain enough information for a professional builder to construct your home, but your local government may require additional information before permitting. We strongly advise that you talk with your builder before you get started. If you are building for yourself, we recommend visiting your local building department to start your diligence. Read more here.

Can I make changes to a plan?

Absolutely! Our modification service allows you to customize almost anything - whether it's adding an extra garage bay, adjusting square footage, changing the roof pitch, or more, the plan modification service is a great value and can be completed quickly. Additionally, if you purchase an electronic plan set (PDF or CAD), you may have the option to make changes locally. CAD files offer the most flexibility for custom edits. Just let us know what you're thinking, and we’ll provide an estimate and timeframe to get started. Learn more here.

How much does a house cost to build?

Find out! Build costs vary based on the size of the home, materials used, and local rates for goods and labor. Our Cost to Build report is a great way to get some basic costs dialed in before you order your plans. Just plug in your postal code, select your desired construction quality, and we'll calculate for you.

Learn more about Cost to Build reports here.

Can I trust Houseplans?

Founded in 2004, Houseplans works with hundreds of architects and designers to offer their plans at a fraction of the price of custom design. Houseplans has an "Excellent" rating on TrustPilot.

Read more about us here.

Does Houseplans offer live support?

Yes, Houseplans has a dedicated team of house plan advisors with decades of experience between them. You can reach them by calling, emailing, filling out a form on the page of a plan that you like, or going to the Contact Us page. We're available to talk every day, even on weekends.

Builder Advantage Home

Builder Advantage Program

Are you a Pro Builder? Join the club, save 5% on your first order, get exclusive discounts, and more.

Learn More

You may also like

Save Plan
Farmhouse

Plan 430-422

$1445.00

beds3

bd

baths2.5

ba

stories1

story

square feet2494

sq ft

Save Plan
Craftsman

Plan 1064-302

$1250.00

beds3

bd

baths2.5

ba

stories1

story

square feet2489

sq ft

Recently viewed plans

Exterior - Front Elevation for Farmhouse House Plan #1074-39 - 4 bed, 3.5 bath
Save Plan

Plan 1074-39

$1345.00

beds4

bd

baths3.5

ba

stories1

story

square feet2534

sq ft

Signature
Exterior - Front Elevation for Modern House Plan #928-366 - 5 bed, 4.5 bath
Save Plan

Plan 928-366

$1995.00

beds5

bd

baths4.5

ba

stories3

stories

square feet5333

sq ft

Exterior - Front Elevation for Farmhouse House Plan #120-284 - 3 bed, 3.5 bath
Save Plan

Plan 120-284

$1795.00

beds3

bd

baths3.5

ba

stories1

story

square feet3010

sq ft

Exterior - Front Elevation for Ranch House Plan #1010-1 - 2 bed, 2 bath
Save Plan

Plan 1010-1

$1400.00

beds2

bd

baths2

ba

stories1

story

square feet1167

sq ft

Exterior - Front Elevation for Modern House Plan #932-1293 - 1 bed, 1 bath
Save Plan

Plan 932-1293

$1188.00

beds1

bd

baths1

ba

stories2

stories

square feet847

sq ft

Signature
Exterior - Front Elevation for Farmhouse House Plan #928-369 - 5 bed, 3.5 bath
Save Plan

Plan 928-369

$1995.00

beds5

bd

baths3.5

ba

stories2

stories

square feet4745

sq ft

Exterior - Front Elevation for European House Plan #429-22 - 4 bed, 3.5 bath
Save Plan

Plan 429-22

$900.00

beds4

bd

baths3.5

ba

stories2

stories

square feet2999

sq ft

Exterior - Front Elevation for Farmhouse House Plan #117-929 - 1 bed, 2 bath
Save Plan

Plan 117-929

$1040.00

beds1

bd

baths2

ba

stories2

stories

square feet1696

sq ft

Signature
Exterior - Front Elevation for European House Plan #929-830 - 3 bed, 2.5 bath
Save Plan

Plan 929-830

$1525.00

beds3

bd

baths2.5

ba

stories1

story

square feet1898

sq ft