Traditional Style House Plan - 5 Beds 4.5 Baths 4095 Sq/Ft Plan #927-993 - Houseplans.com
Search
REGISTER LOGIN SAVED No Saved Plans CART  Cart Empty
Don't lose your saved plans! Create an account to access your saves whenever you want. See our Terms & Conditions and Privacy Policy.
OR
15% OFF TODAY FOR FIRST 25 CUSTOMERS
Plan 927-993
Photographs may show modified designs.
Home  >  Style  >  Traditional

Traditional House Plan 927-993

Key Specs


Plan Sq Ft

4095
sq ft

Plan Bedrooms

5
Beds

Plan Bathrooms

4.5
Baths

Plan Floors

2
Floors

Plan Garages

3
Garages

Questions? Get Personalized Help
Select Plan Set Options
What's included?
$250.75
$140.25
$33.15
$140.25
Subtotal
NOW $2673.25
You save $471.75
(15% savings)
Sale ends soon!
Best Price Guaranteed

Or order by phone: 1-800-913-2350
Questions? Get Personalized Help
 

 
Hours:
Ready for Your Call 7 Days a Week
Every Day 7 am - 8:30 pm Eastern

See Terms & Conditions and Privacy Policy.

Thanks for your question.

We will be in touch shortly.

Wow!
Cost to Build Reports
$1.99 with Code
CTBFALL (Limit 1)
Our Cost to Build Report gives you a personalized estimate for building your home, based on your location, plan, and materials.

Residential Construction Guide

Learn Building Basics

This downloadable, 26-page guide is full of diagrams and details about plumbing, electrical, and more.

Key Specs


Plan Sq Ft

4095
sq ft

Plan Bedrooms

5
Beds

Plan Bathrooms

4.5
Baths

Plan Floors

2
Floors

Plan Garages

3
Garages

Plan Description


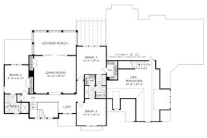
Steeply pitched gables and the use of exterior materials unite to create an interesting, modern design. Fieldstone adorns the core while clapboard and board-and-batten sidings complete the cladding. The main floor is loaded with features and amenities to satisfy even the most discerning tastes. The island kitchen anchors the living spaces and is open to the grand room and breakfast areas. The master suite is secluded and is perfectly located to take full advantage of rear facing views. The master bath has a free standing tub and a large shower as well as large walk-in closets for him and her. The guest suite has a private bath and can also double as a home work space. The outdoor decks and covered porches provide additional space to enjoy and entertain when the weather permits. The upper level contains three additional bedrooms for a growing family. The game room is the perfect space for game tables, media and large lounging furnishings and also opens onto an upper level covered porch. The bonus room has its own access via a rear stairway and could be adapted into an au pair suite or other purposes.

This plan can be customized!

Tell us about your desired changes so we can prepare an estimate for the design service. Click the button to submit your request for pricing, or call 1-800-913-2350.

Floor Plans


Floor Plan - Main Floor

Reverse
houseplans LOGO

BUILDER Advantage Program

PRO BUILDERS

Join the club and save 5% on your first order.
PLUS download exclusive discounts and more.

LEARN MORE

Floor Plan - Upper Floor

Reverse

Full Specs & Features


Basic Features

Bedrooms : 5
Baths : 4.5
Stories: 2
Garages: 3

Dimension

Depth : 61'
Height : 34' 9"
Width : 97'

Area

Total : 4095 sq/ft
Basement : 2590 sq/ft
Bonus : 579 sq/ft
Garage : 932 sq/ft
Main Floor : 2590 sq/ft
Upper Floor : 1505 sq/ft
* Total Square Footage typically only includes conditioned space and does not include garages, porches, bonus rooms, or decks.

Ceiling

Bonus Ceiling : 9'
Ceiling Details : 17' vaulted ceiling in Master Bedroom; 11' 4" beamed ceiling in Grand Room.
Main Ceiling : 10'
Upper Ceiling Ft : 9'

Roof

Primary Pitch : 10:12
Roof Framing : Conventional
Roof Type : Shingle

Exterior Wall Framing

Exterior Wall Finish : Stone/Siding
Framing : 2 x 4

Bedroom Features

Main Floor Bedrooms
Main Floor Master Bedroom
Split Bedrooms
Upstairs Bedrooms
Walk In Closet

Kitchen Features

Breakfast Nook
Eating Bar
Kitchen Island
Walk In Pantry Cabinet Pantry

Additional Room Features

Den Office Study Computer
Great Room Living Room
Hobby Rec Room Game Room
Loft
Main Floor Laundry
Mud Room
Unfinished Future Space

Garage Features

Front Entry Garage
Side Entry Garage

Entryway

Friend S Entry

Lot Characteristics

Suited For Corner Lot

Outdoor Spaces

Covered Front Porch
Covered Rear Porch

More

Jack & Jill Bath

What's included in this plan set


See a sample plan set
Plans are typically drawn to ¼” scale and include:
  • Foundation Plan(s): Every plan is available with a walkout style basement (three masonry walls and one wood framed rear wall with windows and doors). The basement plans are a 1/4" or 3/16" scale layout of unfinished spaces showing only the necessary 2 x 6 wood framed load bearing walls. These plans are completed with dimensions, notes, and door/window sizes. Crawl space and/or slab on grade foundations are available for some plans. All foundation types are not available for all plans.
  • Floor Plan(s): Each plan consists of 1/4" or 3/16" scale floor layouts showing the location of 2x4 walls, doors, windows, plumbing fixtures, cabinetry, stairs and decorative ceilings. These plans are complete with dimensions, notes, door/window sizes and a schematic electrical layout.
  • Exterior Elevations: All plans include the front elevation at 1/4" or 3/16" and the sides and rear elevations at 1/8" scale or 3/32" scale, and the roof plan at 1/8" or 3/32" scale. These elevations show and note the exterior finished materials of the house.
  • Interior Elevations: Available for some plans. The kitchen and bath elevations show the arrangement and size of each cabinet and other fixtures in the room. These drawings give basic information that can be used to create customized layouts with a cabinet manufacturer. Details are included for many interior and exterior conditions to provide more specific information for their construction.
  • Overhead Roof Plan(s): A view of the home from above showing roof pitch, peaks, valleys, and other details.
  • Cross Section(s): The building sections are drawings which take vertical cuts through the house and the stairs showing floor, ceiling and roof height information.
  • Detail Sheet(s): Each plan order includes one set of typical detail sheets that show foundation details, typical wall sections and other framing details. Also included on the detail sheets are miscellaneous interior trim and fireplace details that can be used to customize the home.
  • Construction Notes / Detail(s): Shows basic parts and assemblies recommended for the home so the builder can see how things come together.
  • Framing Detail(s): Framing plans are not available for all home plans. If included, the framing layout is intended to be a suggested layout only. Design loads and weather conditions vary by region. As a result the size, spacing, and layout of all structural elements in this home design may need approval by a structural engineer or code official based on your specific site location. Each floor framing plan shows each floor joist indicating the size, spacing and length. All beams are labeled and sized. All of the joist are counted and coordinated with the material list (when available). Each framing plan sheet includes any framing details that are needed (tray details, connection details, etc.). All of the framing is designed using conventional 2 X 10 floor joist or wood I-Joist, depending on the span conditions of each home plan. The ceiling joist framing plan shows each ceiling joist indicating the size, spacing and length. All beams are labeled and sized. All of the joist are counted and coordinated with the material list (when available). The roof framing plan shows each rafter, valley, hip and ridge indicating the size, spacing and length. All beams are labeled and sized. All of the joist are counted and coordinated with the material list (when available).
* See important information before purchasing

Pricing


Plan Options

PDF Set

Best Value!
$2673.25
PDF plan sets are best for fast electronic delivery and inexpensive local printing.

5 Copy and PDF Set

$2970.75
5 printed plan sets mailed to you plus PDF plan sets are best for fast electronic delivery and inexpensive local printing.

PDF Unlimited Build

$3106.75
PDF plan sets are best for fast electronic delivery and inexpensive local printing.

Five Copy and PDF Set Unlimited Build

$3404.25
5 printed plan sets mailed to you plus PDF plan sets are best for fast electronic delivery and inexpensive local printing.

CAD Unlimited Build

$4101.25
For use by design professionals to make substantial changes to your house plan and inexpensive local printing.

Foundation Options

Daylight Basement

$0.00
Ideal for sloping lot, lower level of home partially underground.

*Options with a fee may take time to prepare. Please call to confirm.

Additional Options

Right-Reading Reverse

$250.75
Choose this option to reverse your plans and to have the text and dimensions readable.

Audio Video Design

$140.25
Receive an overlay sheet with suggested placement of audio and video components.

Construction Guide

$33.15
Educate yourself about basic building ideas with these four detailed diagrams that discuss electrical, plumbing, mechanical, and structural topics.

Lighting Design

$140.25
Receive an overlay sheet with suggested placement of lighting fixtures.

*Options with a fee may take time to prepare. Please call to confirm.

Unless you buy an “unlimited” plan set or a multi-use license you may only build one home from a set of plans. Please call to verify if you intend to build more than once. Plan licenses are non-transferable and cannot be resold.

Other Plans By This Designer

See all plans by
this designer

Need help? Let our friendly experts help you find the perfect plan!

Contact us now for a free consultation.