Cottage Style House Plan - 3 Beds 2.5 Baths 1687 Sq/Ft Plan #443-11 - Houseplans.com
Search
REGISTER LOGIN SAVED No Saved Plans CART  Cart Empty
Don't lose your saved plans! Create an account to access your saves whenever you want. See our Terms & Conditions and Privacy Policy.
OR
15% OFF THIS PLAN TODAY
Photographs may show modified designs.
Home  >  Style  >  Cottage

Cottage House Plan 443-11

Key Specs


Plan Sq Ft

1687
sq ft

Plan Bedrooms

3
Beds

Plan Bathrooms

2.5
Baths

Plan Floors

2
Floors

Plan Garages

0
Garages

Questions? Get Personalized Help
Select Plan Set Options
What's included?
$85.00
$33.15
$85.00
Subtotal
NOW $1076.10
You save $189.90
(15% savings)
Sale ends soon!
Best Price Guaranteed

Or order by phone: 1-800-913-2350
Questions? Get Personalized Help
 

 
Hours:
Ready for Your Call 7 Days a Week
Every Day 7 am - 8:30 pm Eastern

See Terms & Conditions and Privacy Policy.

Thanks for your question.

We will be in touch shortly.

Wow!
Cost to Build Reports
$1.99 with Code
CTB2026 (Limit 1)
Our Cost to Build Report gives you a personalized estimate for building your home, based on your location, plan, and materials.

Residential Construction Guide

Learn Building Basics

This downloadable, 26-page guide is full of diagrams and details about plumbing, electrical, and more.

Key Specs


Plan Sq Ft

1687
sq ft

Plan Bedrooms

3
Beds

Plan Bathrooms

2.5
Baths

Plan Floors

2
Floors

Plan Garages

0
Garages

Plan Description


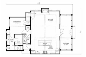
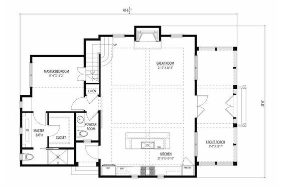
This Cottage house plan does a good job of making a small house feel big, although the end user might want to add a little extra storage space to the plan. Exterior details are simple yet attractive. - Fine Homebuilding Magazine This compact 1,687 sq. ft. 3 bedroom 2.5 bath home combines practicality and charm and would work as a vacation cabin or year round home. The 9- by 26-foot front porch is spacious enough to function as an outdoor room, expanding the house in good weather. Up two steps from the ground, it has just enough elevation to be connected to, but still feel separate from, the street. Occupying one end of the great room, the kitchen is defined by an island that includes a sink and an eating bar. The back door opens to the kitchen at the side of the house. The ground floor master suite includes a walk-in closet and a trough sink. The stairs up to the second floor flair across one corner of the great room and can double as seating. Upstairs the washer and dryer occupy an alcove in the hall between the two bedrooms.

This plan can be customized!

Tell us about your desired changes so we can prepare an estimate for the design service. Click the button to submit your request for pricing, or call 1-800-913-2350.

Floor Plans


Floor Plan - Main Floor

houseplans LOGO

BUILDER Advantage Program

PRO BUILDERS

Join the club and save 5% on your first order.
PLUS download exclusive discounts and more.

LEARN MORE

Floor Plan - Upper Floor

Full Specs & Features


Basic Features

Bedrooms : 3
Baths : 2.5
Stories: 2
Garages: 0

Dimension

Depth : 48' 6"
Height : 28' 6"
Width : 34'

Area

Total : 1687 sq/ft
Main Floor : 1106 sq/ft
Upper Floor : 581 sq/ft
* Total Square Footage typically only includes conditioned space and does not include garages, porches, bonus rooms, or decks.

Ceiling

Main Ceiling : 9'
Upper Ceiling Ft : 10'

Bedroom Features

Main Floor Bedrooms
Main Floor Master Bedroom
Split Bedrooms
Upstairs Bedrooms
Walk In Closet

Kitchen Features

Eating Bar
Kitchen Island

Additional Room Features

Great Room Living Room
Storage Area
Upstairs Laundry

Garage Features

Detached Garage

Lot Characteristics

Suited For Corner Lot
Suited For View Lot

Outdoor Spaces

Covered Front Porch

What's included in this plan set


See a sample plan set

All plans are drawn at ¼” scale or larger and include :

  • Foundation Plan: This page shows all necessary notations and dimensions including support columns, walls, and excavated/unexcavated areas.
  • Exterior Elevations: Views of the home from all four sides showing exterior materials and measurements.
  • Floor Plan(s): Detailed plans for each level showing room dimensions, wall partitions, windows and doors, etc.
  • Cross Section: A slice of the home from roof to foundation, showing important details like stairs and wall construction.
  • Overhead Roof Plan(s): A view of the home from above showing roof pitch, peaks, valleys, and other details.
  • Construction Notes and Details: Shows the builder how things come together, like walls, the chimney, insulation, and more.
* See important information before purchasing

Pricing


Plan Options

PDF Set

Best Value!
$1076.10
PDF plan sets are best for fast electronic delivery and inexpensive local printing.

CAD Set

$2150.93
For use by design professionals to make substantial changes to your house plan and inexpensive local printing.

Foundation Options

Pier

$0.00
Ideal for lot conditions where the home needs to be off the ground. A pier foundation consists of wood posts or concrete piers connected by beams to support the home. Some lots may require drilling deep into bedrock to support the posts.

*Options with a fee may take time to prepare. Please call to confirm.

Additional Options

Audio Video Design

$85.00
Receive an overlay sheet with suggested placement of audio and video components.

Construction Guide

$33.15
Educate yourself about basic building ideas with these four detailed diagrams that discuss electrical, plumbing, mechanical, and structural topics.

Lighting Design

$85.00
Receive an overlay sheet with suggested placement of lighting fixtures.

*Options with a fee may take time to prepare. Please call to confirm.

Unless you buy an “unlimited” plan set or a multi-use license you may only build one home from a set of plans. Please call to verify if you intend to build more than once. Plan licenses are non-transferable and cannot be resold.

Meet the Designer

Gulf Coast Cottages

Gulf Coast Cottages - Houseplans.com
"My projects seek to find a balance between the honest use of natural materials and modern sensibilities; creating structures which transcend popular fashion, are built to last and worthy of preservation. These homes evoke a collective memory of traditional architecture, relevant in almost any regional context, adapted to the way American families live today." Inspired by the quality of life along the Gulf Coast, Geoff moved to the Florida Panhandle after earning his professional degree from Cornell University in 1996. A native of Massachusetts, Geoff has spent the ensuing years cultivating his knowledge of the area and its local building traditions. Frustrated by the generic nature of the builder driven housing industry, he founded Geoff Chick & Associates in 2001. Dedicated to serving the needs of his clients with a more intimate collaboration, Geoff specializes in building single-family custom homes which are unique to the site and their occupants. With extensive field construction experience and a substantial portfolio of built work, Geoff continues to create homes which manifest his profound sense of scale and the honest use of materials. His solutions are both pragmatic and poetic, merging established vernacular forms with a modern aesthetic. Geoff is a registered architect in the State of Florida, is certified by the National Council of Architectural Registration Boards, and a member of the American Institute of Architects. Geoff resides in South Walton County with his wife, Shawn and their two children.

Other Plans By This Designer

See all plans by
Gulf Coast Cottages

Browse Similar Plans

Need help? Let our friendly experts help you find the perfect plan!

Contact us now for a free consultation.