Craftsman Style House Plan - 4 Beds 3.5 Baths 4732 Sq/Ft Plan #48-233 - Houseplans.com
Search
REGISTER LOGIN SAVED No Saved Plans CART  Cart Empty
Don't lose your saved plans! Create an account to access your saves whenever you want. See our Terms & Conditions and Privacy Policy.
OR
Home  >  Style  >  Craftsman

Craftsman House Plan 48-233

Key Specs


Plan Sq Ft

4732
sq ft

Plan Bedrooms

4
Beds

Plan Bathrooms

3.5
Baths

Plan Floors

1
Floors

Plan Garages

4
Garages

Questions? Get Personalized Help
Select Plan Set Options
What's included?
$250.00
Additional Construction Sets$60.00/each

Additional hard copies of the plan (can be ordered at the time of purchase and within 90 days of the purchase date).

$165.00
$395.00
$39.00
Mirror Reversed Sets$250.00

Printed sets showing plan in reverse, text and dimensions will be backwards.

Subtotal
$2614.00
Best Price Guaranteed

Or order by phone: 1-800-913-2350
Questions? Get Personalized Help
 

 
Hours:
Ready for Your Call 7 Days a Week
Every Day 7 am - 8:30 pm Eastern

See Terms & Conditions and Privacy Policy.

Thanks for your question.

We will be in touch shortly.

Wow!
Cost to Build Reports
$1.99 with Code
CTBFALL (Limit 1)
Our Cost to Build Report gives you a personalized estimate for building your home, based on your location, plan, and materials.

Residential Construction Guide

Learn Building Basics

This downloadable, 26-page guide is full of diagrams and details about plumbing, electrical, and more.

Key Specs


Plan Sq Ft

4732
sq ft

Plan Bedrooms

4
Beds

Plan Bathrooms

3.5
Baths

Plan Floors

1
Floors

Plan Garages

4
Garages

Plan Description


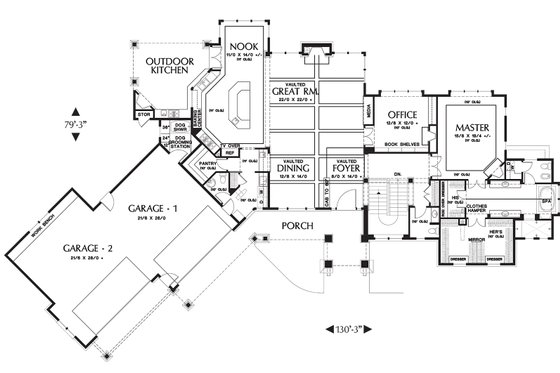
ROOM DIMENSIONS LOWER LEVEL Theater 22/0x19/0 10' ceiling Wine Cellar 7/6x7/10 10' ceiling Bedroom #2 12/6x14/8 +/- Closet 2/6x6/0 Bedroom #3 12/0x12/6 10' ceiling Closet 2/6x6/0 Bedroom #4 14/0x13/0 10' ceiling Entry 7/0x5/0 Closet 6/6x2/6 Bath 16/0x4/0 Shower 7/0x6/0 Hallway 26/0x4/0 10' ceiling Hallway Bathroom 10' ceiling Dressing 6/6x5/0 Toilet/Tub 7/6x8/0 Kitchenette 14/0x13/0 10' ceiling Unfinished Basement (Right Bottom of plan) 25/0x26/0 (Left side of plan) 17/0x35/0 MAIN FLOOR Garage #1 21/6x26/0 Garage #2 21/6x28/0 + Pantry 7/0x7/0 10' ceiling Utility Room 6/0x10/0 10' ceiling Nook 11/0x14/0 11' ceiling Kitchen 17/0x16/0 11' ceiling Dog Grooming 9/0x9/0 Great Room 22/0x22/0 Vaulted ceiling Dining Room 12/8x14/0 Vaulted ceiling Foyer 8/0x14/0 Vaulted ceiling Office 12/8x12/0 10' ceiling Master Bed 15/8x19/4 11' ceiling His Closet 6/0x7/0 Her Closet 17/0x11/6 Toilet 7/0x6/0 Shower 9/0x4/0 Wash/Dry 3/6x4/6 Hallway Bath 7/0x7/0 Closet 2/6x6/0

This plan can be customized!

Tell us about your desired changes so we can prepare an estimate for the design service. Click the button to submit your request for pricing, or call 1-800-913-2350.

Floor Plans


Floor Plan - Main Floor

Reverse
houseplans LOGO

BUILDER Advantage Program

PRO BUILDERS

Join the club and save 5% on your first order.
PLUS download exclusive discounts and more.

LEARN MORE

Floor Plan - Lower Floor

Reverse

Full Specs & Features


Basic Features

Bedrooms : 4
Baths : 3.5
Stories: 1
Garages: 4

Dimension

Depth : 80'
Height : 24'
Width : 131'

Area

Total : 4732 sq/ft
Basement Living: 1830 sq/ft
First Floor: 2902 sq/ft
* Total Square Footage typically only includes conditioned space and does not include garages, porches, bonus rooms, or decks.

Ceiling

Lower Ceiling : 10'
Main Ceiling : 10'

Roof

Roof Type : Shingle

Exterior Wall Framing

Exterior Wall Finish : Siding
Framing : 2"x6"

Bedroom Features

Main Floor Master Bedroom
Walk In Closet

Kitchen Features

Breakfast Nook
Kitchen Island
Walk In Pantry Cabinet Pantry

Additional Room Features

Den Office Study Computer
Great Room Living Room
Media Room
Storage Area
Unfinished Future Space

Garage Features

Oversized Garage
Side Entry Garage

Lot Characteristics

Suited For Sloping Lot
Suited For View Lot

Outdoor Spaces

Covered Front Porch
Covered Rear Porch

More

Jack & Jill Bath

Rooms

Bedroom 2:

183 sq/ft width 12' 6" x depth 14' 8"

Bedroom 3:

150 sq/ft width 12' x depth 12' 6"

Bedroom 4:

182 sq/ft width 14' x depth 13'

Dining Room:

177 sq/ft width 12' 8" x depth 14'

Foyer:

128 sq/ft width 8' x depth 16'

Garage:

559 sq/ft width 21' 6" x depth 26'

Garage Two:

559 sq/ft width 21' 6" x depth 26'

Great Room:

484 sq/ft width 22' x depth 22'

Master Suite:

161 sq/ft width 15' 8" x depth 10' 4"

Nook:

154 sq/ft width 11' x depth 14'

Office:

152 sq/ft width 12' 8" x depth 12'

Theatre Room:

418 sq/ft width 22' x depth 19'

What's included in this plan set


See a sample plan set
Plans are typically drawn to ¼” scale and include:
  • Foundation Plan(s): The foundation page dimensions, concrete walls, footings, pads, posts, beams, bearing walls, and any stepped foundation information along with any retaining wall info (schematic only). A typical wall section for the home is also usually included on this page (if not, it is elsewhere in your plan set, as space allows). If your plan features a poured concrete slab rather than a basement or crawlspace, the foundation page shows footings and details for the slab, and includes plumbing locations. If you choose the optional Slab foundation, the slab foundation will not be reflected in the plan sections.
  • Floor Plan(s): Exterior and interior wall framing, and windows/doors are dimensioned. Room sizes are indicated and any beams, posts and structural bearing points are called out. The floorplans include an electrical legend, and electrical fittings, lights and outlets are shown.
  • Exterior Elevations: In addition to the front exterior, your drawing set will include drawings of the rear and sides of your house as well. These drawings give notes on exterior materials and finishes. Particular attention is given to cornice detail, brick and stone accents, or other finish items that make your home unique.
  • Overhead Roof Plan(s): Roof framing or truss directions are shown, slope directions are indicated and structural members are sized and called out if applicable. The gravity loads used to calculate the rafters, beams and posts are indicated , and we also show gutters, downspouts, and any roof venting required for your home.
  • Cross Section(s): A slice of the home from roof to foundation, showing relationships between floors, roof, and foundation.
  • Building Section(s): Building sections show changes in floor, ceiling, or roof height, and the relationship of one level to another. Our section pages also show how the stairs are calculated (if there are some!) and depict roof and foundation members. We try and draw sections to show the most useful information — choosing locations where there are elements you or your contractor might need clarification on.
  • Construction Notes and Detail(s): Your home comes detailed to meet the requirements of the latest adopted version of the ‘International Residential Code’, and our notes and details pages outline all the elements applicable to the design of your home. Compliance with further standards may need to be incorporated into your plan set, depending the requirements of your building department — these are usually done locally.
  • Framing Detail(s): Exterior and interior wall framing, and windows/doors are dimensioned. Room sizes are indicated and any beams, posts and structural bearing points are called out. The floorplans include an electrical legend, and electrical fittings, lights and outlets are shown. Floor Plans will also indicate crossection details (provided on the sections page) and show any special framing details applicable to the design. Cabinet elevations are included for kitchen and bathrooms; some designs feature cabinet elevations for design–related built–ins too.
* See important information before purchasing

Pricing


Plan Options

PDF Set

Best Value!
$2614.00
PDF plan sets are best for fast electronic delivery and inexpensive local printing.

5 Copy and PDF Set

$2914.00
5 printed plan sets mailed to you plus PDF plan sets are best for fast electronic delivery and inexpensive local printing.

CAD Single Build

$5228.00
For use by design professionals to make substantial changes to your house plan and inexpensive local printing.

Foundation Options

Daylight Basement

$0.00
Ideal for sloping lot, lower level of home partially underground.

*Options with a fee may take time to prepare. Please call to confirm.

Framing Options

Wood 2x6

$0.00
Wood 2x6 Exterior Walls

*Options with a fee may take time to prepare. Please call to confirm.

Additional Options

Right-Reading Reverse

$250.00
Choose this option to reverse your plans and to have the text and dimensions readable.

Additional Construction Sets

$60.00
Additional hard copies of the plan (can be ordered at the time of purchase and within 90 days of the purchase date).

Audio Video Design

$165.00
Receive an overlay sheet with suggested placement of audio and video components.

Comprehensive Material List

$395.00
A complete list of building supplies needed to construct the infrastructure of your new house, plus an overlay of materials shown directly on your PDF (foundation to rooftop with interior and exterior materials), and a detailed, itemized door and window schedule showing all sizes and types. Please allow 5-7 Business Days for completion. Note, the Comprehensive list is only available with a PDF purchase. The Comprehensive list can be ordered no matter what additional plan options you have selected.

Construction Guide

$39.00
Educate yourself about basic building ideas with these four detailed diagrams that discuss electrical, plumbing, mechanical, and structural topics.

Mirror Reversed Sets

$250.00
A mirror-reversed set is a printed copy of your house, resulting in the same image you would see if you held the drawing up to a mirror. Everything, including the text, is backward in relation to the original design. These kinds of drawing are typically used to reorient an original plan more advantageously on a site, either because the homeowner prefers it that way or because of limitations of the site itself. Note: Mirror reverse sets are only available with a 5 copy or 8 copy set. With a Reproducible, PDF, or CAD set, you can print mirrored copies locally. In addition: 5 Copy set selected, should only allow 4 mirrored sets to be selected. 8 Copy set selected, should only allow 7 mirrored sets to be selected.

*Options with a fee may take time to prepare. Please call to confirm.

Unless you buy an “unlimited” plan set or a multi-use license you may only build one home from a set of plans. Please call to verify if you intend to build more than once. Plan licenses are non-transferable and cannot be resold.

Browse Similar Plans

Need help? Let our friendly experts help you find the perfect plan!

Contact us now for a free consultation.