Traditional Style House Plan - 5 Beds 5.5 Baths 5280 Sq/Ft Plan #928-262 - Houseplans.com
Search
REGISTER LOGIN SAVED No Saved Plans CART  Cart Empty
Don't lose your saved plans! Create an account to access your saves whenever you want. See our Terms & Conditions and Privacy Policy.
OR
15% OFF: SALE ENDS SOON!
Home  >  Style  >  Traditional

Traditional House Plan 928-262

Key Specs


Plan Sq Ft

5280
sq ft

Plan Bedrooms

5
Beds

Plan Bathrooms

5.5
Baths

Plan Floors

2
Floors

Plan Garages

3
Garages

Questions? Get Personalized Help
Select Plan Set Options
What's included?
$165.75
$140.25
$420.75
$33.15
$140.25
Subtotal
NOW $1695.75
You save $299.25
(15% savings)
Sale ends soon!
Best Price Guaranteed

Or order by phone: 1-800-913-2350
Questions? Get Personalized Help
 

 
Hours:
Ready for Your Call 7 Days a Week
Every Day 7 am - 8:30 pm Eastern

See Terms & Conditions and Privacy Policy.

Thanks for your question.

We will be in touch shortly.

Wow!
Cost to Build Reports
$1.99 with Code
CTB2026 (Limit 1)
Our Cost to Build Report gives you a personalized estimate for building your home, based on your location, plan, and materials.

Residential Construction Guide

Learn Building Basics

This downloadable, 26-page guide is full of diagrams and details about plumbing, electrical, and more.

Key Specs


Plan Sq Ft

5280
sq ft

Plan Bedrooms

5
Beds

Plan Bathrooms

5.5
Baths

Plan Floors

2
Floors

Plan Garages

3
Garages

Plan Description


Symmetry and the use of authentic materials create a stunning exterior for this design by Visbeen Architects. The home’s main level is nearly surrounded on all four sides by a wraparound porch, which offers a screened-in section at the back of the house and an outdoor bar, easily served from the kitchen inside. The living, dining, and kitchen areas share this level with the spacious master suite. Upstairs, guests will be delighted to find two huge bedroom suites, along with an additional bedroom or living room, loft area, and laundry facilities. The lower level is all about friends and family. A full bar, entertainment center, billiards, guest suite, and six-bed bunk room join the outdoor living spaces to create a relaxing retreat.

This plan can be customized!

Tell us about your desired changes so we can prepare an estimate for the design service. Click the button to submit your request for pricing, or call 1-800-913-2350.

Floor Plans


Floor Plan - Main Floor

Reverse
houseplans LOGO

BUILDER Advantage Program

PRO BUILDERS

Join the club and save 5% on your first order.
PLUS download exclusive discounts and more.

LEARN MORE

Floor Plan - Upper Floor

Reverse

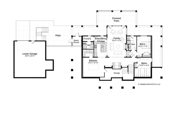
Floor Plan - Lower Floor

Reverse

Floor Plan - Other Floor

Reverse

Full Specs & Features


Basic Features

Bedrooms : 5
Baths : 5.5
Stories: 2
Garages: 3

Dimension

Depth : 62'
Height : 29' 2"
Width : 118'

Area

Total : 5280 sq/ft
Basement Living: 1766 sq/ft height 10'
Bonus: 389 sq/ft
First Floor: 2052 sq/ft height 9'
Second Floor: 1462 sq/ft height 8'
* Total Square Footage typically only includes conditioned space and does not include garages, porches, bonus rooms, or decks.

Roof

Primary Pitch : 12:12
Roof Framing : Truss
Roof Type : Asphalt

Exterior Wall Framing

Exterior Wall Finish : Siding/Stone
Framing : Wood - 2x6

Bedroom Features

Fireplace
Formal Dining Room
Guest Suite
Main Floor Master Bedroom
Split Bedrooms
Walk In Closet

Kitchen Features

Kitchen Island
Kitchenette Wet Bar

Additional Room Features

Den Office Study Computer
Family Room Keeping Room
Great Room Living Room
Hobby Rec Room Game Room
Loft
Main Floor Laundry
Mud Room
Open Floor Plan
Sunroom
Unfinished Future Space
Vaulted / Cathedral Ceilings

Garage Features

Front Entry Garage
Side Entry Garage

Outdoor Spaces

Balcony
Courtyard
Covered Front Porch
Covered Rear Porch
Deck
Screened Porch
Wrap Around Porch

Rooms

2nd floor baths:

width 7' x depth 10' 6"

Bedroom 2:

300 sq/ft width 25' x depth 13' 6"

Bedroom 3:

300 sq/ft width 25' x depth 13' 6"

Bedroom 4:

182 sq/ft width 16' 6" x depth 11'

Bedroom 5:

202 sq/ft width 15' 6" x depth 13'

Billiards:

261 sq/ft width 15' 6" x depth 16' 10"

Bonus:

389 sq/ft width 29' x depth 13' 6"

Dining:

214 sq/ft width 10' 8" x depth 20'

Entertaining Kitchen:

165 sq/ft width 16' 6" x depth 10'

Front porch:

width 6' 6" x depth 29' 4"

Garage:

725 sq/ft width 29' x depth 25'

Garage 2:

698 sq/ft width 28' 8" x depth 24' 4"

Kitchen:

200 sq/ft width 10' x depth 20'

Laundry:

width 9' 4" x depth 9' 8"

Living Room:

360 sq/ft width 24' x depth 15'

Living Room:

189 sq/ft width 12' 7" x depth 15'

Master bath:

width 13' 2" x depth 13' 8"

Master Bedroom:

215 sq/ft width 11' 6" x depth 18' 8"

Master closet:

width 7' 6" x depth 13' 8"

Mud room:

width 7' 6" x depth 6'

Powder room:

width 7' 6" x depth 6'

What's included in this plan set


See a sample plan set

Please note: If you are building this plan in the state of Michigan, please give us a call to confirm availability. The designer has some geographic restrictions in Michigan.

All plans are drawn at ¼” scale or larger and include :Plans are typically drawn to ¼” scale and include:

  • Foundation Plan(s): Drawn to 1/4" scale, this page shows all necessary notations and dimensions including support columns, walls and excavated and unexcavated areas.
  • Floor Plan(s): Detailed plans, drawn to 1/4" scale for each level showing room dimensions, wall partitions, windows, etc.
  • Exterior Elevations: A blueprint picture of all four sides showing exterior materials and measurements.
  • Overhead Roof Plan(s): A view of the home from above showing roof pitch, peaks, valleys, and other details.
  • Cross Section(s): A vertical cutaway view of the house from roof to foundation showing details of framing, construction, flooring and roofing. Important: If you are ordering a CAD set, or Right-Reading Reverse on this plan, please allow two weeks for delivery based on the current design schedule.
  • Construction Notes and Detail(s): Shows basic parts and assemblies recommended for the home so the builder can see how things come together.

* See important information before purchasing

Pricing


Plan Options

PDF Set

Best Value!
$1695.75
PDF plan sets are best for fast electronic delivery and inexpensive local printing.

CAD Set

$3395.75
For use by design professionals to make substantial changes to your house plan and inexpensive local printing.

Foundation Options

Daylight Basement

$0.00
Ideal for sloping lot, lower level of home partially underground.

*Options with a fee may take time to prepare. Please call to confirm.

Framing Options

Wood 2x6

$0.00
Wood 2x6 Exterior Walls

*Options with a fee may take time to prepare. Please call to confirm.

Additional Options

Right-Reading Reverse

$165.75
Choose this option to reverse your plans and to have the text and dimensions readable.

Audio Video Design

$140.25
Receive an overlay sheet with suggested placement of audio and video components.

Comprehensive Material List

$420.75
A complete list of building supplies needed to construct the infrastructure of your new house, plus an overlay of materials shown directly on your PDF (foundation to rooftop with interior and exterior materials), and a detailed, itemized door and window schedule showing all sizes and types. Please allow 5-7 Business Days for completion. Note, the Comprehensive list is only available with a PDF purchase. The Comprehensive list can be ordered no matter what additional plan options you have selected.

Construction Guide

$33.15
Educate yourself about basic building ideas with these four detailed diagrams that discuss electrical, plumbing, mechanical, and structural topics.

Lighting Design

$140.25
Receive an overlay sheet with suggested placement of lighting fixtures.

*Options with a fee may take time to prepare. Please call to confirm.

Unless you buy an “unlimited” plan set or a multi-use license you may only build one home from a set of plans. Please call to verify if you intend to build more than once. Plan licenses are non-transferable and cannot be resold.

Meet the Designer

Visbeen Architects, Inc

Visbeen Architects, Inc - Houseplans.com
At Visbeen Architects, every detail of your home is paramount. From the views and focal points to the flow between spaces, we ensure design excellence in every space. Led by Wayne Visbeen, AIA, our Michigan and Florida-based teams collaborate closely with homeowners to bring their unique visions to life. Our residential portfolio showcases a diverse range of designs, from contemporary urban residences to classic waterfront estates, all exemplifying our commitment to beautiful, buildable designs customized for the client's individual lifestyle. Inspired by custom details and timeless architectural styles, our designs blend classic craftsmanship with modern living. With over 2,500 homes designed and numerous national awards, including recognition from the National Association of Home Builders (NAHB) and the American Institute of Building Design, Visbeen Architects is dedicated to enhancing lives through innovative and efficient architectural solutions.

Other Plans By This Designer

See all plans by
Visbeen Architects, Inc

Need help? Let our friendly experts help you find the perfect plan!

Contact us now for a free consultation.