Don't lose your saved plans! 
Create an account to access your saves whenever you want. See our Terms & Conditions and Privacy Policy.
OR

European House Plan 112-227 5322 Sq Ft, 5 Bed, 5.5 Bath, 2 Floor, 3 Garage

Key Specs
  • 5
    Beds
  • 5.5
    Baths
  • 2
    Floors
  • 3
    Garages
  • 5322
    Square Feet
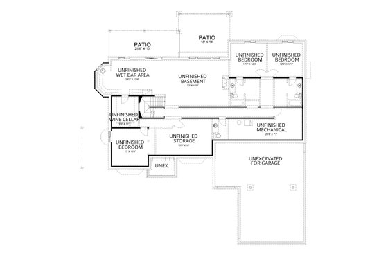
Design Highlights: - This beautiful home with its unique Garage offers a Golf Cart Bay and will be a standout on any street. - A beautiful stairway greets you beyond the spacious Foyer. - A Vaulted Great Rm. extends through the Covered Deck offering shelter from the storm. - The open Country Kitchen features an abundance of counter space as well as cabinets and includes the Nook. - Formal Living and Dining Rooms offer gathering spots to entertain guests. - The Huge Rear Deck provides Covered and Sun areas for all to enjoy. - A Bay Window beautiful columns frame the built-in tub and flanking vanities provide room for two. - The Huge Walk-In closet has room for so many clothes. - The Laundry Room has it all, storage cabinets, countertops, sink closet and washer and dryer. - The Tandem 3-Car Garage includes room for a Shop and holds a separate Golf Cart Bay. - The Bonus Room upstairs contains a Bedroom with a Walk-In Closet along with its own Bathroom. - The unfinished Basement provides plenty of room to expand and easily adds room for a couple of Bedrooms and much more. Room Sizes: Front Porch: 9/0x7/0 Foyer: 8/0x10/0 Great Room: 17/6x19/0 Kitchen: 14/6x13/0 Walk-In Pantry: 4/0x9/0 Dining: 14/0x16/0 Living Room: 12/6x15/6 Nook: 15/0x11/0 Primary: 14/6x19/6 Primary Bath: 13/6x20/6 Primary Walk-In Closet: 11/6x14/0 Bonus Bedroom: 15/0x15/6 Bonus Bedroom Walk-In Closet: 7/6x5/9 Hall Bath: 5/0x8/0 Mud Room: 5/2x8/0 Laundry: 9/2x9/8 Garage 23/0x20/0 Shop: 23/0x16/0 Covered Deck: 18/0x14/0 Sun Deck: 25/6x10/0 Dining Deck: 10/0x15/0 Covered Patio: 18/0x14/0 Patio: 25/6x10/0

Questions on this plan?

New to the process and looking for some help to kick things off? Let us know a bit about your plans and we’ll be happy to help.

Budget & Customization Tools

Modify icon
Customize this Plan
Tell us about your desired changes and we can prepare an estimate.
Cost to Build icon
Cost to Build Report
A personalized estimate based on your location, plan, & materials.
Cost to Build icon
Residential Construction Guide
This downloadable, 26-page guide is full of diagrams and details about plumbing, electrical, and more.

Full specs & Features

Basic Features

Bedrooms: 5
Baths: 5.5
Stories: 2
Garages: 3

Dimension

Depth: 83'
Height: 25' 3"
Width: 82' 6"

Area

Total: 5322 sq/ft
Basement: 2631 sq/ft
Bonus: 534 sq/ft
Decks: 652 sq/ft
Garage: 1016 sq/ft
Main Floor: 2691 sq/ft
Patios: 507 sq/ft
Porch: 69 sq/ft
* Total Square Footage typically only includes conditioned space and does not include garages, porches, bonus rooms, or decks.

Ceiling

Bonus Ceiling: 8'
Ceiling Details: Great Room: 12’-0” at walls sloping to 15’-0” at interior ridge.
Garage Ceiling: 9' 6"
Main Ceiling: 10'
Upper Ceiling Ft: 8'

Roof

Primary Pitch: 8/12
Roof Framing: Roof Trusses
Roof Load: 40 psf Live/15psf Dead
Roof Type: Roof Trusses/Scissor Trusses

Exterior Wall Framing

Exterior Wall Finish: Lap Siding/Stone
Framing: 2"x6"
Insulation: R-21

Bedroom Features

2 Master Suites
Guest Suite
Lower Level Bedrooms
Main Floor Bedrooms
Main Floor Master Bedroom
Split Bedrooms
Upstairs Bedrooms
Upstairs Master Bedrooms
Walk In Closet

Kitchen Features

Breakfast Nook
Kitchen Island

Additional Room Features

Great Room Living Room
Main Floor Laundry
Storage Area
Unfinished Future Space
Wet Bar
Wine Cellar
Workshop

Garage Features

Garage Under
Oversized Garage
Side Entry Garage
Tandem Garage

Lot Characteristics

Suited For Corner Lot
Suited For Sloping Lot
Suited For View Lot

Outdoor Spaces

Covered Front Porch
Covered Rear Porch
Grill Deck Sundeck

More

Additional Half Bath
Economical To Build
Empty Nester
Suited For Vacation Home

Energy Efficient Features

Energy Efficient Design

What's Included

Plans are typically drawn to ¼” scale (or as otherwise noted below) and include:
  • Foundation Plan(s): Scale 1/4" = 1'-0". All dimensions and post locations. All foundation wall and footing sizes. Door and window sizes. Floor and deck joist sizes and spacing. Notes pertaining to code requirements. Mechanical and plumbing locations.
  • Floor Plan(s): Scale 1/4" = 1'-0". All dimensions and post locations. Door and window sizes. Ceiling details. Floor and deck joist size and spacing. Notes pertaining to code requirements. Mechanical and plumbing locations. Square footage of floor area. Braced wall panel locations. Plate heights. Roof truss types.
  • Exterior Elevations: Front, rear, and side elevations. Scale front elevation: 1/4" = 1'-0" Sides and rear: 1/8” = 1’-0” or 3/16”= 1’-0” Description of finish materials. Overall height. Plate heights.
  • Overhead Roof Plan(s): Scale 1/8" = 1'-0". Roof lines, ridges, valleys, and hips. Roof slopes. Square footage under roof. Roof overhangs.
  • Cross Section(s): Scale 1/4" = 1'-0". Roof trusses and rafter framing. Special framing details. Plate heights and foundation wall heights. Structural members. Important: design loads and weather conditions vary by region. As a result the size, spacing, and layout of all structural elements in this home design may need approval by a structural engineer or code official based on your specific site location.
  • Electrical Plan(s): Scale 1/4" = 1'-0". Location of electrical outlets. Location and type of light switches. Location of smoke and CO2 detectors.
  • Kitchen Cabinet Elevation(s): Scale 1" = 1'-0". Dimensions and details of all cabinets.
  • Detail Sheet(s): Scale 1" = 1'-0". Partial sections through various walls. Notes pertaining to code requirements. Call out of materials and connections. Outlooker details.
  • Construction Notes / Detail(s): Braced panel locations, alternate braced panel locations, engineered panel locations, alternate braced panel details, and braced panel notes and tables. Design loads and weather conditions vary by region. As a result the size, spacing, and layout of all structural elements in this home design may need approval by a structural engineer or code official based on your specific site location. Scale 1/4" = 1'-0"
  • Wall Section(s): Scale 1/2" = 1'-0". Materials and construction notes. Framing details. Roof truss detail at wall. Foundation wall details. Insulation requirements.
  • Other Note(s): Braced wall panel notes. Nailing patterns. Header notes. Sheathing notes.

FAQs

Are designs on Houseplans ready to submit to my building department for permitting?

It depends on where you're building. Our plans contain enough information for a professional builder to construct your home, but your local government may require additional information before permitting. We strongly advise that you talk with your builder before you get started. If you are building for yourself, we recommend visiting your local building department to start your diligence. Read more here.

Can I make changes to a plan?

Absolutely! Our modification service allows you to customize almost anything - whether it's adding an extra garage bay, adjusting square footage, changing the roof pitch, or more, the plan modification service is a great value and can be completed quickly. Additionally, if you purchase an electronic plan set (PDF or CAD), you may have the option to make changes locally. CAD files offer the most flexibility for custom edits. Just let us know what you're thinking, and we’ll provide an estimate and timeframe to get started. Learn more here.

How much does a house cost to build?

Find out! Build costs vary based on the size of the home, materials used, and local rates for goods and labor. Our Cost to Build report is a great way to get some basic costs dialed in before you order your plans. Just plug in your postal code, select your desired construction quality, and we'll calculate for you.

Learn more about Cost to Build reports here.

Can I trust Houseplans?

Founded in 2004, Houseplans works with hundreds of architects and designers to offer their plans at a fraction of the price of custom design. Houseplans has an "Excellent" rating on TrustPilot.

Read more about us here.

Does Houseplans offer live support?

Yes, Houseplans has a dedicated team of house plan advisors with decades of experience between them. You can reach them by calling, emailing, filling out a form on the page of a plan that you like, or going to the Contact Us page. We're available to talk every day, even on weekends.

Builder Advantage Home

Builder Advantage Program

Are you a Pro Builder? Join the club, save 5% on your first order, get exclusive discounts, and more.

Learn More

You may also like

Save Plan
European

Plan 453-56

$1550.00

beds3

bd

baths4

ba

stories2

stories

square feet3359

sq ft

Save Plan
Craftsman

Plan 126-236

$1195.00

beds2

bd

baths2

ba

stories1

story

square feet988

sq ft

Save Plan
Traditional

Plan 20-2346

$1305.00

beds4

bd

baths2.5

ba

stories2

stories

square feet2257

sq ft

Recently viewed plans

Exterior - Front Elevation for European House Plan #112-227 - 5 bed, 5.5 bath
Save Plan

Plan 112-227

$1300.00

beds5

bd

baths5.5

ba

stories2

stories

square feet5322

sq ft