Contemporary Style House Plan - 5 Beds 5.5 Baths 5404 Sq/Ft Plan #1066-36 - Houseplans.com
Search
REGISTER LOGIN SAVED No Saved Plans CART  Cart Empty
Don't lose your saved plans! Create an account to access your saves whenever you want. See our Terms & Conditions and Privacy Policy.
OR
15% OFF: SALE ENDS SOON!
Plan 1066-36
Photographs may show modified designs.
Home  >  Style  >  Contemporary

Contemporary House Plan 1066-36

Key Specs


Plan Sq Ft

5404
sq ft

Plan Bedrooms

5
Beds

Plan Bathrooms

5.5
Baths

Plan Floors

2
Floors

Plan Garages

3
Garages

Questions? Get Personalized Help
Select Plan Set Options
What's included?
$212.50
$140.25
$420.75
$33.15
$140.25
Subtotal
NOW $2296.70
You save $405.30
(15% savings)
Sale ends soon!
Best Price Guaranteed

Or order by phone: 1-800-913-2350
Questions? Get Personalized Help
 

 
Hours:
Ready for Your Call 7 Days a Week
Every Day 7 am - 8:30 pm Eastern

See Terms & Conditions and Privacy Policy.

Thanks for your question.

We will be in touch shortly.

Wow!
Cost to Build Reports
$1.99 with Code
CTB2026 (Limit 1)
Our Cost to Build Report gives you a personalized estimate for building your home, based on your location, plan, and materials.

Residential Construction Guide

Learn Building Basics

This downloadable, 26-page guide is full of diagrams and details about plumbing, electrical, and more.

Key Specs


Plan Sq Ft

5404
sq ft

Plan Bedrooms

5
Beds

Plan Bathrooms

5.5
Baths

Plan Floors

2
Floors

Plan Garages

3
Garages

Plan Description


This contemporary design floor plan is 5404 sq ft and has 5 bedrooms and 5.5 bathrooms.

This plan can be customized!

Tell us about your desired changes so we can prepare an estimate for the design service. Click the button to submit your request for pricing, or call 1-800-913-2350.

Floor Plans


Floor Plan - Main Floor

Reverse
houseplans LOGO

BUILDER Advantage Program

PRO BUILDERS

Join the club and save 5% on your first order.
PLUS download exclusive discounts and more.

LEARN MORE

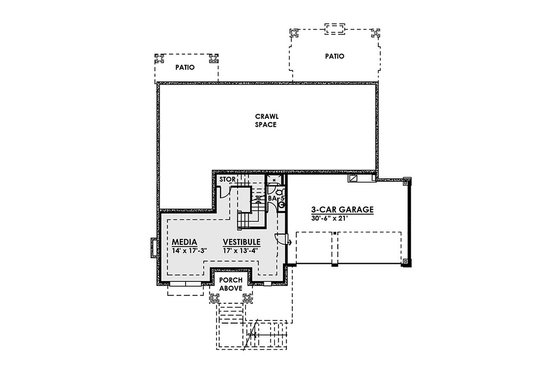
Floor Plan - Lower Floor

Reverse

Floor Plan - Upper Floor

Reverse

Full Specs & Features


Basic Features

Bedrooms : 5
Baths : 5.5
Stories: 2
Garages: 3

Dimension

Depth : 68'
Width : 64'

Area

Total : 5404 sq/ft
Decks : 410 sq/ft
Garage : 675 sq/ft
Lower Floor : 721 sq/ft
Main Floor : 2495 sq/ft
Patios : 412 sq/ft
Porch : 79 sq/ft
Upper Floor : 2188 sq/ft
* Total Square Footage typically only includes conditioned space and does not include garages, porches, bonus rooms, or decks.

Ceiling

Garage Ceiling : 10'
Lower Ceiling : 9'
Main Ceiling : 10'
Upper Ceiling Ft : 9'

Roof

Primary Pitch : 4:12
Roof Framing : truss

Exterior Wall Framing

Framing : 2x6
Insulation : R21

Bedroom Features

Upstairs Bedrooms
Upstairs Master Bedrooms
Walk In Closet

Kitchen Features

Breakfast Nook
Kitchen Island
Walk In Pantry Cabinet Pantry

Additional Room Features

Den Office Study Computer
Family Room Keeping Room
Great Room Living Room
Loft

Garage Features

Front Entry Garage

Lot Characteristics

Suited For Sloping Lot

Outdoor Spaces

Balcony
Covered Front Porch
Grill Deck Sundeck
Outdoor Kitchen Grill

What's included in this plan set


See a sample plan set
All plans are drawn at ¼” scale or larger and include :

Plans are typically drawn to ¼” scale and include:

  • Cover Sheet: Drawing index, designer contact info, plan name/number, legal disclaimers. 3D Rendering and Project Information.
  • Foundation Plan(s): This page shows all necessary notations and dimensions including footings, support columns, walls, and excavated/unexcavated areas.
  • Floor Plan(s): Detailed plans for each level showing room dimensions, wall partitions, windows and doors, fixture locations, and ceiling treatments.
  • Exterior Elevations: Views of the home from all four sides showing exterior materials, roof slope, ridge heights, siding and trim notes.
  • Overhead Roof Plan(s): A view of the home from above showing roof pitch, peaks, valleys, and other details.
  • Cross Section(s): A slice of the home from roof to foundation, showing relationships between floors, roof, and foundation.
  • Construction Notes / Detail(s): Shows basic parts and assemblies recommended for the home so the builder can see how things come together.
  • Wall Section(s): Detailed drawings showing wall connections, from foundation to the roof, wall connections to foundation, window installation, siding installation, stair details, and more.
  • Door / Window Schedule(s): A list of all the doors and windows needed to construct the house. This can help with estimating materials costs.
*Please note that any structural engineering sheets included with this plan set are for reference only.
* See important information before purchasing

Pricing


Plan Options

PDF Set

Best Value!
$2296.70
PDF plan sets are best for fast electronic delivery and inexpensive local printing.

5 Copy Set

$2551.70
5 printed plan sets mailed to you.

8 Copy Set

$2679.20
8 printed plan sets mailed to you.

CAD Set

$4363.05
For use by design professionals to make substantial changes to your house plan and inexpensive local printing.

Foundation Options

Basement

$0.00
Ideal for level lot, lower level of home partially or fully underground.

Crawlspace

$255.00
Ideal for semi-sloped or level lot, home can be built off of grade, typically 18” - 48”.

Slab

$255.00
Ideal for level lot, single layer concrete poured directly on grade.

*Options with a fee may take time to prepare. Please call to confirm.

Additional Options

Right-Reading Reverse

$212.50
Choose this option to reverse your plans and to have the text and dimensions readable.

Audio Video Design

$140.25
Receive an overlay sheet with suggested placement of audio and video components.

Comprehensive Material List

$420.75
A complete list of building supplies needed to construct the infrastructure of your new house, plus an overlay of materials shown directly on your PDF (foundation to rooftop with interior and exterior materials), and a detailed, itemized door and window schedule showing all sizes and types. Please allow 5-7 Business Days for completion. Note, the Comprehensive list is only available with a PDF purchase. The Comprehensive list can be ordered no matter what additional plan options you have selected.

Construction Guide

$33.15
Educate yourself about basic building ideas with these four detailed diagrams that discuss electrical, plumbing, mechanical, and structural topics.

Lighting Design

$140.25
Receive an overlay sheet with suggested placement of lighting fixtures.

*Options with a fee may take time to prepare. Please call to confirm.

Unless you buy an “unlimited” plan set or a multi-use license you may only build one home from a set of plans. Please call to verify if you intend to build more than once. Plan licenses are non-transferable and cannot be resold.

Other Plans By This Designer

See all plans by
this designer

Need help? Let our friendly experts help you find the perfect plan!

Contact us now for a free consultation.

$1.99 Build Cost Reports!