Farmhouse Style House Plan - 4 Beds 3.5 Baths 3075 Sq/Ft Plan #437-125 - Houseplans.com
Search
REGISTER LOGIN SAVED No Saved Plans CART  Cart Empty
Don't lose your saved plans! Create an account to access your saves whenever you want. See our Terms & Conditions and Privacy Policy.
OR
FINAL HOURS: 15% OFF ENDS TONIGHT
Plan 437-125
Photographs may show modified designs.
Home  >  Style  >  Farmhouse

Farmhouse House Plan 437-125

Key Specs


Plan Sq Ft

3075
sq ft

Plan Bedrooms

4
Beds

Plan Bathrooms

3.5
Baths

Plan Floors

2
Floors

Plan Garages

5
Garages

Questions? Get Personalized Help
Select Plan Set Options
What's included?
$140.25
$335.75
$33.15
$140.25
Subtotal
NOW $1147.50
You save $202.50
(15% savings)
Sale ends soon!
Best Price Guaranteed

Or order by phone: 1-800-913-2350
Questions? Get Personalized Help
 

 
Hours:
Ready for Your Call 7 Days a Week
Every Day 7 am - 8:30 pm Eastern

See Terms & Conditions and Privacy Policy.

Thanks for your question.

We will be in touch shortly.

Wow!
Cost to Build Reports
$1.99 with Code
CTB2026 (Limit 1)
Our Cost to Build Report gives you a personalized estimate for building your home, based on your location, plan, and materials.

Residential Construction Guide

Learn Building Basics

This downloadable, 26-page guide is full of diagrams and details about plumbing, electrical, and more.

Key Specs


Plan Sq Ft

3075
sq ft

Plan Bedrooms

4
Beds

Plan Bathrooms

3.5
Baths

Plan Floors

2
Floors

Plan Garages

5
Garages

Plan Description


This farmhouse design floor plan is 3075 sq ft and has 4 bedrooms and 3.5 bathrooms.

This plan can be customized!

Tell us about your desired changes so we can prepare an estimate for the design service. Click the button to submit your request for pricing, or call 1-800-913-2350.

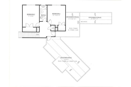
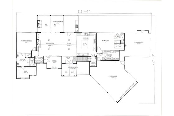
Floor Plans


Floor Plan - Main Floor

houseplans LOGO

BUILDER Advantage Program

PRO BUILDERS

Join the club and save 5% on your first order.
PLUS download exclusive discounts and more.

LEARN MORE

Floor Plan - Upper Floor

Full Specs & Features


Basic Features

Bedrooms : 4
Baths : 3.5
Stories: 2
Garages: 5

Dimension

Depth : 72'
Height : 28' 6"
Width : 111' 4"

Area

Total : 3075 sq/ft
Bonus : 465 sq/ft
Garage : 1313 sq/ft
Main Floor : 2471 sq/ft
Porch : 716 sq/ft
Storage : 371 sq/ft
Upper Floor : 604 sq/ft
* Total Square Footage typically only includes conditioned space and does not include garages, porches, bonus rooms, or decks.

Ceiling

Bonus Ceiling : 9'
Garage Ceiling : 10'
Main Ceiling : 10'
Upper Ceiling Ft : 9'

Roof

Primary Pitch : 12/12
Roof Framing : truss

Exterior Wall Framing

Exterior Wall Finish : siding & brick
Framing : wood

Bedroom Features

Guest Suite
Main Floor Master Bedroom
Upstairs Bedrooms

Kitchen Features

Kitchen Island
Walk In Pantry Cabinet Pantry

Additional Room Features

Den Office Study Computer
Great Room Living Room
Main Floor Laundry
Mud Room
Unfinished Future Space

Garage Features

Oversized Garage

Outdoor Spaces

Covered Rear Porch

What's included in this plan set


See a sample plan set

Please note: This designer has the following the zip code restrictions: 30041, 30501, 30504, 30506, 30542, and 30566.

Plans are typically drawn to ¼” scale and include:

  • Foundation Plan(s): The foundation page shows concrete walls, footings, pads, posts, beams, bearing walls, and any retaining wall info (schematic only). Typical wall section details are shown for various footings. On plans drawn as walk out basements, if you choose the optional slab foundation, the slab foundation will not be reflected in the exterior elevations.
  • Floor Plan(s): Dimensioned exterior and interior wall framing along with labeled windows/doors sizes in each room of home. Wall heights are indicated for each level. Room sizes are indicated and any beams, posts and structural bearing points are called out.
  • Exterior Elevations: Plans include detailed front, sides, and rear exterior drawings. These drawings give notes on all exterior materials and finishes (siding, brick, stone, etc).
  • Overhead Roof Plan(s): Roof plan showing all hips, ridges, and valleys along with slope directions are indicated. Structural members are sized and called out if applicable.
  • Cross Section(s): A slice of the home from roof to foundation, showing relationships between floors, roof, and foundation.
  • Building Section(s): Building sections show changes in floor, ceiling, or roof height, and the relationship of one level to another. Some plans will have additional cross-sections and details as needed for displaying any special framing details applicable to the design.
  • Electrical Plan(s): The floorplans include an electrical legend, electrical fittings, lights, and outlets are shown.
  • Construction Notes / Detail(s): Shows basic parts and assemblies recommended for the home so the builder can see how things come together.
  • Code Drawn To: Plans meet the requirements of the ‘International Residential Code’ (year may vary). Compliance with further standards may need to be incorporated into your plan set, depending the requirements of your local/state building department — these typically are done locally.
* See important information before purchasing

Pricing


Plan Options

PDF Master Set

$1147.50
An unlocked, modifiable PDF file

PDF Set

Best Value!
$1232.50
PDF plan sets are best for fast electronic delivery and inexpensive local printing.

CAD Single Build

$1317.50
For use by design professionals to make substantial changes to your house plan and inexpensive local printing.

CAD Set

$1402.50
For use by design professionals to make substantial changes to your house plan and inexpensive local printing.

Foundation Options

Slab

$0.00
Ideal for level lot, single layer concrete poured directly on grade.

*Options with a fee may take time to prepare. Please call to confirm.

Framing Options

Wood 2x4

$0.00
Wood 2x4 Exterior Walls

*Options with a fee may take time to prepare. Please call to confirm.

Additional Options

Audio Video Design

$140.25
Receive an overlay sheet with suggested placement of audio and video components.

Comprehensive Material List

$335.75
A complete list of building supplies needed to construct the infrastructure of your new house, plus an overlay of materials shown directly on your PDF (foundation to rooftop with interior and exterior materials), and a detailed, itemized door and window schedule showing all sizes and types. Please allow 5-7 Business Days for completion. Note, the Comprehensive list is only available with a PDF purchase. The Comprehensive list can be ordered no matter what additional plan options you have selected.

Construction Guide

$33.15
Educate yourself about basic building ideas with these four detailed diagrams that discuss electrical, plumbing, mechanical, and structural topics.

Lighting Design

$140.25
Receive an overlay sheet with suggested placement of lighting fixtures.

*Options with a fee may take time to prepare. Please call to confirm.

Unless you buy an “unlimited” plan set or a multi-use license you may only build one home from a set of plans. Please call to verify if you intend to build more than once. Plan licenses are non-transferable and cannot be resold.

Other Plans By This Designer

See all plans by
this designer

Need help? Let our friendly experts help you find the perfect plan!

Contact us now for a free consultation.