Craftsman Style House Plan - 1 Beds 1 Baths 600 Sq/Ft Plan #895-151 - Houseplans.com
Search
REGISTER LOGIN SAVED No Saved Plans CART  Cart Empty
Don't lose your saved plans! Create an account to access your saves whenever you want. See our Terms & Conditions and Privacy Policy.
OR
Plan 895-151
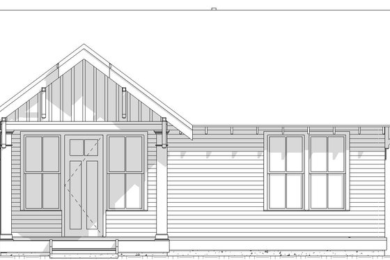
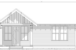
Photographs may show modified designs.
Home  >  Style  >  Craftsman

Craftsman House Plan 895-151

Key Specs


Plan Sq Ft

600
sq ft

Plan Bedrooms

1
Beds

Plan Bathrooms

1
Baths

Plan Floors

1
Floors

Plan Garages

0
Garages

Questions? Get Personalized Help
Select Plan Set Options
What's included?
$450.00
Additional Construction Sets$50.00/each

Additional hard copies of the plan (can be ordered at the time of purchase and within 90 days of the purchase date).

$295.00
Mirror Reversed Sets$150.00

Printed sets showing plan in reverse, text and dimensions will be backwards.

Subtotal
$1150.00
Best Price Guaranteed

Or order by phone: 1-800-913-2350
Questions? Get Personalized Help
 

 
Hours:
Ready for Your Call 7 Days a Week
Every Day 7 am - 8:30 pm Eastern

See Terms & Conditions and Privacy Policy.

Thanks for your question.

We will be in touch shortly.

Wow!
Cost to Build Reports
$1.99 with Code
CTBFALL (Limit 1)
Our Cost to Build Report gives you a personalized estimate for building your home, based on your location, plan, and materials.

Residential Construction Guide

Learn Building Basics

This downloadable, 26-page guide is full of diagrams and details about plumbing, electrical, and more.

Key Specs


Plan Sq Ft

600
sq ft

Plan Bedrooms

1
Beds

Plan Bathrooms

1
Baths

Plan Floors

1
Floors

Plan Garages

0
Garages

Plan Description


Single family one bedroom and one bathroom

This plan can be customized!

Tell us about your desired changes so we can prepare an estimate for the design service. Click the button to submit your request for pricing, or call 1-800-913-2350.

Floor Plans


Floor Plan - Main Floor

Reverse
houseplans LOGO

BUILDER Advantage Program

PRO BUILDERS

Join the club and save 5% on your first order.
PLUS download exclusive discounts and more.

LEARN MORE

Full Specs & Features


Basic Features

Bedrooms : 1
Baths : 1
Stories: 1
Garages: 0

Dimension

Depth : 28'
Height : 17' 9"
Width : 30'

Area

Total : 600 sq/ft
Decks : 108 sq/ft
Main Floor : 600 sq/ft
* Total Square Footage typically only includes conditioned space and does not include garages, porches, bonus rooms, or decks.

Ceiling

Ceiling Details : Sloped ceiling
Main Ceiling : 9'

Roof

Primary Pitch : 9:12
Roof Framing : truss
Roof Load : 25
Roof Type : composition
Secondary Pitch : 9:12

Exterior Wall Framing

Exterior Wall Finish : lap siding and board and batt
Framing : 2x6
Insulation : Batt

Bedroom Features

Main Floor Bedrooms
Main Floor Master Bedroom

Kitchen Features

Kitchen Island

Additional Room Features

Main Floor Laundry

Lot Characteristics

Suited For Corner Lot
Suited For Narrow Lot

Outdoor Spaces

Covered Front Porch

More

Economical To Build
Empty Nester
Suited For Vacation Home

Energy Efficient Features

Energy Efficient Design

What's included in this plan set


See a sample plan set
The typical plan set will include:Plans are typically drawn to ¼” scale and include:
  • Cover Sheet: Drawing index, designer contact info, plan name/number, legal disclaimers.
  • Foundation Plan(s): This page shows all necessary notations and dimensions including footings, support columns, walls, and excavated/unexcavated areas.
  • Floor Plan(s): Detailed plans for each level showing room dimensions, wall partitions, windows and doors, fixture locations, and ceiling treatments.
  • Exterior Elevations: Views of the home from all four sides showing exterior materials, roof slope, ridge heights, siding and trim notes.
  • Overhead Roof Plan(s): A view of the home from above showing roof pitch, peaks, valleys, and other details.
  • Cross Section(s): A slice of the home from roof to foundation, showing relationships between floors, roof, and foundation.
  • Building Section(s): Shows the relationship between different levels, wall heights, and the overall building volume. May include details like foundation, framing, insulation, and finishes.
  • Electrical Plan(s): Shows the location of lights, receptacles, switches, etc. Some plans that do not include an electrical plan may have it available for an additional fee.
  • Construction Notes and Detail(s): Shows basic parts and assemblies recommended for the home so the builder can see how things come together.
  • Framing Detail(s): If included, the framing layout is intended to be a suggested layout only. Design loads and weather conditions vary by region. As a result the size, spacing, and layout of all structural elements in this home design may need approval by a structural engineer or code official based on your specific site location.
  • Wall Section(s): Detailed drawings showing wall connections, from foundation to the roof, wall connections to foundation, window installation, siding installation, stair details, and more.
  • Energy Guidelines: Specifications or suggestions for how to meet or exceed certain energy standards.
* See important information before purchasing

Pricing


Plan Options

5 Copy Set

$1150.00
5 printed plan sets mailed to you.

8 Copy Set

$1300.00
8 printed plan sets mailed to you.

Reproducible Set

$1450.00
For inexpensive local printing / making minor adjustments by hand. 1 printed set, typically on Bond paper.

PDF Set

Best Value!
$1700.00
PDF plan sets are best for fast electronic delivery and inexpensive local printing.

CAD Set

$2700.00
For use by design professionals to make substantial changes to your house plan and inexpensive local printing.

Single Set

$950.00
One printed set for bidding purposes only. Not a legal building set for construction.

Study Set

$950.00
One electronic set for bidding purposes only. Not a legal building set for construction.

Foundation Options

Crawlspace

$0.00
Ideal for semi-sloped or level lot, home can be built off of grade, typically 18” - 48”.

*Options with a fee may take time to prepare. Please call to confirm.

Framing Options

Wood 2x6

$0.00
Wood 2x6 Exterior Walls

*Options with a fee may take time to prepare. Please call to confirm.

Additional Options

Right-Reading Reverse

$450.00
Choose this option to reverse your plans and to have the text and dimensions readable.

Additional Construction Sets

$50.00
Additional hard copies of the plan (can be ordered at the time of purchase and within 90 days of the purchase date).

Comprehensive Material List

$295.00
A complete list of building supplies needed to construct the infrastructure of your new house, plus an overlay of materials shown directly on your PDF (foundation to rooftop with interior and exterior materials), and a detailed, itemized door and window schedule showing all sizes and types. Please allow 5-7 Business Days for completion. Note, the Comprehensive list is only available with a PDF purchase. The Comprehensive list can be ordered no matter what additional plan options you have selected.

Mirror Reversed Sets

$150.00
A mirror-reversed set is a printed copy of your house, resulting in the same image you would see if you held the drawing up to a mirror. Everything, including the text, is backward in relation to the original design. These kinds of drawing are typically used to reorient an original plan more advantageously on a site, either because the homeowner prefers it that way or because of limitations of the site itself. Note: Mirror reverse sets are only available with a 5 copy or 8 copy set. With a Reproducible, PDF, or CAD set, you can print mirrored copies locally. In addition: 5 Copy set selected, should only allow 4 mirrored sets to be selected. 8 Copy set selected, should only allow 7 mirrored sets to be selected.

*Options with a fee may take time to prepare. Please call to confirm.

Unless you buy an “unlimited” plan set or a multi-use license you may only build one home from a set of plans. Please call to verify if you intend to build more than once. Plan licenses are non-transferable and cannot be resold.

We offer a 90% credit when you upgrade from a set, that is not for construction, to a 5-Copy set (or greater).

Meet the Designer

The Shelter Studio

The Shelter Studio - Houseplans.com
"Being able to record and hold my thoughts on a piece of paper, then a short time later, being able to walk inside those thoughts, is one of the best parts of design." With any design, be it a custom home, remodel or addition, living spaces are made from the collective imaginations of the designer and client. At the Shelter Studio, Jason Offutt’s creativity is well polished. His design motivations draw from the aesthetics of historical architecture to bolster the integrity of the modern home—historic sensibility with a contemporary practicality. Raised in Atlanta, Georgia, Offutt’s interest in architecture was inspired by the old homes of the South. His eye for the work was refined while perusing his B.S. in Architectural Engineering Technology from Southern Polytechnic State University. In school, his parallel interests in design and engineering brought him to study in the Architecture, Civil Engineering, and Physics departments. Out of college, Offutt’s work experience focused on several building types—hotels, medical facilities, offices, and high-end residential buildings. It was in residential design where Offutt discovered a desirable niche. Shifting scale to residential design, Offutt found he was able to take a more personal approach to drawing, working with the client to focus on the fine details of living spaces. Today, his design focus is founded on a technical understanding of material and structure and a firm knowledge of historical architecture. He uses this diverse background to join artful design with enduring structures. With over fifteen years of experience in architecture, Offutt has worked on hundreds of homes. A signature of his design style is to blend several architectural elements to create smooth transitions between the public and the private spaces of the home. A language of the home, Offutt believes, "should be expressive." He continues, "When you walk by any home, it should reach out and grab you, and invite you in. If the home doesn't make you stop and look, it hasn't done its job. You should want to walk right thru the front door and make this your home." From sketch to structure, Offutt works to bring beauty through design, and into the home. Certifications/ Organizations: LEED® Accredited Professional Certified Sustainable Building Advisor® (CSBA) Certified Sustainable Home Professional (CSHP) Mr. Offutt is also an active volunteer in his local community. He has assisted with many projects ranging from river cleanup to a kayaking kid's camp. He is also a board member for a local non-profit addressing river safety and the paddle trail. He also works with the local Habitat for Humanity chapter and First Story, donating home designs and other efforts.

Other Plans By This Designer

See all plans by
this designer

Need help? Let our friendly experts help you find the perfect plan!

Contact us now for a free consultation.

Coupon Codes