Craftsman Style House Plan - 1 Beds 1 Baths 605 Sq/Ft Plan #899-4 - Houseplans.com
Search
REGISTER LOGIN SAVED No Saved Plans CART  Cart Empty
Don't lose your saved plans! Create an account to access your saves whenever you want. See our Terms & Conditions and Privacy Policy.
OR
15% OFF: SALE ENDS SOON!
Plan 899-4
Photographs may show modified designs.
Home  >  Style  >  Craftsman

Craftsman House Plan 899-4

Key Specs


Plan Sq Ft

605
sq ft

Plan Bedrooms

1
Beds

Plan Bathrooms

1
Baths

Plan Floors

2
Floors

Plan Garages

1
Garages

Questions? Get Personalized Help
Select Plan Set Options
What's included?
$85.00
$33.15
$85.00
Subtotal
NOW $595.00
You save $105.00
(15% savings)
Sale ends soon!
Best Price Guaranteed

Or order by phone: 1-800-913-2350
Questions? Get Personalized Help
 

 
Hours:
Ready for Your Call 7 Days a Week
Every Day 7 am - 8:30 pm Eastern

See Terms & Conditions and Privacy Policy.

Thanks for your question.

We will be in touch shortly.

Wow!
Cost to Build Reports
$1.99 with Code
CTB2026 (Limit 1)
Our Cost to Build Report gives you a personalized estimate for building your home, based on your location, plan, and materials.

Residential Construction Guide

Learn Building Basics

This downloadable, 26-page guide is full of diagrams and details about plumbing, electrical, and more.

Key Specs


Plan Sq Ft

605
sq ft

Plan Bedrooms

1
Beds

Plan Bathrooms

1
Baths

Plan Floors

2
Floors

Plan Garages

1
Garages

Plan Description


This craftsman design floor plan is 605 sq ft and has 1 bedrooms and 1 bathrooms.

This plan can be customized!

Tell us about your desired changes so we can prepare an estimate for the design service. Click the button to submit your request for pricing, or call 1-800-913-2350.

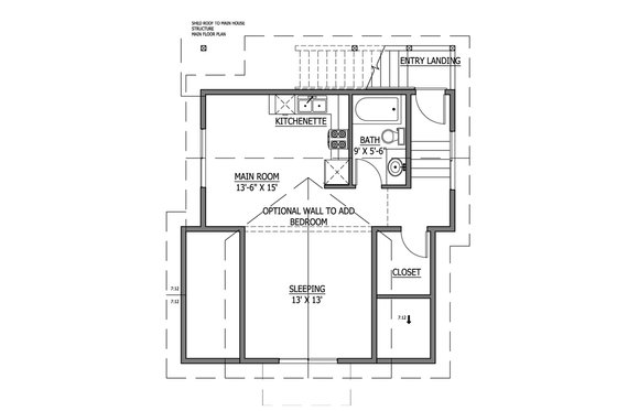
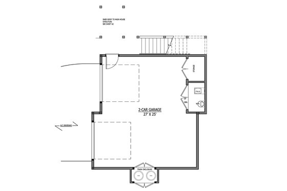
Floor Plans


Floor Plan - Main Floor

houseplans LOGO

BUILDER Advantage Program

PRO BUILDERS

Join the club and save 5% on your first order.
PLUS download exclusive discounts and more.

LEARN MORE

Floor Plan - Upper Floor

Full Specs & Features


Basic Features

Bedrooms : 1
Baths : 1
Stories: 2
Garages: 1

Dimension

Depth : 32'
Height : 25'
Width : 28'

Area

Total : 605 sq/ft
Garage : 729 sq/ft
Porch : 120 sq/ft
Upper Floor : 605 sq/ft
* Total Square Footage typically only includes conditioned space and does not include garages, porches, bonus rooms, or decks.

Roof

Primary Pitch : 7:12
Roof Framing : Wood Framing
Roof Load : 153 PSF
Roof Type : Rafters
Secondary Pitch : 5:12

Bedroom Features

Guest Suite
Walk In Closet

Garage Features

Detached Garage

Lot Characteristics

Suited For Corner Lot
Suited For Narrow Lot
Suited For Sloping Lot
Suited For View Lot

Outdoor Spaces

Breezeway

More

Economical To Build
Suited For Vacation Home

What's included in this plan set


See a sample plan set

All plans are drawn at ¼” scale or larger and include :

  • Foundation Plan: This page shows all necessary notations and dimensions including support columns, walls, and excavated/unexcavated areas.
  • Exterior Elevations: Views of the home from all four sides showing exterior materials and measurements.
  • Floor Plan(s): Detailed plans for each level showing room dimensions, wall partitions, windows and doors, etc.
  • Cross Section: A slice of the home from roof to foundation, showing important details like stairs and wall construction.
  • Overhead Roof Plan(s): A view of the home from above showing roof pitch, peaks, valleys, and other details.
  • Construction Notes and Details: Shows the builder how things come together, like walls, the chimney, insulation, and more.
* See important information before purchasing

Pricing


Plan Options

5 Copy Set

$595.00
5 printed plan sets mailed to you.

PDF Set

Best Value!
$595.00
PDF plan sets are best for fast electronic delivery and inexpensive local printing.

8 Copy Set

$765.00
8 printed plan sets mailed to you.

CAD Set

$1530.00
For use by design professionals to make substantial changes to your house plan and inexpensive local printing.

Single Set

$170.00
One printed set for bidding purposes only. Not a legal building set for construction.

Foundation Options

Slab

$0.00
Ideal for level lot, single layer concrete poured directly on grade.

*Options with a fee may take time to prepare. Please call to confirm.

Additional Options

Audio Video Design

$85.00
Receive an overlay sheet with suggested placement of audio and video components.

Construction Guide

$33.15
Educate yourself about basic building ideas with these four detailed diagrams that discuss electrical, plumbing, mechanical, and structural topics.

Lighting Design

$85.00
Receive an overlay sheet with suggested placement of lighting fixtures.

*Options with a fee may take time to prepare. Please call to confirm.

Unless you buy an “unlimited” plan set or a multi-use license you may only build one home from a set of plans. Please call to verify if you intend to build more than once. Plan licenses are non-transferable and cannot be resold.

We offer a 90% credit when you upgrade from a set, that is not for construction, to a 5-Copy set (or greater).

Meet the Designer

Monarch Architecture

Monarch Architecture - Houseplans.com
Monarch was established as in 2005 in South Lake Tahoe, Ca. The firm maintains a commitment to enhance the regional community through thoughtful, innovative design while creating a legacy of buildings in tune with the region’s natural beauty. Monarch is a multidisciplinary firm that offers planning, design, interior and construction services under one roof. Our office providedes services for a wide variety of project types throughout California.

Need help? Let our friendly experts help you find the perfect plan!

Contact us now for a free consultation.

$1.99 Build Cost Reports!