Colonial Style House Plan - 4 Beds 5.5 Baths 6190 Sq/Ft Plan #1058-222 - Houseplans.com
Search
REGISTER LOGIN SAVED No Saved Plans CART  Cart Empty
Don't lose your saved plans! Create an account to access your saves whenever you want. See our Terms & Conditions and Privacy Policy.
OR
15% OFF FOR THE FIRST 25 CUSTOMERS
Home  >  Style  >  Colonial

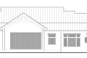
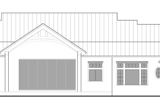
Colonial House Plan 1058-222

Key Specs


Plan Sq Ft

6190
sq ft

Plan Bedrooms

4
Beds

Plan Bathrooms

5.5
Baths

Plan Floors

2
Floors

Plan Garages

2
Garages

Questions? Get Personalized Help
Select Plan Set Options
What's included?
$255.00
Additional Construction Sets$59.50/each

Additional hard copies of the plan (can be ordered at the time of purchase and within 90 days of the purchase date).

$2507.50
$25075.00
Subtotal
NOW $4675.00
You save $825.00
(15% savings)
Sale ends soon!
Best Price Guaranteed

Or order by phone: 1-800-913-2350
Questions? Get Personalized Help
 

 
Hours:
Ready for Your Call 7 Days a Week
Every Day 7 am - 8:30 pm Eastern

See Terms & Conditions and Privacy Policy.

Thanks for your question.

We will be in touch shortly.

Wow!
Cost to Build Reports
$1.99 with Code
CTB2026 (Limit 1)
Our Cost to Build Report gives you a personalized estimate for building your home, based on your location, plan, and materials.

Residential Construction Guide

Learn Building Basics

This downloadable, 26-page guide is full of diagrams and details about plumbing, electrical, and more.

Key Specs


Plan Sq Ft

6190
sq ft

Plan Bedrooms

4
Beds

Plan Bathrooms

5.5
Baths

Plan Floors

2
Floors

Plan Garages

2
Garages

Plan Description


This colonial design floor plan is 6190 sq ft and has 4 bedrooms and 5.5 bathrooms.

This plan can be customized!

Tell us about your desired changes so we can prepare an estimate for the design service. Click the button to submit your request for pricing, or call 1-800-913-2350.

Floor Plans


Floor Plan - Main Floor

Reverse
houseplans LOGO

BUILDER Advantage Program

PRO BUILDERS

Join the club and save 5% on your first order.
PLUS download exclusive discounts and more.

LEARN MORE

Floor Plan - Upper Floor

Reverse

Full Specs & Features


Basic Features

Bedrooms : 4
Baths : 5.5
Stories: 2
Garages: 2

Dimension

Depth : 81' 4"
Height : 29' 11"
Width : 139' 6"

Area

Total : 6190 sq/ft
Garage : 822 sq/ft
Main Floor : 5582 sq/ft
Porch : 1576 sq/ft
Upper Floor : 608 sq/ft
* Total Square Footage typically only includes conditioned space and does not include garages, porches, bonus rooms, or decks.

Ceiling

Ceiling Details : Vaulted Ceilings. 14'-0" and 12'-0" Ceilings.
Garage Ceiling : 8' 8"
Main Ceiling : 14'

Roof

Primary Pitch : 7/12
Roof Framing : Truss
Roof Type : Shingle

Exterior Wall Framing

Exterior Wall Finish : Stucco/ Siding/ Stone
Framing : CMU, 2x6 Frame

Bedroom Features

Main Floor Bedrooms
Main Floor Master Bedroom
Split Bedrooms
Walk In Closet

Kitchen Features

Breakfast Nook
Butler's Pantry
Kitchen Island

Additional Room Features

Den Office Study Computer
Family Room Keeping Room
Hobby Rec Room Game Room
Main Floor Laundry
Master Sitting Area
Media Room
Mud Room
Wet Bar

Garage Features

Side Entry Garage

Entryway

Friend S Entry

Outdoor Spaces

Covered Front Porch
Covered Rear Porch

More

Additional Half Bath
Empty Nester
Suited For Vacation Home
Wheelchair Adaptable

What's included in this plan set


See a sample plan set

All plans are drawn at ¼” scale or larger and include :

  • Foundation Plan: This page shows all necessary notations and dimensions including support columns, walls, and excavated/unexcavated areas.
  • Exterior Elevations: Views of the home from all four sides showing exterior materials and measurements.
  • Floor Plan(s): Detailed plans for each level showing room dimensions, wall partitions, windows and doors, etc.
  • Cross Section: A slice of the home from roof to foundation, showing important details like stairs and wall construction.
  • Overhead Roof Plan(s): A view of the home from above showing roof pitch, peaks, valleys, and other details.
  • Construction Notes and Details: Shows the builder how things come together, like walls, the chimney, insulation, and more.
* See important information before purchasing

Pricing


Plan Options

5 Copy Set

$4675.00
5 printed plan sets mailed to you.

8 Copy Set

$4853.50
8 printed plan sets mailed to you.

CAD Single Build

$5015.00
For use by design professionals to make substantial changes to your house plan and inexpensive local printing.

PDF Set

Best Value!
$5015.00
PDF plan sets are best for fast electronic delivery and inexpensive local printing.

Foundation Options

Stem Wall Foundation

$0.00
Joins the foundation with a house’s vertical walls; often part of stem-wall slab foundation systems, which are constructed like a crawlspace foundation but filled in and compacted, then the slab is poured.

*Options with a fee may take time to prepare. Please call to confirm.

Framing Options

Concrete Masonry Unit and Wood 2x6

$0.00
CMU on Main Floor and Wood 2x6 Upper level(s)

*Options with a fee may take time to prepare. Please call to confirm.

Additional Options

Right-Reading Reverse

$255.00
Choose this option to reverse your plans and to have the text and dimensions readable.

Additional Construction Sets

$59.50
Additional hard copies of the plan (can be ordered at the time of purchase and within 90 days of the purchase date).

Additional Use License

$2507.50
Allows you to build one more home for each additional license purchased.

Unlimited Use License

$25075.00
Allows you to build this home as many times as you want.

*Options with a fee may take time to prepare. Please call to confirm.

Unless you buy an “unlimited” plan set or a multi-use license you may only build one home from a set of plans. Please call to verify if you intend to build more than once. Plan licenses are non-transferable and cannot be resold.

Other Plans By This Designer

See all plans by
this designer

Need help? Let our friendly experts help you find the perfect plan!

Contact us now for a free consultation.