Mediterranean Style House Plan - 5 Beds 7.5 Baths 6679 Sq/Ft Plan #420-192 - Houseplans.com
Search
REGISTER LOGIN SAVED No Saved Plans CART  Cart Empty
Don't lose your saved plans! Create an account to access your saves whenever you want. See our Terms & Conditions and Privacy Policy.
OR
15% OFF: SALE ENDS SOON!
Plan 420-192
Photographs may show modified designs.
Home  >  Style  >  Mediterranean

Mediterranean House Plan 420-192

Key Specs


Plan Sq Ft

6679
sq ft

Plan Bedrooms

5
Beds

Plan Bathrooms

7.5
Baths

Plan Floors

2
Floors

Plan Garages

3
Garages

Questions? Get Personalized Help
Select Plan Set Options
What's included?
$212.50
Additional Construction Sets$42.50/each

Additional hard copies of the plan (can be ordered at the time of purchase and within 90 days of the purchase date).

$85.00
$33.15
$170.00
Subtotal
NOW $1445.00
You save $255.00
(15% savings)
Sale ends soon!
Best Price Guaranteed

Or order by phone: 1-800-913-2350
Questions? Get Personalized Help
 

 
Hours:
Ready for Your Call 7 Days a Week
Every Day 7 am - 8:30 pm Eastern

See Terms & Conditions and Privacy Policy.

Thanks for your question.

We will be in touch shortly.

Wow!
Cost to Build Reports
$1.99 with Code
CTB2026 (Limit 1)
Our Cost to Build Report gives you a personalized estimate for building your home, based on your location, plan, and materials.

Residential Construction Guide

Learn Building Basics

This downloadable, 26-page guide is full of diagrams and details about plumbing, electrical, and more.

Key Specs


Plan Sq Ft

6679
sq ft

Plan Bedrooms

5
Beds

Plan Bathrooms

7.5
Baths

Plan Floors

2
Floors

Plan Garages

3
Garages

Plan Description


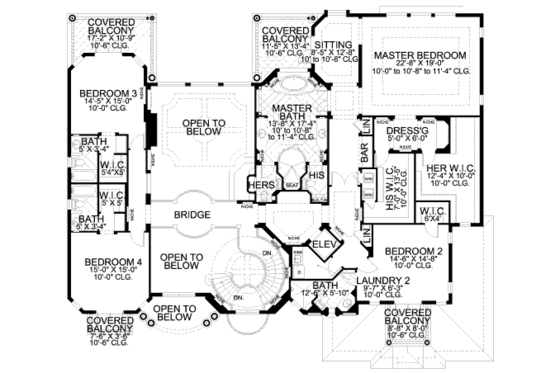
This mediterranean design floor plan is 6679 sq ft and has 5 bedrooms and 7.5 bathrooms.

This plan can be customized!

Tell us about your desired changes so we can prepare an estimate for the design service. Click the button to submit your request for pricing, or call 1-800-913-2350.

Floor Plans


Floor Plan - Main Floor

Reverse
houseplans LOGO

BUILDER Advantage Program

PRO BUILDERS

Join the club and save 5% on your first order.
PLUS download exclusive discounts and more.

LEARN MORE

Floor Plan - Upper Floor

Reverse

Full Specs & Features


Basic Features

Bedrooms : 5
Baths : 7.5
Stories: 2
Garages: 3

Dimension

Depth : 65'
Height : 35'
Width : 80'

Area

Total : 6679 sq/ft
Garage : 616 sq/ft
Main Floor : 3539 sq/ft
Porch : 1032 sq/ft
Upper Floor : 3140 sq/ft
* Total Square Footage typically only includes conditioned space and does not include garages, porches, bonus rooms, or decks.

Ceiling

Main Ceiling : 10'
Upper Ceiling Ft : 10'

Roof

Primary Pitch : 5:12

Exterior Wall Framing

Framing : Concrete block

Bedroom Features

Guest Suite
Main Floor Bedrooms
Upstairs Master Bedrooms
Walk In Closet

Kitchen Features

Breakfast Nook
Butler's Pantry
Eating Bar
Kitchen Island

Additional Room Features

Den Office Study Computer
Family Room Keeping Room
Loft
Master Sitting Area
Storage Area

Garage Features

Oversized Garage

Outdoor Spaces

Balcony
Covered Front Porch
Covered Rear Porch

More

Jack & Jill Bath

What's included in this plan set


See a sample plan set
Plans are typically drawn to ¼” scale and include:
  • Foundation Plan(s): Most plans come with engineered reinforced slab foundations. These include thickened edge and footing sizes, section markers, and mechanical equipment locations, as well as all building code related notes.
  • Floor Plan(s): Each plan comes with a professionally designed, fully dimensioned Floor Plan indicating the size and location of all walls, doors, windows and special features. Fireplace details are included where applicable. Door and window schedules are included to provide detailed information regarding opening sizes and window types. Each plan is supplemented with specific and general notes, room labels, area calculations, light and ventilation calculations, and ceiling heights.
  • Exterior Elevations: All plans have scale exterior elevations that show front, rear, left and right sides. These are detailed representations that graphically display heights of significant building features and design elements. Exterior finishes, ornamental design elements, roof type and roof pitch are generally shown on the elevations.
  • Overhead Roof Plan(s): Roof and Roof Framing Plans are aerial views showing roof slopes, ridges, hips and valleys. In addition to the basic rooflines, our roof plans have specifically engineered truss drawings that show the length, spacing and layout of all roof structural members.
  • Cross Section(s): A slice of the home from roof to foundation, showing relationships between floors, roof, and foundation.
  • Electrical Plan(s): Electrical plans are included separately to provide the level of detail you could only expect from an experienced architect. These drawings fully represent the location of all fixtures, switches and outlets. Lighting calculations, electrical symbol legend, typical Arc Interrupting Current calculations, riser diagrams and panel schedules are also included.
  • Plumbing Plan(s): Plan sets may include the layout of all plumbing fixtures and normally have a plumbing isometric riser diagram with each fixture labeled.
  • Kitchen Cabinet Elevation(s): Detailed drawings of kitchen cabinet elevations.
  • Construction Notes / Detail(s): Shows basic parts and assemblies recommended for the home so the builder can see how things come together.
* See important information before purchasing

Pricing


Plan Options

5 Copy Set

$1445.00
5 printed plan sets mailed to you.

8 Copy Set

$1572.50
8 printed plan sets mailed to you.

PDF Set

Best Value!
$1700.00
PDF plan sets are best for fast electronic delivery and inexpensive local printing.

Reproducible Set

$1700.00
For inexpensive local printing / making minor adjustments by hand. 1 printed set, typically on Bond paper.

CAD Set

$2550.00
For use by design professionals to make substantial changes to your house plan and inexpensive local printing.

Study Set

$127.50
One electronic set for bidding purposes only. Not a legal building set for construction.

Single Set

$1275.00
One printed set for bidding purposes only. Not a legal building set for construction.

Foundation Options

Slab

$0.00
Ideal for level lot, single layer concrete poured directly on grade.

*Options with a fee may take time to prepare. Please call to confirm.

Additional Options

Right-Reading Reverse

$212.50
Choose this option to reverse your plans and to have the text and dimensions readable.

Additional Construction Sets

$42.50
Additional hard copies of the plan (can be ordered at the time of purchase and within 90 days of the purchase date).

Audio Video Design

$85.00
Receive an overlay sheet with suggested placement of audio and video components.

Construction Guide

$33.15
Educate yourself about basic building ideas with these four detailed diagrams that discuss electrical, plumbing, mechanical, and structural topics.

Lighting Design

$170.00
Receive an overlay sheet with suggested placement of lighting fixtures.

*Options with a fee may take time to prepare. Please call to confirm.

Unless you buy an “unlimited” plan set or a multi-use license you may only build one home from a set of plans. Please call to verify if you intend to build more than once. Plan licenses are non-transferable and cannot be resold.

We offer a 90% credit when you upgrade from a set, that is not for construction, to a 5-Copy set (or greater).

Other Plans By This Designer

See all plans by
this designer

Browse Similar Plans

Need help? Let our friendly experts help you find the perfect plan!

Contact us now for a free consultation.

$1.99 Build Cost Reports!