Don't lose your saved plans! 
Create an account to access your saves whenever you want. See our Terms & Conditions and Privacy Policy.
OR

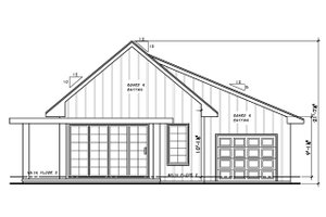
Modern House Plan 20-2562 682 Sq Ft, 2 Bed, 1 Bath, 1 Floor, 1 Garage

Key Specs
  • 2
    Beds
  • 1
    Baths
  • 1
    Floors
  • 1
    Garages
  • 682
    Square Feet
This modern design floor plan is 682 sq ft and has 2 bedrooms and 1 bathrooms.

Questions on this plan?

New to the process and looking for some help to kick things off? Let us know a bit about your plans and we’ll be happy to help.

Budget & Customization Tools

Modify icon
Customize this Plan
Tell us about your desired changes and we can prepare an estimate.
Cost to Build icon
Cost to Build Report
A personalized estimate based on your location, plan, & materials.
Cost to Build icon
Residential Construction Guide
This downloadable, 26-page guide is full of diagrams and details about plumbing, electrical, and more.

Full specs & Features

Basic Features

Bedrooms: 2
Baths: 1
Stories: 1
Garages: 1

Dimension

Depth: 37'
Height: 21' 8"
Width: 40' 6"

Area

Total: 682 sq/ft
Garage: 321 sq/ft
Main Floor: 682 sq/ft
Porch: 188 sq/ft
* Total Square Footage typically only includes conditioned space and does not include garages, porches, bonus rooms, or decks.

Ceiling

Main Ceiling: 10'

Roof

Primary Pitch: 12/12
Roof Framing: Stick - Dimensional Lumber
Roof Load: 30 Live, 10 Dead

Exterior Wall Framing

Exterior Wall Finish: Siding
Framing: 2x4

Garage Features

Front Entry Garage

More

Suited For Vacation Home

What's Included

Plans are typically drawn to ¼” scale and include:
  • Cover Sheet: Front elevation and informative reference sections including: general notes and design criteria
  • Foundation Plan(s): Drafted at 1/4" scale. Poured or block basement or slab foundations are standard. Basement foundations show the HVAC equipment, structural information, steel beam and pole locations and the direction and spacing of the floor system above. Alternate foundations are available for a fee.
  • Floor Plan(s): 1/4" scale. Fully dimensioned from stud to stud for ease of framing. The detailed drawings include such things as structural header locations, framing layout and kitchen layout.
  • Exterior Elevations: Drafted at 1/4" scale for the front and 1/8" scale for the rear and sides. All elevations are noted and an aerial view of the roof is provided, showing all hips, valleys and ridges.
  • Overhead Roof Plan(s): A view of the home from above showing roof pitch, peaks, valleys, and other details.
  • Cross Section(s): A slice of the home from roof to foundation, showing relationships between floors, roof, and foundation.
  • Electrical Plan(s): Illustrated on a separate page for clarity, the electrical plan shows suggested electrical layout for the main and second level floor plans. Typical wall and stair sections are provided to further explain construction of these areas.
  • Kitchen Cabinet Elevation(s): Useful for the cabinet and bidding process, this page shows all kitchen and bathroom cabinets as well as any other cabinet elevations. Not included with all plans, please call for details.
  • Construction Notes / Detail(s): Shows basic parts and assemblies recommended for the home so the builder can see how things come together.
NOTE: This plan is not available to be built in the state of Nevada. Please call with questions.

FAQs

Are designs on Houseplans ready to submit to my building department for permitting?

It depends on where you're building. Our plans contain enough information for a professional builder to construct your home, but your local government may require additional information before permitting. We strongly advise that you talk with your builder before you get started. If you are building for yourself, we recommend visiting your local building department to start your diligence. Read more here.

Can I make changes to a plan?

Absolutely! Our modification service allows you to customize almost anything - whether it's adding an extra garage bay, adjusting square footage, changing the roof pitch, or more, the plan modification service is a great value and can be completed quickly. Additionally, if you purchase an electronic plan set (PDF or CAD), you may have the option to make changes locally. CAD files offer the most flexibility for custom edits. Just let us know what you're thinking, and we’ll provide an estimate and timeframe to get started. Learn more here.

How much does a house cost to build?

Find out! Build costs vary based on the size of the home, materials used, and local rates for goods and labor. Our Cost to Build report is a great way to get some basic costs dialed in before you order your plans. Just plug in your postal code, select your desired construction quality, and we'll calculate for you.

Learn more about Cost to Build reports here.

Can I trust Houseplans?

Founded in 2004, Houseplans works with hundreds of architects and designers to offer their plans at a fraction of the price of custom design. Houseplans has an "Excellent" rating on TrustPilot.

Read more about us here.

Does Houseplans offer live support?

Yes, Houseplans has a dedicated team of house plan advisors with decades of experience between them. You can reach them by calling, emailing, filling out a form on the page of a plan that you like, or going to the Contact Us page. We're available to talk every day, even on weekends.

Builder Advantage Home

Builder Advantage Program

Are you a Pro Builder? Join the club, save 5% on your first order, get exclusive discounts, and more.

Learn More

You may also like

Save Plan
Modern

Plan 892-47

$2095.00

beds3

bd

baths3.5

ba

stories1

story

square feet3355

sq ft

Save Plan
Cottage

Plan 515-56

$650.00

beds2

bd

baths2

ba

stories1

story

square feet838

sq ft

Save Plan
Ranch

Plan 44-274

$1120.00

beds3

bd

baths2

ba

stories1

story

square feet1500

sq ft

Recently viewed plans

Signature
Exterior - Front Elevation for Farmhouse House Plan #929-35 - 2 bed, 2 bath
Save Plan

Plan 929-35

$1425.00

beds2

bd

baths2

ba

stories1

story

square feet1299

sq ft

Exterior - Front Elevation for Modern House Plan #895-139 - 3 bed, 2 bath
Save Plan

Plan 895-139

$1200.00

beds3

bd

baths2

ba

stories1

story

square feet2145

sq ft

Exterior - Front Elevation for Traditional House Plan #124-1300 - 2 bed, 1.5 bath
Save Plan

Plan 124-1300

$685.00

beds2

bd

baths1.5

ba

stories2

stories

square feet998

sq ft

Exterior - Front Elevation for Modern House Plan #20-2562 - 2 bed, 1 bath
Save Plan

Plan 20-2562

$1105.00

beds2

bd

baths1

ba

stories1

story

square feet682

sq ft

Exterior - Other Elevation for Barndominium House Plan #1092-52 - 4 bed, 3 bath
Save Plan

Plan 1092-52

$1750.00

beds4

bd

baths3

ba

stories2

stories

square feet3048

sq ft

Exterior - Front Elevation for Modern House Plan #484-2 - 3 bed, 3.5 bath
Save Plan

Plan 484-2

$1995.00

beds3

bd

baths3.5

ba

stories2

stories

square feet1845

sq ft

Exterior - Front Elevation for Ranch House Plan #489-15 - 4 bed, 4.5 bath
Save Plan

Plan 489-15

$2897.00

beds4

bd

baths4.5

ba

stories1

story

square feet2772

sq ft

Exterior - Front Elevation for Craftsman House Plan #1084-4 - 3 bed, 2.5 bath
Save Plan

Plan 1084-4

$1349.00

beds3

bd

baths2.5

ba

stories1

story

square feet2496

sq ft

Exterior - Front Elevation for Farmhouse House Plan #117-967 - 3 bed, 3.5 bath
Save Plan

Plan 117-967

$1425.00

beds3

bd

baths3.5

ba

stories2

stories

square feet2384

sq ft

Photo for Bungalow House Plan #932-625, 1 bath
Save Plan

Plan 932-625

$1188.00

beds0

bd

baths1

ba

stories2

stories

square feet280

sq ft

Exterior - Front Elevation for Log House Plan #942-51 - 4 bed, 2 bath
Save Plan

Plan 942-51

$1375.00

beds4

bd

baths2

ba

stories2

stories

square feet1280

sq ft