Don't lose your saved plans! 
Create an account to access your saves whenever you want. See our Terms & Conditions and Privacy Policy.
OR

Contemporary House Plan 1116-12 750 Sq Ft, 2 Bed, 1.5 Bath, 2 Floor, 2 Garage

Key Specs
  • 2
    Beds
  • 1.5
    Baths
  • 2
    Floors
  • 2
    Garages
  • 750
    Square Feet
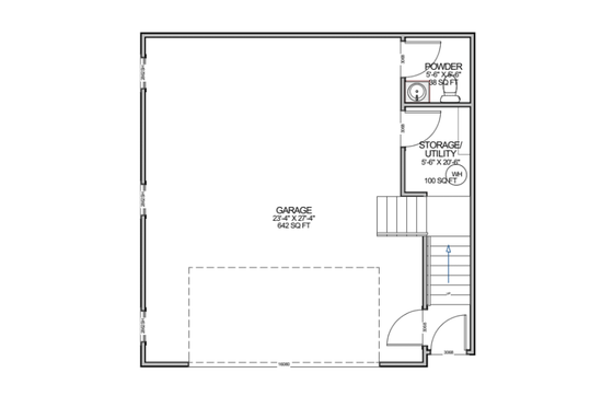
- A 16' wide and 8' tall garage door opens to the 642 square feet of parking on the ground level of this ADU or carriage house plan. A powder room is located in the back-right corner next to the dedicated utility closet. - A man door on the right also get you and has access to the garage or to the stairs that take you to the living level where wo bedrooms line the back wall and share a bath. - The front portion gives you a kitchen with island seating and a lounge area. -GIVING BACK: Please note the designer of this plan gives 10% of their profits on all sales to charities focused on helping children and families in foster care.

Questions on this plan?

New to the process and looking for some help to kick things off? Let us know a bit about your plans and we’ll be happy to help.

Budget & Customization Tools

Modify icon
Customize this Plan
Tell us about your desired changes and we can prepare an estimate.
Cost to Build icon
Cost to Build Report
A personalized estimate based on your location, plan, & materials.
Cost to Build icon
Residential Construction Guide
This downloadable, 26-page guide is full of diagrams and details about plumbing, electrical, and more.

Full specs & Features

Basic Features

Bedrooms: 2
Baths: 1.5
Stories: 2
Garages: 2

Dimension

Depth: 28' 8"
Height: 27' 1"
Width: 28' 8"

Area

Total: 750 sq/ft
Garage: 642 sq/ft
Main Floor: 38 sq/ft
Upper Floor: 712 sq/ft
* Total Square Footage typically only includes conditioned space and does not include garages, porches, bonus rooms, or decks.

Ceiling

Lower Ceiling: 8'
Main Ceiling: 8'

Roof

Primary Pitch: 8/12
Roof Framing: Stick
Roof Type: Gable
Secondary Pitch: 4/12

Exterior Wall Framing

Exterior Wall Finish: Siding
Framing: 2x4

Kitchen Features

Eating Bar

Additional Room Features

Great Room Living Room
Main Floor Laundry

Garage Features

Detached Garage
Front Entry Garage
Garage Under

Lot Characteristics

Suited For Narrow Lot

More

Economical To Build

What's Included

All plans are drawn at ¼” scale or larger and include :

  • Foundation Plan: This page shows all necessary notations and dimensions including support columns, walls, and excavated/unexcavated areas.
  • Exterior Elevations: Views of the home from all four sides showing exterior materials and measurements.
  • Floor Plan(s): Detailed plans for each level showing room dimensions, wall partitions, windows and doors, etc.
  • Cross Section: A slice of the home from roof to foundation, showing important details like stairs and wall construction.
  • Overhead Roof Plan(s): A view of the home from above showing roof pitch, peaks, valleys, and other details.
  • Construction Notes and Details: Shows the builder how things come together, like walls, the chimney, insulation, and more.

FAQs

Are designs on Houseplans ready to submit to my building department for permitting?

It depends on where you're building. Our plans contain enough information for a professional builder to construct your home, but your local government may require additional information before permitting. We strongly advise that you talk with your builder before you get started. If you are building for yourself, we recommend visiting your local building department to start your diligence. Read more here.

Can I make changes to a plan?

Absolutely! Our modification service allows you to customize almost anything - whether it's adding an extra garage bay, adjusting square footage, changing the roof pitch, or more, the plan modification service is a great value and can be completed quickly. Additionally, if you purchase an electronic plan set (PDF or CAD), you may have the option to make changes locally. CAD files offer the most flexibility for custom edits. Just let us know what you're thinking, and we’ll provide an estimate and timeframe to get started. Learn more here.

How much does a house cost to build?

Find out! Build costs vary based on the size of the home, materials used, and local rates for goods and labor. Our Cost to Build report is a great way to get some basic costs dialed in before you order your plans. Just plug in your postal code, select your desired construction quality, and we'll calculate for you.

Learn more about Cost to Build reports here.

Can I trust Houseplans?

Founded in 2004, Houseplans works with hundreds of architects and designers to offer their plans at a fraction of the price of custom design. Houseplans has an "Excellent" rating on TrustPilot.

Read more about us here.

Does Houseplans offer live support?

Yes, Houseplans has a dedicated team of house plan advisors with decades of experience between them. You can reach them by calling, emailing, filling out a form on the page of a plan that you like, or going to the Contact Us page. We're available to talk every day, even on weekends.

Builder Advantage Home

Builder Advantage Program

Are you a Pro Builder? Join the club, save 5% on your first order, get exclusive discounts, and more.

Learn More

You may also like

Save Plan
Contemporary

Plan 938-119

$2195.00

beds3

bd

baths3.5

ba

stories1

story

square feet3083

sq ft

Save Plan
Traditional

Plan 20-2346

$1305.00

beds4

bd

baths2.5

ba

stories2

stories

square feet2257

sq ft

Recently viewed plans

Contemporary Exterior - Front Elevation Plan #1116-12
Save Plan

Plan 1116-12

$1245.00

beds2

bd

baths1.5

ba

stories2

stories

square feet750

sq ft

Traditional Exterior - Front Elevation Plan #1053-39
Save Plan

Plan 1053-39

$840.00

beds3

bd

baths2.5

ba

stories2

stories

square feet1748

sq ft

Country Exterior - Front Elevation Plan #1116-34
Save Plan

Plan 1116-34

$1245.00

beds3

bd

baths2.5

ba

stories2

stories

square feet2245

sq ft

Barndominium Exterior - Front Elevation Plan #1064-394
Save Plan

Plan 1064-394

$1250.00

beds3

bd

baths3

ba

stories1

story

square feet3776

sq ft