Contemporary Style House Plan - 2 Beds 2 Baths 962 Sq/Ft Plan #1099-16 - Houseplans.com
Search
REGISTER LOGIN SAVED No Saved Plans CART  Cart Empty
Don't lose your saved plans! Create an account to access your saves whenever you want. See our Terms & Conditions and Privacy Policy.
OR
15% OFF THIS PLAN TODAY
Plan 1099-16
Photographs may show modified designs.
Home  >  Style  >  Contemporary

Contemporary House Plan 1099-16

Key Specs


Plan Sq Ft

962
sq ft

Plan Bedrooms

2
Beds

Plan Bathrooms

2
Baths

Plan Floors

2
Floors

Plan Garages

1
Garages

Questions? Get Personalized Help
Select Plan Set Options
What's included?
$170.00
$140.25
$250.75
$33.15
$140.25
Subtotal
NOW $765.00
You save $135.00
(15% savings)
Sale ends soon!
Best Price Guaranteed

Or order by phone: 1-800-913-2350
Questions? Get Personalized Help
 

 
Hours:
Ready for Your Call 7 Days a Week
Every Day 7 am - 8:30 pm Eastern

See Terms & Conditions and Privacy Policy.

Thanks for your question.

We will be in touch shortly.

Wow!
Cost to Build Reports
$1.99 with Code
CTB2026 (Limit 1)
Our Cost to Build Report gives you a personalized estimate for building your home, based on your location, plan, and materials.

Residential Construction Guide

Learn Building Basics

This downloadable, 26-page guide is full of diagrams and details about plumbing, electrical, and more.

Key Specs


Plan Sq Ft

962
sq ft

Plan Bedrooms

2
Beds

Plan Bathrooms

2
Baths

Plan Floors

2
Floors

Plan Garages

1
Garages

Plan Description


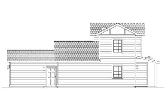
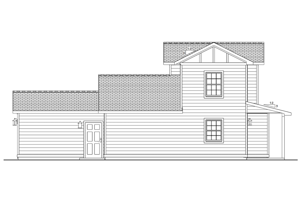
This thoughtfully designed 962-square-foot contemporary home proves that comfortable, attractive living can be achieved in a compact and affordable footprint. Created specifically for a narrow lot, the home makes efficient use of space while maintaining a bright, welcoming feel. This pleasant house is an ideal design for community-focused housing such as a Habitat for Humanity project. The home offers two stories of living space along with a single-bay, attached garage with rear vehicle access and an 8' x 7' overhead door. Entry to the back yard is conveniently provided through a service door in the garage. The main floor is arranged for practical daily living. An eat-in kitchen provides comfortable space for cooking and casual meals, while the living room offers a relaxed gathering area. A main-floor bedroom shares the main floor, along with a bathroom, a small pantry, and a convenient alcove designed for a stacked washer and dryer, helping keep household tasks close at hand. Upstairs, the home features a second bedroom and a second full bathroom, creating a comfortable private retreat or a kids’ zone. A large linen cabinet offers valuable storage space, helping maintain the home's uncluttered feel. The exterior design is clean and contemporary, combining simplicity with appealing architectural details. Contrasting corner boards and a trim band at the base of the walls frame the structure, while accent siding with decorative trim in the gable ends adds visual interest without unnecessary complexity. A welcoming covered front patio, supported by a double-post arrangement, provides sheltered outdoor space and a pleasant entry point to the home. Efficient, attractive, and carefully planned, this home demonstrates how smart design can deliver affordable housing that feels both modern and welcoming, making it well suited for community-based housing initiatives.

This plan can be customized!

Tell us about your desired changes so we can prepare an estimate for the design service. Click the button to submit your request for pricing, or call 1-800-913-2350.

Floor Plans


Floor Plan - Main Floor

Reverse
houseplans LOGO

BUILDER Advantage Program

PRO BUILDERS

Join the club and save 5% on your first order.
PLUS download exclusive discounts and more.

LEARN MORE

Floor Plan - Upper Floor

Reverse

Full Specs & Features


Basic Features

Bedrooms : 2
Baths : 2
Stories: 2
Garages: 1

Dimension

Depth : 49'
Height : 21' 2"
Width : 24'

Area

Total : 962 sq/ft
Garage : 238 sq/ft
Main Floor : 626 sq/ft
Porch : 83 sq/ft
Upper Floor : 336 sq/ft
* Total Square Footage typically only includes conditioned space and does not include garages, porches, bonus rooms, or decks.

Ceiling

Garage Ceiling : 8' 3"
Main Ceiling : 8'
Upper Ceiling Ft : 8'

Roof

Primary Pitch : 6:12
Roof Framing : trusses
Roof Load : 25 snow load
Secondary Pitch : 3:12

Exterior Wall Framing

Exterior Wall Finish : horizontal lap siding, accent at gable ends
Framing : 2x6
Insulation : per local code

Bedroom Features

Main Floor Bedrooms
Upstairs Bedrooms

Kitchen Features

Breakfast Nook

Additional Room Features

Main Floor Laundry
Play Flex Room

Garage Features

Rear Entry Garage

Lot Characteristics

Suited For Narrow Lot

Outdoor Spaces

Covered Front Porch

More

Economical To Build

Energy Efficient Features

Energy Efficient Design

What's included in this plan set


See a sample plan set

All plans are drawn at ¼” scale or larger and include :

  • Foundation Plan: This page shows all necessary notations and dimensions including support columns, walls, and excavated/unexcavated areas.
  • Exterior Elevations: Views of the home from all four sides showing exterior materials and measurements.
  • Floor Plan(s): Detailed plans for each level showing room dimensions, wall partitions, windows and doors, etc.
  • Cross Section: A slice of the home from roof to foundation, showing important details like stairs and wall construction.
  • Overhead Roof Plan(s): A view of the home from above showing roof pitch, peaks, valleys, and other details.
  • Construction Notes and Details: Shows the builder how things come together, like walls, the chimney, insulation, and more.
* See important information before purchasing

Pricing


Plan Options

PDF Set

Best Value!
$765.00
PDF plan sets are best for fast electronic delivery and inexpensive local printing.

PDF Unlimited Build

$1530.00
PDF plan sets are best for fast electronic delivery and inexpensive local printing.

CAD Unlimited Build

$2040.00
For use by design professionals to make substantial changes to your house plan and inexpensive local printing.

Foundation Options

Slab

$0.00
Ideal for level lot, single layer concrete poured directly on grade.

Basement

$297.50
Ideal for level lot, lower level of home partially or fully underground.

*Options with a fee may take time to prepare. Please call to confirm.

Framing Options

Wood 2x6

$0.00
Wood 2x6 Exterior Walls

*Options with a fee may take time to prepare. Please call to confirm.

Additional Options

Right-Reading Reverse

$170.00
Choose this option to reverse your plans and to have the text and dimensions readable.

Audio Video Design

$140.25
Receive an overlay sheet with suggested placement of audio and video components.

Comprehensive Material List

$250.75
A complete list of building supplies needed to construct the infrastructure of your new house, plus an overlay of materials shown directly on your PDF (foundation to rooftop with interior and exterior materials), and a detailed, itemized door and window schedule showing all sizes and types. Please allow 5-7 Business Days for completion. Note, the Comprehensive list is only available with a PDF purchase. The Comprehensive list can be ordered no matter what additional plan options you have selected.

Construction Guide

$33.15
Educate yourself about basic building ideas with these four detailed diagrams that discuss electrical, plumbing, mechanical, and structural topics.

Lighting Design

$140.25
Receive an overlay sheet with suggested placement of lighting fixtures.

*Options with a fee may take time to prepare. Please call to confirm.

Unless you buy an “unlimited” plan set or a multi-use license you may only build one home from a set of plans. Please call to verify if you intend to build more than once. Plan licenses are non-transferable and cannot be resold.

Need help? Let our friendly experts help you find the perfect plan!

Contact us now for a free consultation.