Blog Home > 1,000 Sq. Ft. Cabin Plans

The Houseplans Blog

1,000 Sq. Ft. Cabin Plans

Fall in love with these 1,000 sq. ft. cabin plans.

Hero Image

June 6, 2024

Livabl Brand

Can't find what you're looking for?

Give us a call below or reach out and we’ll make sure to be in contact!

Send Us a Message

By Courtney Pittman

Here are some of our favorite 1,000 sq. ft. cabin plans. What do they have in common? These modest cabin retreats showcase thoughtful features like open gathering areas, space where it matters, and nice front porches. Take in the view with these budget-friendly house plans (each around 1,000 square feet).

Explore more small cabin plans here.

Cabin Plan with Two Porches Cabin Plan with Two Porches Cabin Plan with Two Porches - Front Exterior

Cabin Plan with Two Porches Cabin Plan with Two Porches - Main Level

Cabin Plan with Two Porches Cabin Plan with Two Porches - Upper Level

Looking for a petite cabin plan with rustic charm? Check out this sweet design. Front and rear porches make it easy to enjoy the fresh air. Inside, a fireplace in the great room creates a cozy vibe. The open kitchen sits close by.

The primary suite is conveniently located on the main floor. You'll find a secondary bedroom and a full bath along with a versatile loft on the second level.

Cabin Floor Plan for Narrow Lot Cabin Floor Plan for Narrow Lot Cabin Floor Plan for Narrow Lot - Front Exterior

Cabin Floor Plan for Narrow Lot Cabin Floor Plan for Narrow Lot - Main Level

Dealing with a tight lot? You’re in luck. Just 30 feet wide, this cabin floor plan would fit nicely on a narrow lot. A welcoming front porch greets you and provides shaded comfort. Inside, the simple layout shows off an efficient floor plan that is nice and open. Two bedrooms and a hall bath complete this design.

Modern Style Cabin Plan Modern Style Cabin Plan Modern Style Cabin Plan - Front Exterior

Modern Style Cabin Plan Modern Style Cabin Plan - Main Level

This stylish cabin floor plan shows off modern curb appeal with clean lines and a metal roof. An island in the kitchen provides meal prep space and overlooks the nearby great room and the dining area. A folding glass door opens to the large back patio for seamless indoor/outdoor living.

The primary suite features a walk-in closet and a spacious shower. An additional bedroom sits on the other side of the plan, along with a full bath.

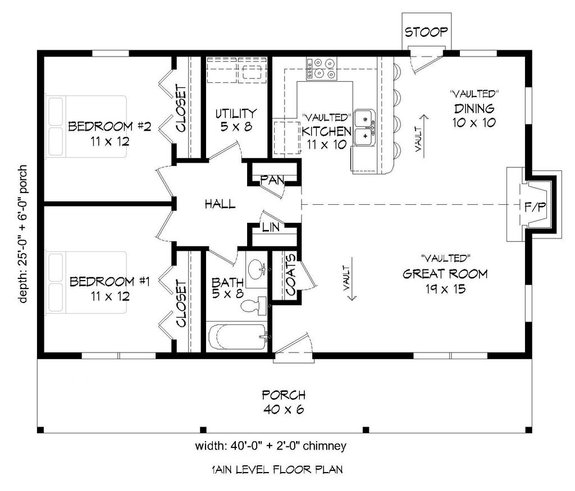
Cabin Plan with Country Charm Cabin Plan with Country Charm Cabin Plan with Country Charm - Front Exterior

Cabin Plan with Country Charm Cabin Plan with Country Charm - Main Level

Click through to see photos! Bright and open, this cabin plan lives larger than its modest footprint. The vaulted great room flows effortlessly into the dining area and the U-shaped kitchen, where an eating bar seats up to four. Storage solutions include the pantry, the coat closet, and the linen closet. Two bedrooms share a hall bath on the left side of the plan. A wide front porch creates outdoor living space.

A-Frame Cabin Plan A-Frame Cabin Plan A-Frame Cabin Plan - Rear Exterior

A-Frame Cabin Plan A-Frame Cabin Plan - Main Level

A-Frame Cabin Plan A-Frame Cabin Plan - Upper Level

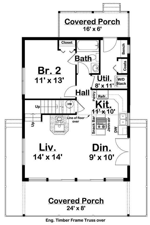
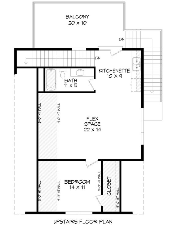
Soaring windows make this A-frame cabin plan ideal for a scenic lot. Front and rear porches give you plenty of room to enjoy outdoor living. A snack bar in the kitchen serves the open dining area and the living room. A bedroom suite takes advantage of privacy at the back of the plan.

A bench and a coat closet sit next to the utility room. Upstairs, a second bedroom suite boasts French doors that open to a second-level deck.

Small Cottage Cabin Floor Plan Small Cottage Cabin Floor Plan Small Cottage Cabin Floor Plan - Front Exterior

Small Cottage Cabin Floor Plan Small Cottage Cabin Floor Plan - Main Level

Here’s a cabin plan with the classic cottage look. We love the cute front porch. The open-concept layout creates flow between the kitchen and the living room. A fireplace delivers warmth and cozy charm. One of the two bedrooms is a suite and gives you a walk-in closet. Step out and enjoy the day on the back deck.

Garage Apartment Cabin Plan Garage Apartment Cabin Plan Garage Apartment Cabin Plan - Front Exterior

Garage Apartment Cabin Plan Garage Apartment Cabin Plan - Main Level

Garage Apartment Cabin Plan Garage Apartment Cabin Plan - Upper Level

There’s no shortage of curb appeal with this cabin-style garage apartment plan. You’ll find a three-car garage on the first floor, along with a handy boot room with an L-shaped bench. A storage closet under the stairs and a side porch are nice touches. A versatile flex space, a kitchenette, a bedroom, and a full bath reside on the second level, while a balcony extends the space and offers indoor/outdoor living.

Two-Bedroom Cabin Design Two-Bedroom Cabin Design Two-Bedroom Cabin Design - Front Exterior

Two-Bedroom Cabin Design Two-Bedroom Cabin Design - Main Level

Just under 1,000 square feet, this affordable cabin house plan offers a super-simple footprint. Part of the covered front porch is screened in, keeping the bugs at bay. The kitchen and the family room open to one another, creating modern flow.

A vaulted ceiling allows the space to feel bigger than it is. Two bedrooms share a bathroom at the back of the plan. The fireplace is a welcome detail.

Explore more small cabin plans.

Get Our Newsletter

Be the first to see new plans, special offers, and more.

By signing up for our newsletter, you agree to our Terms & Conditions and Privacy Policy, for an account

Blog Subscribe Icon