Don't lose your saved plans! 
Create an account to access your saves whenever you want. See our Terms & Conditions and Privacy Policy.
OR

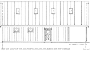
Traditional House Plan 118-180 912 Sq Ft, 0 Bed, 0.5 Bath, 2 Floor, 2 Garage

Key Specs
  • 0
    Beds
  • 0.5
    Baths
  • 2
    Floors
  • 2
    Garages
  • 912
    Square Feet
The first level garage and workshop have a nine-foot ceiling height while the second level side walls start at four feet six inches high and slope up to eight feet. Access to the double car garage is through two nine feet wide by eight feet high overhead garage doors. At the rear behind the workshop is a large covered exterior storage space. The unfinished second level loft with vaulted ceilings is intentionally left undeveloped to allow your personalization of this area. The loft boasts eight skylights to make this a very bright and usable multipurpose space. Plans are designed with a concrete slab foundation plan.

Questions on this plan?

New to the process and looking for some help to kick things off? Let us know a bit about your plans and we’ll be happy to help.

Budget & Customization Tools

Modify icon
Customize this Plan
Tell us about your desired changes and we can prepare an estimate.
Cost to Build icon
Cost to Build Report
A personalized estimate based on your location, plan, & materials.
Cost to Build icon
Residential Construction Guide
This downloadable, 26-page guide is full of diagrams and details about plumbing, electrical, and more.

Full specs & Features

Basic Features

Bedrooms: 0
Baths: 0.5
Stories: 2
Garages: 2

Dimension

Depth: 48'
Height: 23' 2"
Width: 24'

Area

Total: 912 sq/ft
Garage: 576 sq/ft
Main Floor: 336 sq/ft
Patios: 240 sq/ft
Upper Floor: 699 sq/ft
* Total Square Footage typically only includes conditioned space and does not include garages, porches, bonus rooms, or decks.

Ceiling

Ceiling Details: upper ceiling slopes from 4'-6" to 8"
Garage Ceiling: 9'
Lower Ceiling: 4' 6"
Main Ceiling: 9'
Upper Ceiling Ft: 8'

Roof

Primary Pitch: 12/12
Roof Framing: wood
Roof Load: roof live load 47 psf
Roof Type: truss

Exterior Wall Framing

Exterior Wall Finish: wood
Framing: 2x6
Insulation: optional R20

Additional Room Features

Loft
Play Flex Room
Storage Area
Unfinished Future Space
Workshop

Garage Features

Detached Garage
Front Entry Garage

Lot Characteristics

Suited For Narrow Lot

Outdoor Spaces

Covered Rear Porch

More

Economical To Build
Unusual Shape

What's Included

Plans are typically drawn to ¼” scale and include:
  • Cover Sheet: Cover sheet with rendering and art floor plans
  • Foundation Plan(s): This page shows all necessary notations and dimensions including footings, support columns, walls, and excavated/unexcavated areas.
  • Floor Plan(s): Detailed plans for each level showing room dimensions, wall partitions, windows and doors, fixture locations, and ceiling treatments.
  • Exterior Elevations: Views of the home from all four sides showing exterior materials, roof slope, ridge heights, siding and trim notes.
  • Overhead Roof Plan(s): A view of the home from above showing roof pitch, peaks, valleys, and other details.
  • Cross Section(s): A slice of the home from roof to foundation, showing relationships between floors, roof, and foundation.
  • Electrical Plan(s): Electrical fixtures / switches / smoke alarms by location only on floor plans.
  • Detail Sheet(s): Details as required.
  • Construction Notes / Detail(s): Shows basic parts and assemblies recommended for the home so the builder can see how things come together.
  • Structural Information: Structural floor / roof information indicated either on the floor plans or separate framing plans for complicated designs. Important: design loads and weather conditions vary by region. As a result the size, spacing, and layout of all structural elements in this home design may need approval by a structural engineer or code official based on your specific site location.
  • Site Plan(s): Site plan at 1/8″=1′-0″ or 1/4″= 1′-0″
Other notes: Plans are engineered by a structural engineer, but not stamped or sealed; you may need to update for your location. Ground snow load 40 psf. (or composite roof live load 32 psf, dead load 10 psf for total roof design load 42 psf). Floor live load 40 psf. Assumed soil bearing capacity 1560 psf. Windows are called out as generic nominal sizes on floor plans, opening directions indicated on elevations.

FAQs

Are designs on Houseplans ready to submit to my building department for permitting?

It depends on where you're building. Our plans contain enough information for a professional builder to construct your home, but your local government may require additional information before permitting. We strongly advise that you talk with your builder before you get started. If you are building for yourself, we recommend visiting your local building department to start your diligence. Read more here.

Can I make changes to a plan?

Absolutely! Our modification service allows you to customize almost anything - whether it's adding an extra garage bay, adjusting square footage, changing the roof pitch, or more, the plan modification service is a great value and can be completed quickly. Additionally, if you purchase an electronic plan set (PDF or CAD), you may have the option to make changes locally. CAD files offer the most flexibility for custom edits. Just let us know what you're thinking, and we’ll provide an estimate and timeframe to get started. Learn more here.

How much does a house cost to build?

Find out! Build costs vary based on the size of the home, materials used, and local rates for goods and labor. Our Cost to Build report is a great way to get some basic costs dialed in before you order your plans. Just plug in your postal code, select your desired construction quality, and we'll calculate for you.

Learn more about Cost to Build reports here.

Can I trust Houseplans?

Founded in 2004, Houseplans works with hundreds of architects and designers to offer their plans at a fraction of the price of custom design. Houseplans has an "Excellent" rating on TrustPilot.

Read more about us here.

Does Houseplans offer live support?

Yes, Houseplans has a dedicated team of house plan advisors with decades of experience between them. You can reach them by calling, emailing, filling out a form on the page of a plan that you like, or going to the Contact Us page. We're available to talk every day, even on weekends.

Builder Advantage Home

Builder Advantage Program

Are you a Pro Builder? Join the club, save 5% on your first order, get exclusive discounts, and more.

Learn More

You may also like

Save Plan
Traditional

Plan 20-2346

$1305.00

beds4

bd

baths2.5

ba

stories2

stories

square feet2257

sq ft

Save Plan
Cabin

Plan 1108-9

$1300.00

beds3

bd

baths2.5

ba

stories3

stories

square feet1815

sq ft

Save Plan
Contemporary

Plan 938-119

$2195.00

beds3

bd

baths3.5

ba

stories1

story

square feet3083

sq ft

Recently viewed plans

Exterior - Front Elevation for Traditional House Plan #118-180, 0.5 bath
Save Plan

Plan 118-180

$545.00

beds0

bd

baths0.5

ba

stories2

stories

square feet912

sq ft